Zum Hauptinhalt springen
1/17
2/17
3/17
4/17
5/17
6/17
7/17
8/17
9/17
10/17
11/17
12/17
13/17
14/17
15/17
16/17
17/17

BEZUGSFERTIG -- NEUBAU-3-Zimmer-Gartenwohnung mit sonniger Terrasse und taghellem Souterrain

Kranichweg 33, 81827 München
Auf Karte anzeigen
Logo ImmoScout24 Logo ImmoScout24
PDF Finanzierungszertifikat

Finanzierungszertifikat

In nur zwei Minuten zu Ihrem persönlichen Finanzierungszertifkat.

  • Zur Vorlage beim Makler oder Verkäufer
  • Vorteile gegenüber anderen Kaufinteressenten
  • Kostenlos und unverbindlich
Finanzierungszertifikat anfragen

Infos

Etage 0 von 2
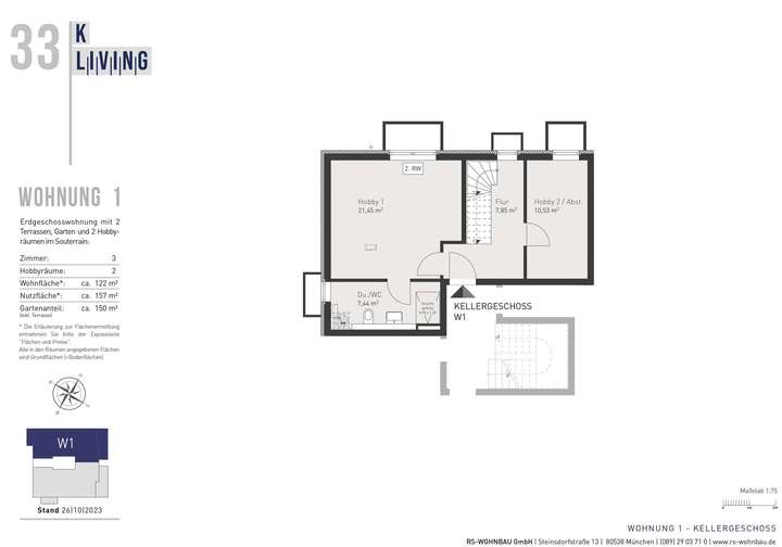
Wohnfläche ca. 122 m2
Nutzfläche 157 m2
Zimmer 3
Schlafzimmer 2
Badezimmer 2
Garage/Stellplatz Duplex
Anzahl Garage/Stellplatz 1

Kosten

Kaufpreis 1.279.000 €
Preis für Garage/Stellplatz 25.000 €
Provision Nein

Finanzierungsrechner:

Kaufpreis: 600.000 €

Eigenkapital: 600.000 €
Monatliche Rate 0 €
Effektiver Jahreszins 0 %
Sollzinsbindung 10 Jahre

Bausubstanz & Energieausweis

Baujahr 2025
Objektzustand Erstbezug
Qualität der Austattung Gehoben

Beschreibung des Objekts

                In diesem sehr attraktiven 6-Parteien-Stadthaus (KfW-40/A+/QNG) haben wir zwei großzügige Erdgeschoss mit sonnigen Privatgärten und tageslichthellen Souterrainbereichen in schönster Wohnlage Waldtruderings errichtet. 

Nur noch diese Gartenwohnung ist verfügbar !
            

Sonstige Angaben

                Das Stadthaus wird voraussichtlich noch im Spätherbst dieses Jahres bezugsfertig sein.
           

Grundriss

Wohnung-01_EG Wohnung-01_EG >
Wohnung-01_Souterrain Wohnung-01_Souterrain >
Garage Garage >
Schnitt Schnitt >

Adresse

Kranichweg 33, 81827 München

Interessante Orte

Bäckereien
Schulen
Ärzte

Preis- und Lageinformationen

Preistrend für Bestandsimmobilien in Trudering
Sept. 2022 Sept. 2023 Sept. 2024 Sept. 2025 8.249,83 €/m² 7.422,18 €/m² -10,03 % -3,60 %

Dieser Zeitraum ist nur für eingeloggte User sichtbar.

Jetzt einloggen

Ansprechpartner