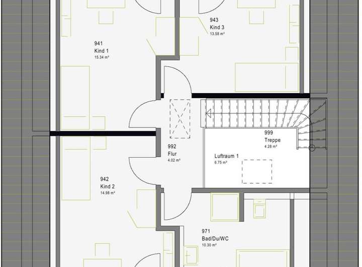
Auf einem zentralen Baugrundstück errichten wir Ihr persönliches Massa Haus . Auf zwei Etagen verteilen sich 5 Zimmer in denen Sie und Ihre Familie sich wohlfühlen können.
Wir bauen für Sie auf bestehendem Grundstück
09120 Chemnitz
Die vollständige Adresse der Immobilie erhalten Sie vom Anbieter.
Auf Karte anzeigen
Die vollständige Adresse der Immobilie erhalten Sie vom Anbieter.
Finanzierungszertifikat
In nur zwei Minuten zu Ihrem persönlichen Finanzierungszertifkat.
Infos
| Haustyp | Einfamilienhaus |
|---|---|
| Etagenzahl | 2 |
| Wohnfläche ca. | 144 m2 |
| Nutzfläche | 144 m2 |
| Grundstücksfläche | 430 m2 |
| Zimmer | 5 |
| Badezimmer | 2 |
Kosten
| Kaufpreis |
315.670 € |
|---|---|
| Provision |
5,95% inkl. MwSt. Provision wird nur für das Grundstück erhoben |
Finanzierungsrechner:
Kaufpreis:
600.000 €
Eigenkapital:
600.000 €
Monatliche Rate
0 €
Effektiver Jahreszins
0 %
Sollzinsbindung
10 Jahre
Bausubstanz & Energieausweis
| Bauphase | Haus in Planung (projektiert) |
|---|---|
| Qualität der Austattung | Gehoben |
| Heizungsart | Gas-Heizung |
| Energieausweis | laut Gesetz nicht erforderlich |
Beschreibung des Objekts
Ausstattung
Nach Fertigstellung handelt es sich um ein förderfähiges Niedrigenergiehaus (EnEv 55) Ihre Heizkosten reduzieren sich durch die gute Bauweise auf ein Minimum ,sodass im monatlichen Budget noch genügend zur Verfügung bleibt .
Durch unser bewährtes Baukastensystem haben Sie die Möglichkeit, bis zu 40.000,- € Eigenleistung zu erbringen ( Sparen ) . Im Preis sind das Wohlfühlhaus sowie das Grundstück enthalten. Das Innenausbaupaket ist exklusiv.
Lage
Das Grundstück befindet sich in ruhiger und grüner Lage in Altchemnitz
Sonstige Angaben
Gern unterstützen wir Sie bei der Finanzierung und Realisierung Ihrer Bauwünsche .Gern fordern Sie Unterlagen an. Im angegebenen Preis ist das projektierte Ausbau-Haus enthalten . Fertigstellung und Errichtung nach Absprache .
Adresse
09120 Chemnitz
Interessante Orte
Preis- und Lageinformationen
Preistrend für Bestandsimmobilien in Borna-Heinersdorf