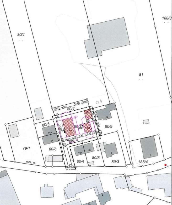
Das von uns angebotene baureife Grundstück befindet sich in einer ruhigen, familienfreundlichen Wohngegend in 86923 Finning, Ortsteil Entraching und hat lt. Plan eine Fläche von ca. 829,95 m². Hiervon können 420,05 m² mit einem Doppelhaus mit Außenmaßen von 9,35 m x 8,50 m je Hälfte bebaut werden. 170,74 m² fließen anteilig in die Zufahrt (2/3, gesamt ca. 256,11 m²) und 36,08 m² werden mit zwei Garagen für das Haus 12a bebaut. Die weiteren ca. 203,08 m² befinden sich auf dem angrenzenden landwirtschaftlichen Grundstück und sollen zukünftig geteilt und den Eigentümern dann als weitere Gartenfläche zur Verfügung gestellt werden. Insgesamt weist dieses Grundstück ca. 344,83 m² auf (die restliche Fläche wird teilweise der Nachbarflurnummer bezüglich eines Fahrrechts und der neben dem angebotenen Grundstück liegenden Flurnummer zugeteilt; hier kann ein Einfamilienhaus gebaut werden).
Je nach individuellem Bedürfniss kann statt eines Doppelhauses natürlich auch ein Zweifamilienhaus oder ein Einfamilienhaus mit oder ohne Einliegerwohnung gebaut werden.
Die umliegende Bebauung besteht weitgehend aus Einfamilienhäusern und Doppelhaushälften, umrahmt von Feldern und Wiesen mit direkten Spazierwegen in die Natur einerseits und schneller Anbindung nach München andererseits.
Bei Interesse kann das Nachbargrundstück mit Scheune (ca. 404 m² lt. Plan) ebenfalls erworben werden. Des Weiteren wird ein Grundstück zur Bebauung mit einem Einfamilienhaus zzgl. Teilfläche am kleineren der beiden landwirtschaftlichen Grundstücke verkauft.
Zögern Sie nicht uns bei Rückfragen bzw. weiterem Interesse zu kontaktieren.
Baugrundstück für Doppelhaus in Entraching, nur 6km von Utting am Ammersee
86923 Finning
Die vollständige Adresse der Immobilie erhalten Sie vom Anbieter.
Auf Karte anzeigen
Die vollständige Adresse der Immobilie erhalten Sie vom Anbieter.
Finanzierungszertifikat
In nur zwei Minuten zu Ihrem persönlichen Finanzierungszertifkat.
Infos
| Vermarktungsart | Kaufen |
|---|---|
| Grundstücksfläche | 829,95 m2 |
| Empfohlene Nutzung | Doppelhaus |
Kosten
| Miete pro Jahr |
450.000 € |
|---|---|
| Provision |
2,38 % Käuferprovision inkl. MwSt. |
Finanzierungsrechner:
Kaufpreis:
600.000 €
Eigenkapital:
600.000 €
Monatliche Rate
0 €
Effektiver Jahreszins
0 %
Sollzinsbindung
10 Jahre
Beschreibung des Objekts
Lage
Ein idyllischer Ort im schönsten Voralpenland: In Entraching nahe dem Westufer des Ammersees lässt es sich prima leben! Entraching gehört zur Gemeinde Finning und präsentiert sich als liebenswerter, ruhiger Wohnort im Landsberger Raum.
Alle Einkaufsmöglichkeiten des täglichen Bedarfs finden Sie in den direkten Nachbarorten, z.B. in Utting am Ammersee. Dort gibt es auch eine Zugverbindung durch die BRB und RB67, zudem sind mehrere Busverbindungen gegeben. Mit dem Auto haben Sie eine sehr gute Verbindung nach München durch die A96. Im nahe gelegenen Landsberg am Lech gibt es ein reichhaltigeres Angebot an Schulen wie z.B. das St. Ottilien Gymnasium sowie das Sportgymnasium in Riederau, Kindergärten, ärztliche Versorgung u.v.m.
Für alle Golfspieler bieten die Golf Clubs im 5-Seen Land eine schöne Möglichkeit, dieser Sportart nachzugehen. Und auch durch die umliegenden Sportvereine können den Sportarten wie Eishockey, Fußball, etc. nachgegangen werden. Für Pferdeliebhaber gibt es im Ort den Insel Hof mit Reitmöglichkeiten für Groß und Klein. Die Gegend lädt zudem zu ausgedehnten Spaziergängen und Fahrradtouren durch die weiche Hügellandschaft des Alpenvorlands ein.
Grundriss
Lageplan mit Bebauung
>
>
Aufteilung Flurstücke
>
>