QNG Förderfähig.
Dieses massiv gebaute Einfamilienhaus mit zwei Stockwerken präsentiert
sich mit einem traditionellen Satteldach, welches für eine klassische Ästhetik sorgt. Im Kontrast dazu besticht es durch ein modernes, offenes
Wohnkonzept. Große, bodentiefe Fenster ermöglichen nicht nur einen
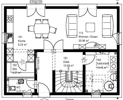
direkten Zugang zum Außenbereich, sondern lassen auch reichlich natürliches Tageslicht in die Wohnräume fluten. Eine an die Küche angeschlossene, separate Speisekammer bietet ausreichend Platz für die Lagerung von
Lebensmitteln und anderen Küchenutensilien. Im Erdgeschoss befinden
sich zusätzlich ein Gäste-WC sowie ein großzügiger Hauswirtschaftsraum.
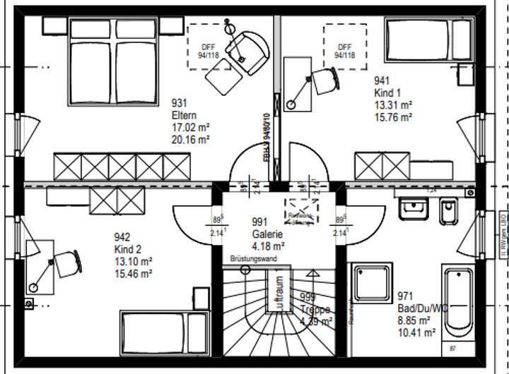
Im Obergeschoss befinden sich Elternschlafzimmer, zwei geräumige Kinderzimmer sowie ein großes Bad mit Badewanne und Dusche. Der Keller
setzt sich aus drei Räumen zusammen, die flexibel für unterschiedliche
Zwecke genutzt werden können.
Massives Einfamilienhaus von Einsteinhaus.
55545 Bad Kreuznach
Die vollständige Adresse der Immobilie erhalten Sie vom Anbieter.
Auf Karte anzeigen
Die vollständige Adresse der Immobilie erhalten Sie vom Anbieter.
Finanzierungszertifikat
In nur zwei Minuten zu Ihrem persönlichen Finanzierungszertifkat.
Infos
| Haustyp | Einfamilienhaus |
|---|---|
| Etagenzahl | 2 |
| Wohnfläche ca. | 140 m2 |
| Nutzfläche | 141 m2 |
| Grundstücksfläche | 450 m2 |
| Bezugsfrei ab | 2024 |
| Zimmer | 5 |
| Schlafzimmer | 3 |
| Badezimmer | 1 |
| Anzahl Garage/Stellplatz | 2 |
Kosten
| Kaufpreis |
695.900 € |
|---|---|
| Provision | Nein |
Finanzierungsrechner:
Kaufpreis:
600.000 €
Eigenkapital:
600.000 €
Monatliche Rate
0 €
Effektiver Jahreszins
0 %
Sollzinsbindung
10 Jahre
Bausubstanz & Energieausweis
| Bauphase | Haus in Planung (projektiert) |
|---|---|
| Objektzustand | Erstbezug |
| Qualität der Austattung | Gehoben |
| Heizungsart | Wärmepumpe |
Beschreibung des Objekts
Ausstattung
Luft-Wasser Wärmepumpe
Fußbodenheizung
Schallschutzwände
Bodenplatte
Architektenplanung
Stahlbetontreppe
Stahlbetondecken.
Allurollläden
Bodengutachten
Lage
Das Grundstück liegt in einen sehr ruhigen
Wohngebiet in Bad-Kreuznach Winzenheim.
Sonstige Angaben
Das Angebotene Haus ist Technikfertig.
Es fehlen noch Wand und Bodenbeläge sowie die Sanitärobjekte.
Grunderwerbsteuer in höhe von 15000€ werden nur für das Grundstück fällig, nicht wie die Anzeige ausweist für das gesamte Objekt.
Es sind auch andere Haustypen auf dem Grundstück Baubar.
Weitere Dokumente
ESH_Hauskatalog_022024_A4_finaGrundriss
Screenshot 2024-03-06 134754
>
>
Adresse
55545 Bad Kreuznach
Interessante Orte
Preis- und Lageinformationen
Preistrend für Bestandsimmobilien in Bad Kreuznach