Im Mönkhofer Weg 179 entstehen insgesamt 31 Eigentumswohnungen, aufgeteilt auf vier architektonisch moderne Baukörper.
Die Gebäude werden in Massivbauweise und mit Flachdach im Effizienzhaus 40 Standard hergestellt.
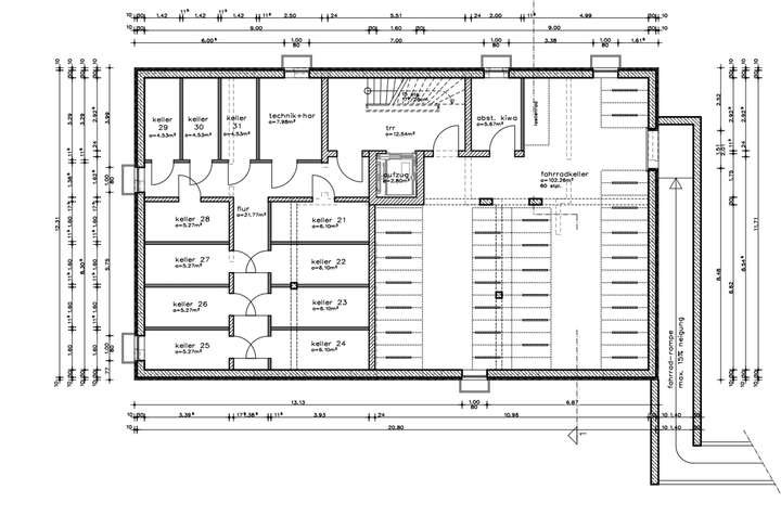
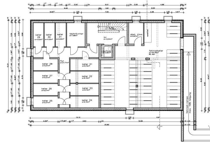
Auf dem Grundstück werden zudem noch 23 PKW Stellplätze, sowie eine Fahrrad Tiefgarage mit 60 Stellplätzen geschaffen.
Zusätzlich entsteht ein Kinderspielplatz auf dem Grundstück.
Die Rohbauarbeiten haben bereits begonnen. Die Gebäude werden bis Juni 2026 fertiggestellt.
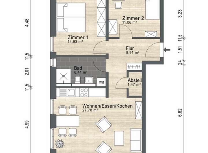
Die hier angebotene drei Zimmer Wohnung (Nr. 26) befindet sich im ersten Obergeschoss von Haus Nr. 4 und verfügt über 73,11m² Wohnfläche mit einem außenliegenden Badezimmer mit ebenerdiger Dusche und Waschmaschinenanschluss.
Der Wohn- Essbereich ist offen gestaltet und durch bodentiefe Fenster mit Licht durchflutet. Über das große Terrassenfenster gelangt man direkt auf den Balkon.
Das Hauptschlafzimmer hat eine Größe von knapp 15m² und das zweite Schlafzimmer hat 11m².
Der Wohnung ist ein eigener Kellerraum zugeordnet. Ein kleiner Abstellraum befindet sich innerhalb der Wohnung.
Die Wohnung können Sie ganz nach Ihren Vorstellungen gestalten. Egal ob Elektroplanung, Sanitärobjekte, Bodenbeläge, Fliesen oder Innentüren: Sie entscheiden, wie Ihre Wohnung aussehen soll.
Als Grundlage hierzu dient die Bau- und Leistungsbeschreibung des Bauträgers. Diese senden wir Ihnen gerne auf Nachfrage zu!
Sollten Sie sich für eine andere Wohnung aus der Wohnanlage Mönkhofer Weg 179 interessieren, die hier nicht aufgeführt ist, kommen Sie gerne auf uns zu.
Offenes Wohnen, 3-Zimmer mit Balkon, Neubau, EH40, Provisionsfrei
Mönkhofer Weg 179,
23562 Lübeck
Auf Karte anzeigen
Finanzierungszertifikat
In nur zwei Minuten zu Ihrem persönlichen Finanzierungszertifkat.
Infos
| Wohnfläche ca. | 73 m2 |
|---|---|
| Bezugsfrei ab | 2025/2026 |
| Zimmer | 3 |
| Schlafzimmer | 2 |
| Badezimmer | 1 |
Kosten
| Kaufpreis |
387.000 € |
|---|---|
| Hausgeld |
265 € |
| Provision | Nein |
Finanzierungsrechner:
Kaufpreis:
600.000 €
Eigenkapital:
600.000 €
Monatliche Rate
0 €
Effektiver Jahreszins
0 %
Sollzinsbindung
10 Jahre
Bausubstanz & Energieausweis
| Baujahr | 2025 |
|---|---|
| Objektzustand | Erstbezug |
| Qualität der Austattung | Gehoben |
| Heizungsart | Wärmepumpe |
| Wesentliche Energieträger | Strom |
| Energieausweis | liegt zur Besichtigung vor |
Beschreibung des Objekts
Ausstattung
- Fahrstuhl
- Ebenerdiger Zugang
- Fußbodenheizung in allen Räumen
- Dreifachverglaste Fenster
- Elektrische Rollläden an allen Fenstern
- Warmwasser und Heizung durch Luft-Wärmepumpe
- Individuell wählbare Bodenbeläge, Fliesen und Innentüren
- Individuelle Sanitärplanung
- Hochwertige Sanitärobjekte
- Individuelle Elektroplanung
- Schlüsselfertige Herstellung inklusive Bauendreinigung
- Zahlung nach Makler- und Bauträgerverordnung
Lage
Die Wohnanlage liegt zentral im beliebten Lübecker Stadtteil St. Jürgen und ist optimal ans öffentliche Verkehrsnetz angebunden.
In nur 80 Metern Entfernung befindet sich die nächste Bushaltestelle und nur 200 Meter weiter der Bahnhaltepunkt St. Jürgen von dem Sie innerhalb sieben Minuten zum Lübecker Hauptbahnhof gelangen.
Das UKSH Lübeck ist mit dem Auto in gerade einmal vier Minuten zu erreichen. Hier finden Sie unzählige Ärzte, sowie eine Augen- und Kinderklinik.
Angrenzend daran liegt die Universität zu Lübeck und die Technische Hochschule Lübeck.
Die nächste Grundschule ist in nur drei Autominuten zu erreichen.
Das Johanneum zu Lübeck befindet sich in knapp drei Kilometern Entfernung und kann wunderbar mit dem Bus erreicht werden.
In der Umgebung gibt es zahlreiche Einkaufsmöglichkeiten und Restaurants. Den nächstgelegenen REWE erreichen Sie in nur zwei Minuten mit dem Fahrrad.
Sonstige Angaben
Alle Angaben erfolgen nach Auskunft unseres Auftraggebers. Für die Richtigkeit wird keine Gewähr übernommen. Dieses Angebot ist freibleibend.
Für Rückfragen sowie die Vereinbarung von Besichtigungsterminen stehen wir Ihnen jederzeit gerne unter
0170 9620534 zur Verfügung.
Besichtigungen sind nur nach Terminabsprache mit TDF Immobilien GbR möglich.
Wir freuen uns auf Sie!
Weitere Dokumente
Haus 4 - OG1 -OG2 - MönkhoferGrundriss
Grundriss Wohnung 26/29
>
>
Grundriss WG26
>
>
Grundriss Keller-Tiefgarage Ha
>
>
Adresse
Mönkhofer Weg 179, 23562 Lübeck
Interessante Orte
Preis- und Lageinformationen
Preistrend für Bestandsimmobilien in St. Jürgen