Terrasse, Garten und viel Platz zum Wohlfühlen: Dieses moderne Einfamilienhaus bietet Ihnen Wohnglück auf zwei Etagen.
In diesem Einfamilienhaus mit Terrasse, offenem Wohn-/Küchenbereich, vier Schlafzimmern und einem separaten Gäste- oder Arbeitszimmer können Sie Ihr Familienleben richtig genießen. Das geräumige, durch bodentiefe Fenster hell erleuchtete Wohnzimmer eignet sich bestens für die gemeinsame Familienzeit. Die offene Wohnküche mit dem dazugehörigen Essbereich sorgen für eine freudige Atmosphäre beim Kochen und ermöglicht kulinarische Abenteuer.
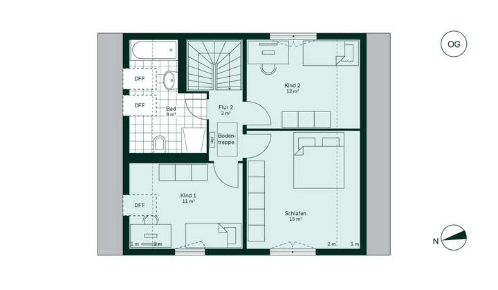
Die Terrasse ermöglicht sommerliche Grillparties an der frischen Luft, während im Winter die energieeffiziente Fußbodenheizung für Wärme sorgt. Im Obergeschoss findet in den drei großen Zimmern jedes Familienmitglied einen bequemen Rückzugsort. Das Badezimmer und das separate Gäste-WC sind modern gefliest und bieten vollen Komfort. Extras wie das Gästezimmer, der nützliche Abstellraum und der Hauswirtschaftsraum runden Ihr neues Zuhause elegant ab.
Finanzierungszertifikat
In nur zwei Minuten zu Ihrem persönlichen Finanzierungszertifkat.
Infos
| Haustyp | Einfamilienhaus |
|---|---|
| Wohnfläche ca. | 113 m2 |
| Nutzfläche | 5,29 m2 |
| Grundstücksfläche | 375 m2 |
| Bezugsfrei ab | April 2026 |
| Zimmer | 4,5 |
| Schlafzimmer | 4 |
| Badezimmer | 1 |
| Garage/Stellplatz | Außenstellplatz |
| Anzahl Garage/Stellplatz | 2 |
Kosten
| Kaufpreis |
459.900 € |
|---|---|
| Provision | Nein |
Finanzierungsrechner:
Kaufpreis:
600.000 €
Eigenkapital:
600.000 €
Monatliche Rate
0 €
Effektiver Jahreszins
0 %
Sollzinsbindung
10 Jahre
Bausubstanz & Energieausweis
| Baujahr | 2024 |
|---|---|
| Bauphase | Haus im Bau |
| Objektzustand | Erstbezug |
| Qualität der Austattung | Gehoben |
| Heizungsart | Fußbodenheizung |
Beschreibung des Objekts
Ausstattung
- Massivhaus mit Satteldach
- große Terrasse
- Grundstück inklusive
- bodentiefe Fenster im Wohn-/Küchenbereich
- 4 Schlafzimmer
- Tageslichtbad mit Badewanne und bodengleicher Dusche
- moderne Fliesen
- Gäste-WC
- Hauswirtschaftsraum
- Fußbodenheizung
- Bodeneinschubtreppe zum Spitzdach
- zwei Außenstellplätze
- Wärmeversorgung mit Luft-Wärmepumpe
- auf Wunsch zusätzlich mit Echtholz-Parkett und/oder Garage
- Effizienzhaus 55 nach GEG 2023
- idyllische Lage
- neuer Kinderspielplatz direkt am Quartier
Lage
Im Seequartier genießen Sie eine herrliche Lage zwischen dem Großen Müllroser See, dem Katharinensee und viel Natur. Zur Badestelle sind es gerade mal 20 Meter. Kurze Wege zum Bäcker und zum Supermarkt sorgen außerdem für hohe Lebensqualität. Willkommen im Städtchen Müllrose.
Grundriss
Geräumiges Erdgeschoss mit ...
>
>
Geräumiges Obergeschoss mit...
>
>
Adresse
Dorotheenweg 16, 15299 Müllrose
Interessante Orte
Preis- und Lageinformationen
Preistrend für Bestandsimmobilien in Müllrose