Dieses Grundstück befindet sich in der Gemeinde Leopoldshöhe im Kreis Lippe und verfügt über eine gute Infrastruktur. Die Lage ist sehr ruhig und bietet eine gute Verkehrsanbindung in die umliegenden Städte.
Das Grundstück bietet viel Platz, um Ihr Traumhaus zu bauen. Es ist ebenerdig, voll erschlossen und ideal für den Bau eines Einfamilienhauses oder eines Doppelhauses geeignet!
Es handelt sich hierbei um ein Grundstück, das eine einmalige Gelegenheit darstellt, um Ihren Traum vom eigenen Zuhause zu verwirklichen.
.Eine Baugenehmigung für zwei Doppelhäuser liegt uns bereits vor!
( Wohnfläche pro Doppelhaushälfte= ca. 150 m², 5 Zimmer)
Bauträgerfrei!!!!
Grundstück für ein Doppelhaus oder Einfamilienhaus mit Baugenehmigung!!! Bauträgerfrei!!!
33818 Leopoldshöhe
Die vollständige Adresse der Immobilie erhalten Sie vom Anbieter.
Auf Karte anzeigen
Die vollständige Adresse der Immobilie erhalten Sie vom Anbieter.
Finanzierungszertifikat
In nur zwei Minuten zu Ihrem persönlichen Finanzierungszertifkat.
Infos
| Vermarktungsart | Kaufen |
|---|---|
| Grundstücksfläche | 600 m2 |
| Erschließung | Erschlossen |
| Empfohlene Nutzung | Doppelhaus, Einfamilienhaus |
| Bebaubar nach | Bebauungsplan |
| Verfügbar ab | sofort |
Kosten
| Miete pro Jahr |
239.000 € |
|---|---|
| Provision | Nein |
Finanzierungsrechner:
Kaufpreis:
600.000 €
Eigenkapital:
600.000 €
Monatliche Rate
0 €
Effektiver Jahreszins
0 %
Sollzinsbindung
10 Jahre
Beschreibung des Objekts
Lage
Das Grundstück befindet sich in einem allgemeinen Wohngebiet unweit der Einkaufsstraße in Asemissen.
Die nächste Kita sowie Grundschule sind nur einen Katzensprung entfernt und mit dem Fahrrad in nur 3 Minuten zu erreichen.
Auch Dinge des täglichen Bedarfs wie Einkausfmöglichkeiten, Apotheke, Friseur und Bäcker sind in unter 5 Minuten mit dem Fahrrad zu erreichen.
Darüber hinaus laden die nahgelegenen Felder und Waldstücke zu erholsamen und entspannten Spaziergängen in der Natur ein!
Bauträgerfrei!!!!
Sonstige Angaben
Eine Baugenehmigung für ein Doppelhaus liegt uns bereits vor!
Sie sind nicht an uns als Bauträger gebunden. Dennoch bieten wir Ihnen gerne unsere Hilfe für die Verwirklichung Ihrer Traumimmobilie an.
Bauträgerfrei!!!!
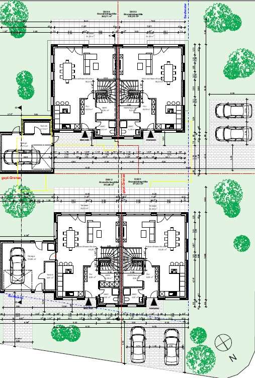
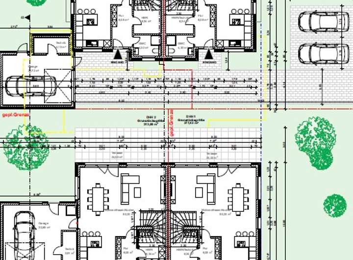
Grundriss
Erdgeschoss
>
>
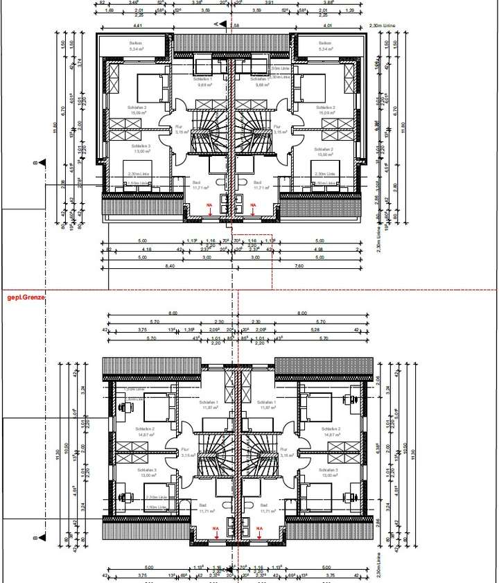
Obergeschoss
>
>
Spitzboden
>
>