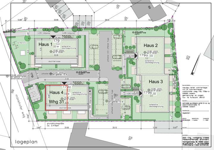
Im Mönkhofer Weg 179 entstehen insgesamt 31 Eigentumswohnungen, aufgeteilt auf vier architektonisch moderne Baukörper.
Die Gebäude werden in Massivbauweise und mit Flachdach im KfW 40 Standard hergestellt.
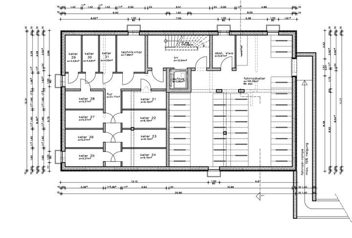
Auf dem Grundstück werden zudem noch 23 PKW Stellplätze, sowie eine Fahrrad Tiefgarage mit 60 Stellplätzen geschaffen.
Zusätzlich entsteht ein Kinderspielplatz auf dem Grundstück.
Die Rohbauarbeiten haben bereits begonnen. Die Gebäude werden bis Juni 2026 fertiggestellt.
Die hier angebotene zwei Zimmer Penthouse Wohnung (Nr. 31) befindet sich im Staffelgeschoss von Haus 4 und wird eine Wohnfläche von 85,26m² aufweisen.
Die Wohnung ist barrierefrei geplant und verfügt über eine nach Süd-Osten ausgerichtete Dachterrasse.
Die Wohnung können Sie ganz nach Ihren Vorstellungen gestalten. Egal ob Elektroplanung, Sanitärobjekte, Bodenbeläge, Fliesen oder Innentüren: Sie entscheiden, wie Ihre Wohnung aussehen soll.
Als Grundlage hierzu dient die Bau- und Leistungsbeschreibung des Bauträgers. Diese senden wir Ihnen gerne auf Nachfrage zu!
Sollten Sie sich für eine andere Wohnung aus der Wohnanlage Mönkhofer Weg 179 interessieren, die hier nicht aufgeführt ist, kommen Sie gerne auf uns zu.
Großzügige Penthouse Wohnung in St. Jürgen, Neubau, KFW40, Provisionsfrei
Mönkhofer Weg 179,
23562 Lübeck
Auf Karte anzeigen
Finanzierungszertifikat
In nur zwei Minuten zu Ihrem persönlichen Finanzierungszertifkat.
Infos
| Wohnungskategorie | Penthouse |
|---|---|
| Wohnfläche ca. | 85 m2 |
| Bezugsfrei ab | 2025/2026 |
| Zimmer | 2 |
| Schlafzimmer | 1 |
| Badezimmer | 1 |
| Garage/Stellplatz | Außenstellplatz |
| Anzahl Garage/Stellplatz | 1 |
Kosten
| Kaufpreis |
511.560 € |
|---|---|
| Preis für Garage/Stellplatz | 15.000 € |
| Provision | Nein |
Finanzierungsrechner:
Kaufpreis:
600.000 €
Eigenkapital:
600.000 €
Monatliche Rate
0 €
Effektiver Jahreszins
0 %
Sollzinsbindung
10 Jahre
Bausubstanz & Energieausweis
| Baujahr | 2025 |
|---|---|
| Objektzustand | Erstbezug |
| Qualität der Austattung | Gehoben |
| Heizungsart | Wärmepumpe |
| Wesentliche Energieträger | Strom |
| Energieausweis | liegt zur Besichtigung vor |
Beschreibung des Objekts
Ausstattung
- Fahrstuhl
- Ebenerdiger Zugang
- Fußbodenheizung in allen Räumen
- Dreifachverglaste Fenster, Schallschutzverglasung Straßenseitig
- Rollläden an allen Fenstern enthalten
- Heizung durch Luft-Wärmepumpe
- Individuell wählbare Bodenbeläge, Fliesen und Innentüren
- Individuelle Sanitärplanung
- Hochwertige Sanitärobjekte
- Individuelle Elektroplanung
- Schlüsselfertige Herstellung inklusive Bauendreinigung
- Zahlung nach Makler- und Bauträgerverordnung
Lage
Die Wohnanlage liegt zentral im beliebten Lübecker Stadtteil St. Jürgen und ist optimal ans öffentliche Verkehrsnetz angebunden.
In nur 80 Metern Entfernung befindet sich die nächste Bushaltestelle und nur 200 Meter weiter der Bahnhaltepunkt St. Jürgen von dem Sie innerhalb sieben Minuten zum Lübecker Hauptbahnhof gelangen.
Das UKSH Lübeck ist mit dem Auto in gerade einmal vier Minuten zu erreichen. Hier finden Sie unzählige Ärzte, sowie eine Augen- und Kinderklinik.
Angrenzend daran liegt die Universität zu Lübeck und die Technische Hochschule Lübeck.
Die nächste Grundschule ist in nur drei Autominuten zu erreichen.
Das Johanneum zu Lübeck befindet sich in knapp drei Kilometern Entfernung und kann wunderbar mit dem Bus erreicht werden.
In der Umgebung gibt es zahlreiche Einkaufsmöglichkeiten und Restaurants. Den nächstgelegenen REWE erreichen Sie in nur zwei Minuten mit dem Fahrrad.
Sonstige Angaben
Alle Angaben erfolgen nach Auskunft unseres Auftraggebers. Für die Richtigkeit wird keine Gewähr übernommen. Dieses Angebot ist freibleibend.
Für Rückfragen sowie die Vereinbarung von Besichtigungsterminen stehen wir Ihnen jederzeit gerne unter
0170 9620534 zur Verfügung.
Besichtigungen sind nur nach Terminabsprache mit TDF Immobilien GbR möglich.
Wir freuen uns auf Sie!
Grundriss
Lageplan Wohnung 31
>
>
Grundriss Wohnung 31
>
>
Grundriss Keller-Tiefgarage Ha
>
PDF
Download
>
PDF Download
Adresse
Mönkhofer Weg 179, 23562 Lübeck
Interessante Orte
Preis- und Lageinformationen
Preistrend für Bestandsimmobilien in St. Jürgen