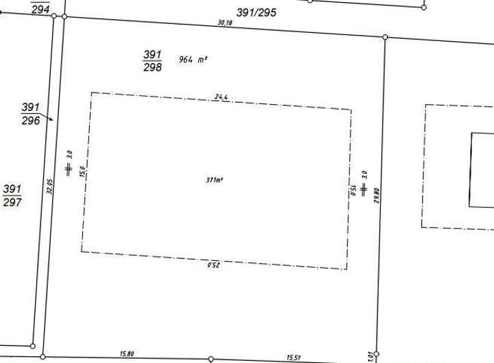
Zum Verkauf steht ein großzügiges und voll erschlossenes Grundstück mit einer Fläche von 964 m², gelegen in einer historischen Waldsiedlung in Upjever, unweit der charmanten Brauerei- und Marienstadt Jever.
● Teilbarkeit: Das Grundstück bietet die Möglichkeit zur Teilung in zwei gleich große Parzellen oder zur Bebauung mit einem Doppelhaus.
● Denkmalschutz: Als Teil des Ensembleschutzes von Upjever genießen Sie die einzigartige Ästhetik geschützter Außenfassaden und erhaltenen Baumbestands.
● Lokale Anbindung: In unmittelbarer Nähe befinden sich diverse lokale Annehmlichkeiten wie Bäcker, Fleischer und Gaststätten sowie optimale Verkehrsanbindungen zu Bus und Autobahn. Das Zentrum von Jever ist nur 3 km entfernt.
● Natur und Freizeit: Perfekt für Natur- und Sportliebhaber mit Waldgebieten, Wanderwegen, Sportanlagen und dem Meer in naher Umgebung.
Sonniges Grundstück - 964 m² teilbar - Wohnsiedlung Upjever - Nordsee
26419 Schortens
Die vollständige Adresse der Immobilie erhalten Sie vom Anbieter.
Auf Karte anzeigen
Die vollständige Adresse der Immobilie erhalten Sie vom Anbieter.
Finanzierungszertifikat
In nur zwei Minuten zu Ihrem persönlichen Finanzierungszertifkat.
Infos
| Vermarktungsart | Kaufen |
|---|---|
| Grundstücksfläche | 964 m2 |
| Erschließung | Erschlossen |
| Bebaubar nach | Bebauungsplan |
| Verfügbar ab | sofort |
Kosten
| Miete pro Jahr |
120.000 € |
|---|---|
| Provision | Nein |
Finanzierungsrechner:
Kaufpreis:
600.000 €
Eigenkapital:
600.000 €
Monatliche Rate
0 €
Effektiver Jahreszins
0 %
Sollzinsbindung
10 Jahre
Beschreibung des Objekts
Lage
● Das Grundstück liegt im Friesenpark, einer besonders ruhigen und naturverbundenen Gegend.
● Unmittelbare Nähe zum Wald, ideal für Erholungssuchende und Aktive.
● Exzellente Infrastruktur mit kurzen Wegen: Jever Zentrum nur 3 km entfernt, Schortens Zentrum 5 km, nächste Autobahn 5 km.
● Lokale Annehmlichkeiten wie Bäcker, Fleischer und Restaurants sind innerhalb von 500-600 m erreichbar.
Sonstige Angaben
● Übernahme: Verfügbar nach Absprache, das Grundstück ist sofort bebaubar und frei zugänglich.
● Planungsfreiheit: Bau gemäß Bebauungsplan 117 und der Gestaltungssatzung der Stadt Schortens. Weitere Informationen und Details finden Sie unter: https://www.schortens.de/bauen-wirtschaft/bauen-wohnen/bebauungsplaene \[https://www.schortens.de/bauen-wirtschaft/bauen-wohnen/bebauungsplaene\]
● Kaufkonditionen: Direkt vom Eigentümer, provisionsfrei. Reservierungen erfolgen unter Vorlage einer Finanzierungsbestätigung.
● Besichtigung und Kontakt: Besichtigungen sind jederzeit möglich. Für weitere Informationen und zur Vereinbarung eines Besichtigungstermins kontaktieren Sie uns bitte direkt. Nutzen Sie die Gelegenheit, Ihr Traumhaus in einer der attraktivsten Lagen Norddeutschlands zu errichten.