Dieses Grundstück bietet ideale Voraussetzung für ein
Pflegeheim-Projekt oder einen Wohnungsbau-Projekt.
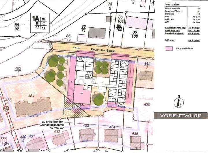
Es liegt im Mischgebiet und ist ebenerdig, was einmalig in Daun
so zu finden ist.
Es eignet sich ideal für Wohnungsbau mit Gewerbeeinheiten.
Aktuell befindet sich noch eine Lagerhalle auf diesem Grundstück.
Speziale Info für Projekte hinsichtlich Pflegeeinrichtung :
Die Bebauungsplanänderung hinsichtlich eine Pflegeeinrichtung ist bereits fast vollumfänglich abgeschlossen, so dass nach der Anpassung auf Ihr vorhaben, ein Baubeginn kurzfristig möglich wäre
Hier der Link zur Veröffentlichung der Bebauungsplanänderung Begründung:
https://www.vgv-daun.de/aktuelles/oeffentliche-bekanntmachungen/stadt-daun-paffenborn/begruendung.pdf?cid=d87
Für nur die Nutzung der Halle anzustreben müsste das Dach ausgebessert werden .
Eckdaten:
1 Haupthalle mit Einstellboxen Büros usw
1 Waschhalle
1 Werkhalle
4122 m² Gesamtgrundstück
1017 m² Nutzfläche
6195 m³ Gebäude Größe
Aufteilung EG & OG sehen Sie bei den Bildern
Mischgebiet & ebenerdig ideale Lage für ein Pflegeheim
Boverather Straße 4,
54550 Daun
Auf Karte anzeigen
Finanzierungszertifikat
In nur zwei Minuten zu Ihrem persönlichen Finanzierungszertifkat.
Infos
| Vermarktungsart | Kaufen |
|---|---|
| Grundstücksfläche | 4.122 m2 |
| Erschließung | Erschlossen |
| Bebaubar nach | Bebauungsplan |
Kosten
| Miete pro Jahr |
519.000 € |
|---|---|
| Provision | Nein |
Finanzierungsrechner:
Kaufpreis:
600.000 €
Eigenkapital:
600.000 €
Monatliche Rate
0 €
Effektiver Jahreszins
0 %
Sollzinsbindung
10 Jahre