Projektiertes Grundstück mit Baugenehmigung!
Nutzen Sie die einmalige Gelegenheit, ein voll erschlossenes Grundstück mit bestehender Baugenehmigung für ein Wohnprojekt mit 4-5 Einheiten zu erwerben. Gelegen in einer attraktiven Lage, bietet dieses Grundstück das perfekte Fundament für Ihr nächstes Bauvorhaben. Alle notwendigen Dokumente und Genehmigungen liegen vor, sodass Sie sofort mit der Realisierung starten können. Auch Angebote von Generalunternehmen geben wir gerne an Sie weiter.
Grundstück mit Baugenehmigung – Starten Sie Ihr Bauvorhaben!
Bergstr. 111,
79268 Bötzingen
Auf Karte anzeigen
Finanzierungszertifikat
In nur zwei Minuten zu Ihrem persönlichen Finanzierungszertifkat.
Infos
| Vermarktungsart | Kaufen |
|---|---|
| Grundstücksfläche | 444 m2 |
Kosten
| Miete pro Jahr |
695.000 € |
|---|---|
| Provision | Nein |
Finanzierungsrechner:
Kaufpreis:
600.000 €
Eigenkapital:
600.000 €
Monatliche Rate
0 €
Effektiver Jahreszins
0 %
Sollzinsbindung
10 Jahre
Beschreibung des Objekts
Lage
Eingebettet in eine schöne Umgebung aus Weinbergen und Natur, bietet die Bergstraße 111 eine einzigartige Kombination aus Ruhe und zentraler Lage. Nur wenige Gehminuten entfernt finden Sie Einkaufsmöglichkeiten, Restaurants und öffentliche Verkehrsmittel.
Bötzingen selbst ist eine äußerst familienfreundliche Gemeinde mit einer ausgezeichneten Infrastruktur und vielfältigen Angeboten für alle Lebensbereiche. Die Wege zu verschiedenen Annehmlichkeiten sind kurz: Mehrere Arztpraxen, eine Apotheke, eine Bank, eine Postfiliale und ein Supermarkt befinden sich im Ort. Für Weinliebhaber ist das Weingut Höfflin in der Nähe ein empfehlenswertes Ziel. Zahlreiche Bäckereien und Restaurants mit badischer Küche, darunter auch solche mit Übernachtungsmöglichkeiten, tragen zum gastronomischen Angebot bei.
Wenn Sie in Ihrer Freizeit die Umgebung erkunden möchten, erreichen Sie innerhalb von 5 Fahrminuten den Kaiserstuhl, in etwa 45 Minuten den Schwarzwald oder die Vogesen, und Freiburg ist in nur 10-15 Minuten erreichbar. Der Bahnhof in Bötzingen, der von der Deutschen Bahn (Neustadt-Endingen) bedient wird, bietet zusätzliche Flexibilität und Anbindung an die Region.
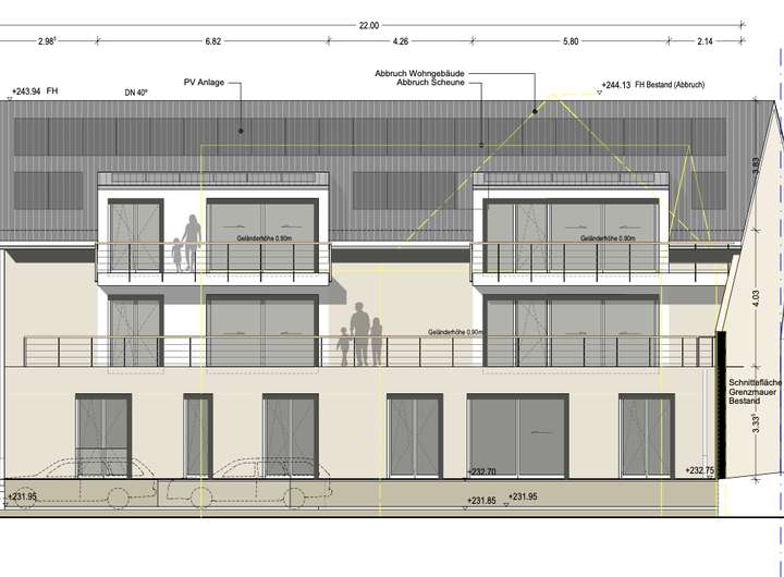
Die geplanten Wohnungen setzen auf hochwertige Materialien und modernste Ausstattung. Großzügige Wohn- und Essbereiche, moderne Bäder und gut dimensionierte Schlafzimmer schaffen eine luftige und einladende Atmosphäre. Die Erdgeschosswohnung ist barrierefrei gestaltet, während die Obergeschosswohnungen mit großzügigen Terrassen und die Dachgeschosswohnungen mit individuellen Gestaltungsmöglichkeiten punkten.
Das energieeffiziente Gebäudekonzept mit KfW-55-Standard verspricht niedrige Energiekosten und Umweltschonung. Solarzellen auf dem Dach nutzen erneuerbare Energien, und die Luft-Luft-Wärmepumpe gewährleistet eine effiziente und umweltfreundliche Beheizung und Kühlung.
Die nach Süden ausgerichteten Balkone bieten einen herrlichen Blick auf die Landschaft, perfekt zum Entspannen. Die idyllische Umgebung und die sonnige Lage machen Bötzingen zu einem attraktiven Ort, um das Leben in vollen Zügen zu genießen.
Zögern Sie nicht, das Exposé für dieses exklusive Neubauprojekt anzufordern und sich für eine der begehrten Wohnungen voranzumelden. Sichern Sie sich Ihr neues Zuhause in der Bergstraße 111 und erleben Sie die Qualität und den Komfort dieser Traumimmobilie von Beyer Wohnbau hautnah.