Bei dem angebotenen Baugrundstück in 2. Reihe handelt es sich um eine exklusiven Investitionsmöglichkeit für Bauträger und private Bauherren.
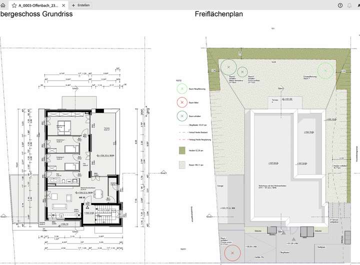
Dieses außergewöhnliche Grundstück bietet eine seltene Gelegenheit, in eine vielversprechende Immobilienentwicklung zu investieren. Mit einer großzügigen Fläche von 560m² und einer Baugenehmigung für ein Mehrfamilienhaus mit drei Einheiten und fast 400 Qm Wohnfläche, verspricht dieses Grundstück eine lukrative Rendite für Investoren.
Geplant ist ein zweigeschossiges Mehrfamilienhaus in zweiter Reihe mit Garage und Außenstellplatz. Die Planung kann ggf. noch angepasst werden.
Zusammenfassend bietet dieses Grundstück eine einzigartige Gelegenheit für Investoren, die auf der Suche nach einer rentablen Immobilienentwicklung sind. Mit einer Baugenehmigung, einem durchdachten Konzept und einer optimalen Lage ist dieses Objekt bereit, in ein erfolgreiches Bauprojekt verwandelt zu werden. Verpassen Sie nicht die Chance, Teil dieses vielversprechenden Investments zu werden!
Zu veranschaulichter Projektierung erhalten Sie gern auf Anfrage weitere Informationen.
Baugrundstück inkl. Planung u. Baugenehmigung für ein Mehrfamilienhaus in top Lage. Provisionsfrei
Scharfensteiner Str. 24A,
63075 Offenbach am Main
Auf Karte anzeigen
Finanzierungszertifikat
In nur zwei Minuten zu Ihrem persönlichen Finanzierungszertifkat.
Infos
| Vermarktungsart | Kaufen |
|---|---|
| Grundstücksfläche | 560 m2 |
| Erschließung | Unerschlossen |
| Empfohlene Nutzung | Mehrfamilienhaus |
Kosten
| Miete pro Jahr |
499.000 € |
|---|---|
| Provision | Nein |
Finanzierungsrechner:
Kaufpreis:
600.000 €
Eigenkapital:
600.000 €
Monatliche Rate
0 €
Effektiver Jahreszins
0 %
Sollzinsbindung
10 Jahre
Beschreibung des Objekts
Lage
Rumpenheim liegt etwa vier Kilometer nordöstlich der Offenbacher Innenstadt am linken Mainufer oberhalb des Mainbogens zwischen dem Stadtteil Bürgel und der Stadt Mühlheim am Main.
Die Mainfähre Rumpenheim verbindet Rumpenheim mit dem Maintaler Stadtteil Bischofsheim.
Der früher „Bischofsheim-Rumpenheim“ genannte Bahnhof, heute „Maintal West“, an der Bahnstrecke Frankfurt–Hanau, liegt ein ganzes Stück nördlich des Mains und ist nur über die Fähre zu erreichen.
Geschäfte des täglichen Bedarfs, Schulen, Ärzte, Restaurants,
Cafés uvm. befinden sich genauso wie eine Busverbindung nach Frankfurt a.M. oder Hanau in unmittelbarer Nähe.
Sonstige Angaben
Für weitere Informationen, Fotos oder einen Besichtigungstermin bitten wir, das Kontaktformlar vollständig auszufüllen und an uns zu übersenden.
Alle Angaben beruhen auf den Informationen des Auftraggebers. Wir übernehmen keine Gewähr für die Vollständigkeit, Richtigkeit und Aktualität dieser Angaben. Irrtum und Zwischenverkauf vorbehalten.
Sie haben eine Immobilie zu vermieten oder zu verkaufen? Wenden Sie sich an uns. Für vorgemerkte Kunden suchen wir ständig
Wohnungen, Häuser und Gewerbeobjekte zur Miete und zum Kauf im gesamten Rhein-Main-Gebiet.
Gerne sind wir bei der Suche nach einer maßgeschneiderten Finanzierung behilflich.