Ein charaktervolles Landhaus mit 22.707m2 Wiese und Garten, Weitblick und Ruhe!
Das ursprüngliche Haus wurde bereits in 1830 gebaut, in 1991 wurde aber ein komplett neues Haus gebaut auf den alten Fundamenten! Es wurde versehen von Hardholz-Fenstern mit Isolierverglasung und teilweise Außenblenden. Fußbodenheizung im Erdgeschoss und vieles mehr !!!
Aufteilung:
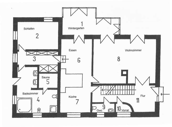
Eingangsbereich mit doppelter Glastüre zum Wohnzimmer. Das Wohnzimmer hat einen Holzkamin und zwei Mal Flügeltüren zum Wintergarten/zur Terrasse.
Im Flur sind einen Abstellraum, eine Gästetoilette und eine Treppe aus Zebrano-Holz !!
Hochwertige Küche aus Holz, (modernisiert in 2019) mit Kochinsel und viel Stauraum. Die Küche enthält: Induktionsfeld 90cm, Abzugshaube, Spülmaschine, Backofen, Mikrowelle, Apothekerschrank, doppelter Kühlschrank und Komposit Arbeitsplatten. Unter der Küche ist ein charmanter Gewölbekeller.
Vom Essbereich aus erreicht man über Flügeltüren der Wintergarten (Kunststofffenster, Doppelverglast) mit elektrisch bedienten Markisen.
Im Wintergarten ist eine Treppe zum 2. Gewölbekeller (Weinkeller)..
Neben der Küche sind ein großes Elternschlafzimmer und ein Wellness-Bad mit Whirlpool-Wanne, eine ebenerdige Dusche, Toilette, 2 Waschtische und eine Sauna.
Obergeschoss:
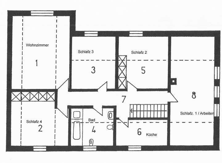
Eine Treppe aus Zebranoholz führt zum Flur.
Schlafzimmer 1 (groß) mit Laminat (evtl. auch als Wohnzimmer/Arbeitszimmer zu nutzen)
Schlafzimmer 2. mit Laminat.
Schlafzimmer 3 mit Laminat.
Zweites Wohnzimmer.
Schlafzimmer 4 mit Laminat.
Badezimmer mit Badewanne, Dusche, Waschtisch und WC.
Kleine Küche.
Die obere Etage war mal in Gebrauch als Bed&Breakfast.
Über dem Obergeschoss sind 2 Speicher vorhanden.
Garage: Doppelgarage mit Schuppen, misst 6x9M: Werkstatt und Holzlager. Auf dem Dachboden ist die Heizungsanlage untergebracht (Gas 2020 mit unterirdischem Eigentumstank). Vor der Garage sind 3 Stellplätze.
Garten ca 4400m2: davon 3000m2 Garten, Gemüsegarten, Obstgarten, Schafswiese mit Schafsstall, Hundezwinger und Hühnerstall und Große Terrasse.
Eine Straße läuft der Wiese entlang, und ein großes Tor bietet Zugang zur Wiese. Ein zweites Tor bietet Zugang zum Garten. Hier könnte man zum Biespiel auch ein Wohnmobil parken.
Das Grundstück bietet viel Privatsphäre durch den alten Baumbestand, den Zaun und die Hecken.
Ganz hinten liegt dann noch eine Wiese von 18.302 m2.
Charaktervolles Landhaus mit einem Grundstück von ca 23000m2 mit Weitblick und Ruhe.
47559 Kranenburg
Die vollständige Adresse der Immobilie erhalten Sie vom Anbieter.
Auf Karte anzeigen
Die vollständige Adresse der Immobilie erhalten Sie vom Anbieter.
Finanzierungszertifikat
In nur zwei Minuten zu Ihrem persönlichen Finanzierungszertifkat.
Infos
| Haustyp | Bauernhaus |
|---|---|
| Etagenzahl | 3 |
| Wohnfläche ca. | 246 m2 |
| Nutzfläche | 70 m2 |
| Grundstücksfläche | 22.707 m2 |
| Zimmer | 7 |
| Schlafzimmer | 6 |
| Badezimmer | 2 |
| Garage/Stellplatz | Duplex |
| Anzahl Garage/Stellplatz | 2 |
Kosten
| Kaufpreis |
985.000 € |
|---|---|
| Provision |
1,8 % vom Käufer und vom Verkäufer, je |
Finanzierungsrechner:
Kaufpreis:
600.000 €
Eigenkapital:
600.000 €
Monatliche Rate
0 €
Effektiver Jahreszins
0 %
Sollzinsbindung
10 Jahre
Bausubstanz & Energieausweis
| Baujahr | 1991 |
|---|---|
| Letzte Sanierung | 2020 |
| Objektzustand | Vollständig Renoviert |
| Heizungsart | Fußbodenheizung |
| Wesentliche Energieträger | Gas |
Beschreibung des Objekts
Lage
Das schöne Landhaus befindet sich an einer ruhigen Straße, direkt am Naturschutzgebiet und nahe am Erholungsgebiet Wylerbergmeer. Weitblick über Felder bis zum Reichswald und `De Duivelsberg` in den Niederlanden.
Nimwegen erreicht man in 10 Fahrminuten, Kleve in ca 20 Fahrminuten.
Grundriss
Lage
>
>
EG
>
>
OG
>
>
Adresse
47559 Kranenburg
Interessante Orte
Preis- und Lageinformationen
Preistrend für Bestandsimmobilien in Kranenburg