Mit fünf geräumigen Zimmern und einer sonnigen Terrasse können Sie und Ihre Liebsten sich hier absolut wohlfühlen.
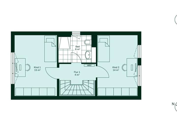
Dieses Reihenhaus überzeugt durch einen offenen und hellen Wohnbereich im Erdgeschoss, der direkt auf die Terrasse führt. Ideal für entspannte Stunden im Freien. Eine offene Küche, die zum Kochen und Genießen einlädt, sowie ein praktisches Duschbad runden das Erdgeschoss ab. Im Obergeschoss erwarten Sie zwei gemütliche Schlafzimmer und ein modernes Badezimmer mit Badewanne. Ihr neuer Lieblingsraum: Das komfortable Schlafzimmer mit begehbarer Ankleide im Dachgeschoss. Das schafft nicht nur Platz sondern sorgt auch für einen aufgeräumten Look. Gleich nebenan bietet Ihnen ein zusätzliches Zimmer weitere Nutzungsmöglichkeiten.
Reihenhaus mit energieeffizienter Bauweise
Emilie-Fontane-Straße 50,
15806 Zossen
Auf Karte anzeigen
Finanzierungszertifikat
In nur zwei Minuten zu Ihrem persönlichen Finanzierungszertifkat.
Infos
| Haustyp | Reiheneckhaus |
|---|---|
| Wohnfläche ca. | 109 m2 |
| Nutzfläche | 4 m2 |
| Grundstücksfläche | 0 m2 |
| Bezugsfrei ab | September 2025 |
| Zimmer | 5 |
| Schlafzimmer | 4 |
| Badezimmer | 2 |
| Garage/Stellplatz | Außenstellplatz |
| Anzahl Garage/Stellplatz | 2 |
Kosten
| Kaufpreis |
419.900 € |
|---|---|
| Provision | Nein |
Finanzierungsrechner:
Kaufpreis:
600.000 €
Eigenkapital:
600.000 €
Monatliche Rate
0 €
Effektiver Jahreszins
0 %
Sollzinsbindung
10 Jahre
Bausubstanz & Energieausweis
| Baujahr | 2024 |
|---|---|
| Bauphase | Haus im Bau |
| Objektzustand | Erstbezug |
| Qualität der Austattung | Gehoben |
| Heizungsart | Fußbodenheizung |
Beschreibung des Objekts
Ausstattung
- bodentiefe Fenster
- zwei Bäder
- pflegeleichter Designboden
- offener Wohn- und Essbereich
- Rollläden
- zwei Außenstellplätze
. kleiner Gartenanteil
- Effizienzhaus 55 mit Fußbodenheizung
- inklusive Luft-Wärmepumpe
- Quartierstreffpunkt mit Leseecke
Lage
Mitten in einer idyllischen Landschaft aus schattigen Kiefernwäldern und zahlreichen Seen entsteht unser familienfreundliches Neubauquartier - das Fontaneviertel. Es liegt in der Waldstadt, die früher zu Wünsdorf gehörte – einem Teil des historischen kurfürstlichen Amtes Zossen. Zur nächsten Grundschule sind es 600 m und zum Bus nur 300 m. Im nahen Umfeld gibt es mehrere Supermärkte.
Sonstige Angaben
Wir übernehmen Ihre Notarkosten
Bei Reservierung Ihrer Wunschimmobilie im Fontaneviertel bis 31.08.2025 übernehmen wir die Notarkosten* für Sie. Der Notar spielt eine große Rolle bei der Vertragserläuterung. So sind Sie rechtlich bestens abgesichert. Bis dahin unterstützen wir Sie gerne bei allen Fragen rund um Ihren Immobilienkauf bei uns. *Gilt für die Notarkosten auf den beurkundeten Kaufpreis, bei Reservierung bis zum 31.08.2025. Keine Kostenübernahme für etwaige Grundschuldbestellungen.
Adresse
Emilie-Fontane-Straße 50, 15806 Zossen
Interessante Orte
Preis- und Lageinformationen
Preistrend für Bestandsimmobilien in Zossen