Im beliebten Wenningstedt, auf einem ca. 790 m² großen Gesamtgrundstück, wird ein attraktives Doppelhaus unter Reet erbaut.
Die gesamte Immobilie wird mit hochwertigen Materialien und Tischlereinbauten ausgestattet.
Die Fertigstellung ist für Herbst 2025 geplant.
Es entstehen zwei Doppelhaushälften mit einer Wohn- und Nutzfläche von ca. 183 m² bzw. 184 m². Die Ausrichtung der Gärten ist ideal in Richtung Westen. Jede Einheit verfügt über zwei PKW-Stellplätze.
Gemäß Baugenehmigung ist eine Nutzung zur Ferienvermietung zugelassen.
Weitere Informationen geben wir Ihnen gern in einem persönlichen Gespräch.
Großzügiger Neubau zur Ferienvermietung
25996 Wenningstedt-Braderup (Sylt)
Die vollständige Adresse der Immobilie erhalten Sie vom Anbieter.
Auf Karte anzeigen
Die vollständige Adresse der Immobilie erhalten Sie vom Anbieter.
Finanzierungszertifikat
In nur zwei Minuten zu Ihrem persönlichen Finanzierungszertifkat.
Infos
| Haustyp | Doppelhaushaelfte |
|---|---|
| Wohnfläche ca. | 183 m2 |
| Grundstücksfläche | 395 m2 |
| Zimmer | 7 |
| Badezimmer | 3 |
| Garage/Stellplatz | Außenstellplatz |
| Anzahl Garage/Stellplatz | 2 |
Kosten
| Kaufpreis |
3.690.000 € |
|---|---|
| Provision |
3,57 % inkl. MwSt. |
Finanzierungsrechner:
Kaufpreis:
600.000 €
Eigenkapital:
600.000 €
Monatliche Rate
0 €
Effektiver Jahreszins
0 %
Sollzinsbindung
10 Jahre
Bausubstanz & Energieausweis
| Baujahr | 2025 |
|---|---|
| Objektzustand | Erstbezug |
| Wesentliche Energieträger | Erdwärme |
Beschreibung des Objekts
Ausstattung
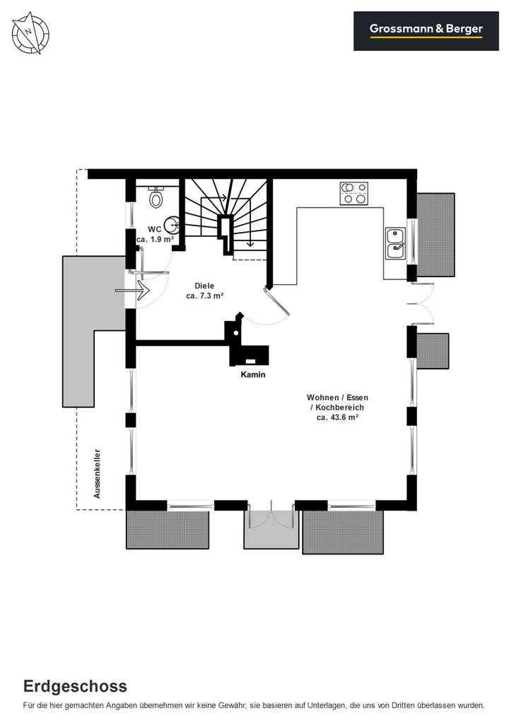
Im Erdgeschoss bildet ein großzügiger Wohn- und Essbereich mit Gaskamin und sich anschließender, offener Küche das Herzstück. Große Fensterflächen lassen viel Tageslicht herein. Die Terrasse lädt zu ausgiebigem Sonnenbaden ein. Ein sylttypischer Friesenwall mit passender Bepflanzung sorgt für die gewünschte Privatsphäre. Der geräumige Eingangsbereich und ein Gäste-WC komplettieren das Raumangebot auf dieser Ebene.
Im Dachgeschoss stehen zwei Schlafzimmer sowie zwei Badezimmer zur Verfügung. Maßangefertigte Einbauschränke bieten ausreichend Stauraum.
Der ausgebaute Spitzboden bietet weitere Fläche zur individuellen Nutzung.
Das Untergeschoss beherbergt die gesamte Haustechnik, einen Hauswirtschaftsraum sowie einen einladenden Wellnessbereich mit Sauna. Zwei große Zimmer mit bodentiefen Kasematten runden das Platzangebot ab.
Gern erläutern wir Ihnen alle Details und stellen Ihnen die weiterführenden Unterlagen zur Verfügung.
Lage
Nördlich von Westerland, südlich von Kampen, westlich von Braderup und eingebettet in eine urwüchsige Dünenlandschaft liegt der Ort Wenningstedt.
Mit seinem langen und feinkörnigen Sandstrand und seiner Kinderfreundlichkeit hat er sich als Familienbad der Insel einen Namen gemacht. Das Kliff mit seinem malerischen Ausblick auf die Nordsee und der idyllisch angelegte Dorfteich im Ortskern laden zu Spaziergängen und zum Entspannen ein.
Minigolf, Trampolinspringen und die Sylt4Fun-Halle sowie die Sylt4Fun-Arena vertreiben den kleinen Gästen die Langeweile. Wer sich sportlich betätigen möchte, begibt sich auf das satte Grün des nahegelegenen 18-Loch Golfplatzes. Auch kulinarisch hat der Ort viel zu bieten, von dem Fischbrötchen bei Gosch bis zur gehobenen Gastronomie ist alles vertreten.
Das Grundstück selbst liegt in einer ruhigen Wohnstraße fußläufig zum Ortszentrum und zum Strand.
Sonstige Angaben
*Sylter Maß
Die ausgeschriebene Gesamtfläche ist nicht auf eine genormte Berechnung laut WoFIV oder II. BV zurückzuführen. Es handelt sich vielmehr um eine Berechnung nach dem sogenannten "Sylter Maß". Dieses gibt alle im Haus enthaltenen Flächen wieder, gemessen an den Fußleisten (Erd-, Dach u. Untergeschoss). Für die gemachten Angaben wurde die Flächenberechnung des Eigentümers zugrunde gelegt.
Grundriss
Grundriss UG
>
>
Grundriss EG
>
>
Grundriss DG
>
>
Grundriss Spitzboden
>
>
Adresse
25996 Wenningstedt-Braderup (Sylt)
Interessante Orte
Preis- und Lageinformationen
Preistrend für Bestandsimmobilien in Wenningstedt-Braderup (Sylt)