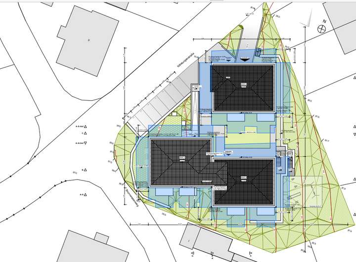
Die derzeit geplante Bebauung mit drei Mehrfamilienhäuser (insgesamt 15 Wohneinheiten) erstreckt sich über die Grundstücke mit der Fl.Nr. 992/5 + 992/6.
Für diesen Baugrund liegt eine Baugenehmigung vor. Die Fläche von ca. 2.229m² teilt sich auf zwei Baugrundstücke mit ca. 1.406m² und ca. 823m² auf.
Die Baugenehmigung wurde für eine zu realisierende Wohnfläche von insgesamt ca. 1.333m² - aufgeteilt auf insgesamt drei Mehrfamilienhäuser - erteilt. Zudem bietet die Tiefgarage mit 23 Stellplätzen, sowie die sieben Außenstellplätzen den Bewohnern ausreichend Parkmöglichkeiten.
Die Baugenehmigung wurde erteilt.
Folgende Unterlagen sind im Kaufpreis enthalten:
- Energieeinsparnachweis (ENEV-Berechnung KFW 55 Standard)
- Entwässerung, Regenwasser und Schmutzwasser (Plan)
- Brandschutzplan und Brandschutzprüfung
- Nachweis Standsicherheit
- Wohnflächenberechnung
- Geotechnischer Bericht
- Berechnung GRZ/GFZ
- Eingabeplan
Bauträger-Grundstück für drei MFH in attraktiver Lage!
94086 Bad Griesbach im Rottal
Die vollständige Adresse der Immobilie erhalten Sie vom Anbieter.
Auf Karte anzeigen
Die vollständige Adresse der Immobilie erhalten Sie vom Anbieter.
Finanzierungszertifikat
In nur zwei Minuten zu Ihrem persönlichen Finanzierungszertifkat.
Infos
| Vermarktungsart | Kaufen |
|---|---|
| Grundstücksfläche | 2.229 m2 |
Kosten
| Miete pro Jahr |
795.000 € |
|---|---|
| Provision | Nein |
Finanzierungsrechner:
Kaufpreis:
600.000 €
Eigenkapital:
600.000 €
Monatliche Rate
0 €
Effektiver Jahreszins
0 %
Sollzinsbindung
10 Jahre
Beschreibung des Objekts
Lage
Das Grundstück befindet sich in einer ruhigen, naturnahen und familienfreundlichen Wohnsiedlung im Süden von Bad Griesbach.
Nur wenige Meter vom Grundstück entfernt, können die Anwohner im nahegelegenen Wald und in der Natur weitläufige Fuß- und Wanderwege mit der Familie genießen.
Die ca. 8.900 Einwohner Stadt Bad Griesbach ist neben Bad Füssing und Bad Birnbach eines der drei Heilbäder im niederbayerischen Bäderdreieck.
In der Stadt finden die Anwohner alle Einkaufsmöglichkeiten des täglichen Bedarfs vor. Beispielsweise befinden sich direkt im Ort zwei Discounter, zwei Supermärkte, einen Drogeriemarkt, Apotheken und vieles mehr! Auch zahlreiche Sport- und Freizeitmöglichkeiten, wie beispielsweise ein Freibad, Fußballplätze, Tennisplätze, Golfplätze, sowie weitläufige Wander- und Radwege sind in direkter Umgebung vorhanden. Nicht zu vergessen ist natürlich die Therme in Bad Griesbach.
Auch zahlreiche weiterführende Schulen, Grundschulen und Kindergärten befinden sich direkt im Ort oder in den umliegenden Städten.
Die Auffahrt zur Autobahn liegt nur ca. 17 km und zur Bundesstraße ca. 5km entfernt.
Nach Bad Birnbach sind es 11 km, nach Bad Füssing 19 km, nach Passau 25 km und nach München 150 km.