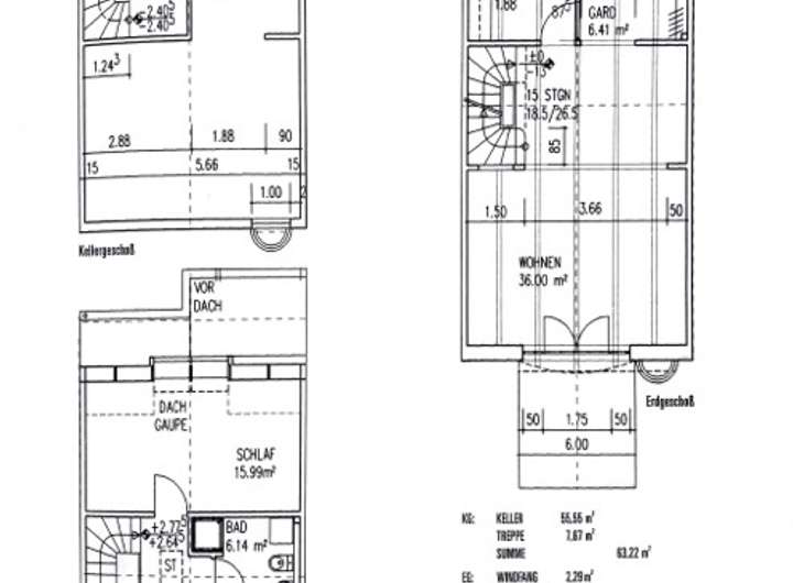
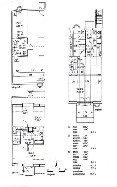
Dieses charmante Reihenhaus in ruhiger Lage in Zossen bietet auf ca. 107 qm Wohnfläche und ca. zusätzliche 86qm Nutzfläche in Keller und Dachboden ausreichend Platz für Ihre Wohnträume. Das 1995 erbaute Haus steht auf einem etwa 156 qm großen Grundstück und überzeugt durch seine durchdachte Raumaufteilung.
Das Reihenhaus erstreckt sich über zwei Geschosse und ist voll unterkellert, was zusätzlichen Stauraum bietet. Der Dachboden ist zudem ausbaufähig und kann nach Ihren Bedürfnissen gestaltet werden.
Mit seinen drei Zimmern ist das Haus ideal für kleine Familien oder Paare, die eine gut durchdachte Wohnlösung suchen. Die ruhige und dennoch zentrale Lage bietet eine gute Anbindung an alle wichtigen Einrichtungen und Verkehrsmittel.
Bezugsfreies Familienidyll - vollunterkellertes Reihenhaus mit kleinem Garten
15806 Zossen
Die vollständige Adresse der Immobilie erhalten Sie vom Anbieter.
Auf Karte anzeigen
Die vollständige Adresse der Immobilie erhalten Sie vom Anbieter.
Finanzierungszertifikat
In nur zwei Minuten zu Ihrem persönlichen Finanzierungszertifkat.
Infos
| Haustyp | Reihenmittelhaus |
|---|---|
| Wohnfläche ca. | 106 m2 |
| Nutzfläche | 85,69 m2 |
| Grundstücksfläche | 156 m2 |
| Zimmer | 3 |
| Schlafzimmer | 2 |
| Badezimmer | 1 |
Kosten
| Kaufpreis |
299.000 € |
|---|---|
| Provision |
3,57% inkl. gesetzl. MwSt. |
Finanzierungsrechner:
Kaufpreis:
600.000 €
Eigenkapital:
600.000 €
Monatliche Rate
0 €
Effektiver Jahreszins
0 %
Sollzinsbindung
10 Jahre
Bausubstanz & Energieausweis
| Baujahr | 1995 |
|---|---|
| Objektzustand | Gepflegt |
| Qualität der Austattung | Normal |
| Heizungsart | Zentralheizung |
| Wesentliche Energieträger | Gas |
| Energieausweis | liegt vor |
| Energieausweistyp | Verbrauchsausweis |
| Energieverbrauchskennwert | 75,7 kWh/(m²*a) |
| Energieeffizienzklasse | B |
75,7
kWh/(m²*a)
Energieeffizienzklasse B
- A+
- A
- B
- C
- D
- E
- F
- G
- H
- 0
- 25
- 50
- 75
- 100
- 125
- 150
- 175
- 200
- 225
- >250
Beschreibung des Objekts
Ausstattung
- voll unterkellertes Reihenhaus aus 1995
- nach Süd-Osten ausgerichteter Garten
- ca. 193qm Wohn-/ Nutzfläche
- 3 Zimmer zzgl. Kellerfläche
- ausbaubarer Dachboden
- 1 Bad mit Dusche und Wanne
- 1 separates WC
- Gaszentralheizung
- 2-fach isolierverglaste Holzfenster
- Bodenbelag: Laminat, Fliesen
- gepflegter Zustand, bezugsfreie Übergabe
Lage
Das Reihenhaus befindet sich in der malerischen Kleinstadt Zossen im Landkreis Teltow-Fläming, Brandenburg. Diese Lage bietet eine perfekte Kombination aus idyllischer Natur und gut entwickelter Infrastruktur.
Zossen ist bekannt für seine Naherholungsmöglichkeiten und die Nähe zu Seen und Wäldern. Der Motzener See und der Zossener See bieten Freizeitaktivitäten wie Schwimmen, Segeln und Angeln. Die grüne Umgebung lädt zu Spaziergängen und Radtouren ein.
In der Nähe des Reihenhauses gibt es zahlreiche Einkaufsmöglichkeiten, darunter Supermärkte, Bäckereien und Fachgeschäfte. Cafés und Restaurants sind ebenfalls bequem erreichbar. Verschiedene Dienstleister, Schulen, Kindergärten und medizinische Einrichtungen machen die Lage besonders attraktiv für Familien.
Die Verkehrsanbindung von Zossen ist hervorragend. Der Bahnhof bietet regelmäßige Verbindungen nach Berlin und anderen Städten. Die Hauptstadt ist in etwa 45 Minuten erreichbar. Zudem ist Zossen gut an das Straßennetz angebunden: Über die Bundesstraße B96 und die nahegelegene Autobahn A10 (Berliner Ring) sind umliegende Städte schnell zu erreichen.
Hier können Sie die Vorzüge des Landlebens genießen, ohne auf städtische Annehmlichkeiten verzichten zu müssen. Das Reihenhaus fügt sich harmonisch in die grüne Umgebung ein und bietet komfortablen Wohnraum inmitten der Natur. Mit einem gemütlichen kleinen Garten und gut aufgeteilten Wohnräumen ist es ein idealer Ort zum Entspannen und Wohlfühlen. Zossen bietet eine einzigartige Lebensqualität, Ruhe und Erholung in der Natur, kombiniert mit den Vorteilen einer gut angebundenen Kleinstadt.
Grundriss
Grundrisse 2Paderborner Str.17
>
>
Grundrisse Paderborner Str.17,
>
>
Adresse
15806 Zossen
Interessante Orte
Preis- und Lageinformationen
Preistrend für Bestandsimmobilien in Zossen