Willkommen in Boitzenhagen
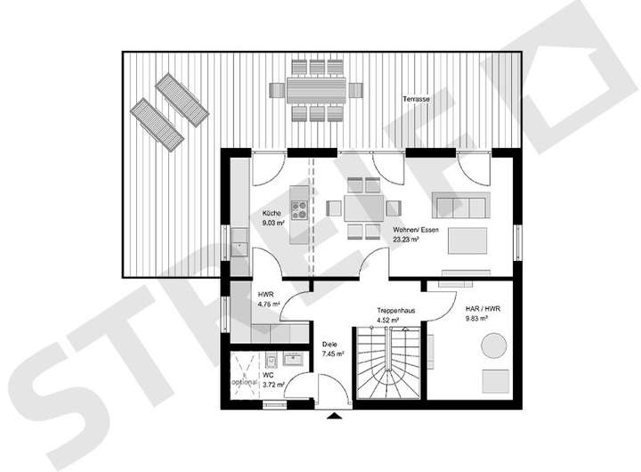
Wir freuen uns, Ihnen unser projektiertes Einfamilienhaus vorstellen zu dürfen, das nach Ihren individuellen Wünschen und Vorstellungen gefertigt wird. Mit einer Wohnfläche von 117,00 m² und 4 Zimmern bietet dieses Haus ausreichend Platz für Ihre gesamte Familie.
Änderungen erwünscht:
Wir planen 1:1 nach Ihren Vorstellungen
Garantiert:
5 Monate Bauzeit
20 Monate Festpreis-Garantie
30 Jahre Garantie auf die Konstruktion
Alles Inklusive:
-Fundament, Bodenplatte und Erdarbeiten
-Arbeitsgerüst
-Bauleitung
-Krankosten
-Baustellentoilette
-Entsorgung Bauabfälle
-Statik
-Wärmeschutznachweis mit Blower-Door Test
-freie Grundrissänderung ohne Mehrpreis
-Mehrfach ausgezeichnete Qualität
Lassen Sie sich von der Qualität und Zuverlässigkeit von STREIF überzeugen und verwirklichen Sie Ihren Traum vom eigenen Zuhause - gemeinsam mit uns!
95 Jahre STREIF Ihr Jubiläumshaus in Wittingen-Boitzenhagen
29378 Wittingen
Die vollständige Adresse der Immobilie erhalten Sie vom Anbieter.
Auf Karte anzeigen
Die vollständige Adresse der Immobilie erhalten Sie vom Anbieter.
Finanzierungszertifikat
In nur zwei Minuten zu Ihrem persönlichen Finanzierungszertifkat.
Infos
| Haustyp | Einfamilienhaus |
|---|---|
| Etagenzahl | 2 |
| Wohnfläche ca. | 120 m2 |
| Grundstücksfläche | 1 m2 |
| Zimmer | 4 |
| Schlafzimmer | 3 |
| Badezimmer | 1 |
Kosten
| Kaufpreis |
275.000 € |
|---|
Finanzierungsrechner:
Kaufpreis:
600.000 €
Eigenkapital:
600.000 €
Monatliche Rate
0 €
Effektiver Jahreszins
0 %
Sollzinsbindung
10 Jahre
Bausubstanz & Energieausweis
| Baujahr | 2024 |
|---|---|
| Bauphase | Haus in Planung (projektiert) |
| Objektzustand | Erstbezug |
| Qualität der Austattung | Gehoben |
Beschreibung des Objekts
Ausstattung
STREIF-Häuser sind Energiesparhäuser. Die Außenwände im Passiv-Haus-Standard.
STREIF Leistungen sind MEHR WERT - schon im Grundpreis enthalten!
- Inkl. Thermo- Fundamentplatte
- Inkl. Haustür von KERA und Fenster von Porta/Kömmerling
- Elektrische Rollläden
- Inkl. Baubetreuung u.v.m.
- Zentrale Lüftungsanlage mit Wärmerückgewinnung
- Wärmepumpe
- KfW 40
- Ausbaustufe Fast-Fertig-Plus, einschließlich kompletter Badausstattung.
Die hohe Wertigkeit und Langlebigkeit eines STREIF-Energiespar-Hauses wird durch zahlreiche Auszeichnungen, Qualitäts- und Gütesiegel unabhängiger Institute und Verbände dokumentiert.
Lage
Boitzenhagen liegt ganz im Süden der Stadt Wittingen. In der
Umgebung findet man die Städte Wittingen, Uelzen, Celle, Gifhorn und Wolfsburg.
Die Fahrt zur Volkswagen AG in Wolfsburg dauert etwa 20
Minuten.
Das Testgelände Ehra-Lessien der Volkswagen AG befindet sich
ungefähr drei Kilometer westlich von Boitzenhagen.
Ehra-Lessien bietet eine ausgezeichnete Infrastruktur mit einem
Kindergarten, einer Grundschule, Ärzten, Restaurants und
Einkaufsmöglichkeiten - und ist nur etwa 6 km entfernt.
Boitzenhagen zeichnet sich durch seine großen Grünflächen aus
und bietet viele Möglichkeiten zur Naherholung.
Sonstige Angaben
Der Preis bezieht sich auf das Jubiläumshaus Family L zzgl. Baunebenkosten.
Adresse
29378 Wittingen
Interessante Orte
Preis- und Lageinformationen
Preistrend für Bestandsimmobilien in Wittingen