Diese beeindruckende Jugendstilvilla, um 1900 erbaut, erstrahlt nach einer umfassenden Kernsanierung und Modernisierung im Jahr 2014 in neuem Glanz. Das Anwesen wurde dabei nicht nur modernisiert, sondern auch erweitert, um heutigen Wohnansprüchen gerecht zu werden. Mit zwei großzügigen Geschossen, einem geräumigen Keller und einem ausbaubaren Dachboden bietet diese Villa vielfältige Nutzungsmöglichkeiten und großes Potenzial zur individuellen Gestaltung.
Die Villa teilt sich in zwei separate Einheiten mit jeweils ca. 182 Quadratmetern Wohnfläche auf. Insgesamt stehen somit beeindruckende 364 Quadratmeter zur Verfügung, die sich unter anderem auf 8 Schlafzimmer und 4 Badezimmer verteilen. Diese großzügige Raumaufteilung ermöglicht komfortables Wohnen und bietet ausreichend Platz für große Familien oder vielseitige Nutzungskonzepte.
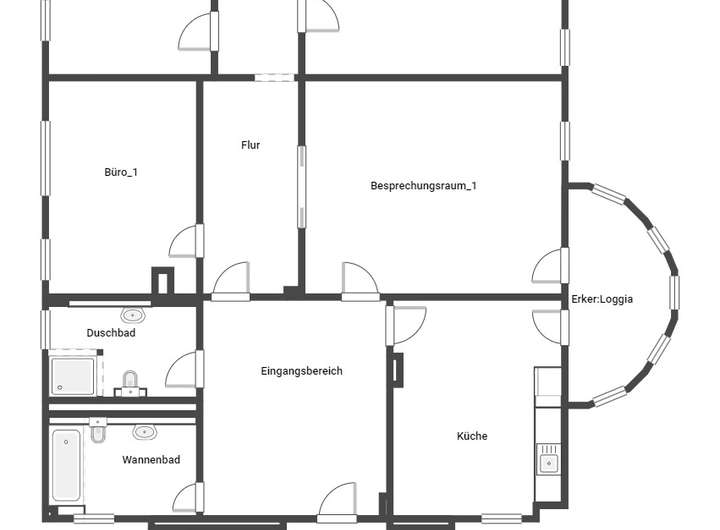
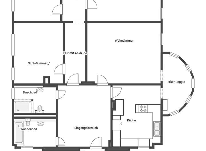
Ursprünglich als zwei Wohneinheiten konzipiert, wird die Einheit im Erdgeschoss derzeit als Büro-, Gewerbeeinheit genutzt, während die Einheit im Obergeschoss als Wohneinheit dient. Diese Aufteilung lässt sich jedoch jederzeit flexibel ändern, da die Gewerbeeinheit ohne großen Aufwand in eine weitere Wohneinheit umgewandelt werden kann. Diese Flexibilität macht die Villa besonders attraktiv für unterschiedliche Lebens- und Arbeitskonzepte. Alle Fenster, inklusive der Kellerfenster, sind mit Außenrollläden ausgestattet, die nicht nur Schutz vor verschiedensten Wetterbedingungen, wie zum Beispiel Sonneneinstrahlung, bieten, sondern auch für zusätzliche ....
... weitere Informationen auf Anfrage.
Exklusive Villa mit parkähnlichem Garten. Auch für zwei Familien !
16547 Birkenwerder
Die vollständige Adresse der Immobilie erhalten Sie vom Anbieter.
Auf Karte anzeigen
Die vollständige Adresse der Immobilie erhalten Sie vom Anbieter.
Finanzierungszertifikat
In nur zwei Minuten zu Ihrem persönlichen Finanzierungszertifkat.
Infos
| Haustyp | Villa |
|---|---|
| Etagenzahl | 2 |
| Wohnfläche ca. | 364 m2 |
| Grundstücksfläche | 1.300 m2 |
| Zimmer | 8 |
| Schlafzimmer | 8 |
| Badezimmer | 4 |
| Garage/Stellplatz | Carport |
| Anzahl Garage/Stellplatz | 2 |
Kosten
| Kaufpreis |
1.200.000 € |
|---|---|
| Provision |
Provision in Höhe von 3,57 % inkl. MwSt. |
Finanzierungsrechner:
Kaufpreis:
600.000 €
Eigenkapital:
600.000 €
Monatliche Rate
0 €
Effektiver Jahreszins
0 %
Sollzinsbindung
10 Jahre
Bausubstanz & Energieausweis
| Qualität der Austattung | Gehoben |
|---|---|
| Wesentliche Energieträger | Öl |
| Energieausweis | liegt zur Besichtigung vor |
Beschreibung des Objekts
Ausstattung
- ehemalige Jugendstilvilla um 1900 erbaut
- 2014 kernsaniert, modernisiert und erweitert
- 2 Geschosse sowie Keller und ausbaubarer Dachboden
- 2 Einheiten mit je ca. 182qm Wohnfläche
- alle Fenster (inkl. Souterrain) mit Außenrollläden, welche elektrisch betätigt werden können.
- ca. 1.300qm Grundstück
- Terrasse mit ca. 25qm und mit einem Pavillon überdacht
- Whirlpool (860 l) mit Pavillon überdacht
- die Pavillons sowie der Whirlpool sind im Kaufpreis inbegriffen
- Halbgarage für 2 PKW sowie an der Nordseite weitere Parkfläche für 2 PKW in Reihe, Bootstrailer, o. ä.
- 2023 vollsanierte Ölheizungsanlage
- 10.000l Ölvorratstank (außen)
Lage
Die Villa befindet sich in Birkenwerder, nördlich von Berlin im Landkreis Oberhavel. Diese Lage vereint ländliche Ruhe mit städtischen Annehmlichkeiten und bietet somit den idealen Rückzugsort.
Birkenwerder ist bekannt für seine idyllische Natur und die Nähe zu Seen und Wäldern, die vielfältige Freizeitmöglichkeiten bieten. Spaziergänge und Radtouren entlang der Havel oder durch die Grünflächen sind besonders beliebt. Der Mühlenbecker See und der Briesetalwald laden zur Erholung ein.
Die Infrastruktur ist gut entwickelt: Einkaufsmöglichkeiten, gemütliche Cafés, Restaurants, Banken und Apotheken befinden sich in unmittelbarer Nähe. Schulen, Kindergärten und medizinische Einrichtungen sind ebenfalls leicht erreichbar, was die Lage besonders familienfreundlich macht.
Die Verkehrsanbindung ist ausgezeichnet. Birkenwerder verfügt über einen Bahnhof mit regelmäßigen S-Bahn- und Regionalbahn-Verbindungen nach Berlin, das in etwa 30 Minuten erreichbar ist. Zudem ist die Stadt über die Autobahn A10 und die Bundesstraße B96 gut an das Straßennetz angebunden.
Diese Lage bietet eine perfekte Balance zwischen ruhigem, naturnahem Wohnen und der schnellen Erreichbarkeit urbaner Zentren. Die Villa selbst fügt sich harmonisch in die grüne Umgebung ein und bietet luxuriösen Wohnkomfort. Mit ihrem großzügigen Garten und eleganten Wohnräumen ist sie ideal zum Entspannen und Wohlfühlen.
Birkenwerder und seine naturnahe Umgebung bieten Ihnen eine einzigartige Lebensqualität und ein unvergleichliches Wohnerlebnis.
Grundriss
Keller
>
>
Erdgeschoss
>
>
Dachboden
>
>
Obergeschoss
>
>
Keller
>
>
Erdgeschoss
>
>
1. Etage
>
>
Dachboden
>
>
Adresse
16547 Birkenwerder
Interessante Orte
Preis- und Lageinformationen
Preistrend für Bestandsimmobilien in Birkenwerder