Die 10 Reihenhäuser werden in schöner Innerortslage von Oberderdingen umgeben von Gärten projektiert.
Die Wohnhäuser überzeugen mit durchdachten Grundrissen auf 3 Etagen und bieten durch den möglichen großzügigen Dachgeschossausbau weitere individuelle Raumgestaltung.
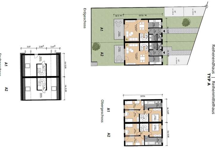
Der Haustyp A3 bietet eine Wohn-/Nutzfläche von ca. 130 m² und einer Grundstücksgröße von ca. 144 m².
Zudem befindet sich auf dem Grundstück bereits ein Stellplatz (Carport auf Anfrage). Selbstverständlich werden die Reihenhäuser nach den neusten Energiesparkriterien und in massiver Qualitätsbauweise auf realgeteilten Grundstücken errichtet.
Das Areal erhält eine neue Erschließungsstraße, welche ohne Durchgangsverkehr in einer Sackgasse mündet.
Verwirklichen Sie Ihren individuellen Traum vom Reihenhaus!
Den Innenausbau (Fliesen- und Bodenbelagsarbeiten, Innentüren sowie Sanitärgegenstände) können Sie (außer die Maler- und Tapezierarbeiten) direkt beim Fachbaumarkt Raiffeisen Baucenter Rauenberg in zweierlei Ausbaustufen beauftragen, welche die Ausführung gerne für Sie übernehmen. Selbstverständlich können Sie dies auch in Eigenleistung erbringen.
Die Erschließungsstraße ist bereits fertiggestellt.
Reihenmittelhaus A3 am Stadtrand von Oberderdingen
75038 Oberderdingen
Die vollständige Adresse der Immobilie erhalten Sie vom Anbieter.
Auf Karte anzeigen
Die vollständige Adresse der Immobilie erhalten Sie vom Anbieter.
Finanzierungszertifikat
In nur zwei Minuten zu Ihrem persönlichen Finanzierungszertifkat.
Infos
| Haustyp | Reiheneckhaus |
|---|---|
| Wohnfläche ca. | 130 m2 |
| Grundstücksfläche | 144 m2 |
| Zimmer | 4 |
| Schlafzimmer | 3 |
| Badezimmer | 1 |
| Garage/Stellplatz | Außenstellplatz |
| Anzahl Garage/Stellplatz | 1 |
Kosten
| Kaufpreis |
443.800 € |
|---|---|
| Provision | Nein |
Finanzierungsrechner:
Kaufpreis:
600.000 €
Eigenkapital:
600.000 €
Monatliche Rate
0 €
Effektiver Jahreszins
0 %
Sollzinsbindung
10 Jahre
Bausubstanz & Energieausweis
| Bauphase | Haus in Planung (projektiert) |
|---|---|
| Objektzustand | Erstbezug |
| Heizungsart | Wärmepumpe |
Beschreibung des Objekts
Lage
Das Wohnprojekt befindet sich in guter und ruhige Lage zu den fußläufig erreichbaren Einzelhandelsgeschäften / Discounter. Des Weiteren bietet Oberderdingen weitere Möglichkeiten zum Einkaufen, für den Alltag sowie Freizeitgestaltung.
Sonstige Angaben
Preisliste:
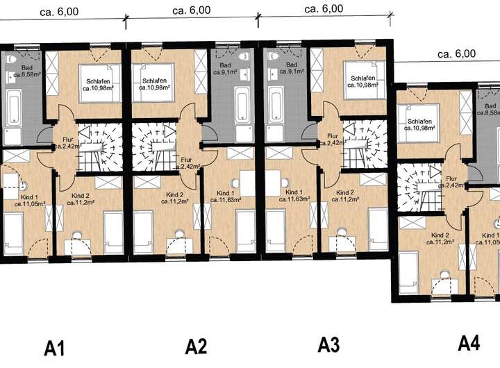
Reihenhäuser
Typ A1 Endhaus inkl. zwei Stellplätze (Carport auf Anfrage)
ca. 254 m² Grundstück / Wohn- Nutzfläche ca. 128 m² // 526.800,- €
Typ A2 Mittelhaus inkl. einem Stellplatz
ca. 156 m² Grundstück / Wohn- Nutzfläche ca. 130 m² // 449.800,- €
Typ A3 Mittelhaus inkl. einem Stellplatz
ca. 144 m² Grundstück / Wohn- Nutzfläche ca. 130 m² // 443.800,- €
Typ A4 Endhaus inkl. einem Stellplatz
ca. 163 m² Grundstück / Wohn- Nutzfläche ca. 128 m² // 476.800,- €
Typ B1 Endhaus inkl. zwei Stellplätze (Carport auf Anfrage)
ca. 160 m² Grundstück / Wohn- Nutzfläche ca. 141 m² // 479.800,- €
Typ B2 Mittelhaus
ca. 110 m² Grundstück / Wohn- Nutzfläche ca. 143 m² // 439.800,- €
Typ B3 Endhaus inkl. zwei Stellplätze (Carport auf Anfrage)
ca. 170 m² Grundstück / Wohn- Nutzfläche ca. 141 m² // 484.800,- €
Typ C1 Endhaus inkl. zwei Stellplätze (Carport auf Anfrage)
ca. 211 m² Grundstück / Wohn- Nutzfläche ca. 128 m² // 484.800,- €
Typ C2 Mittelhaus
ca. 110 m² Grundstück / Wohn- Nutzfläche ca. 130 m² // 423.800,- €
Typ C3 Endhaus inkl. zwei Stellplätze (Carport auf Anfrage)
ca. 163 m² Grundstück / Wohn- Nutzfläche ca. 128 m² // 464.800,- €
Stellplatz 14.800,- €
Carport 23.800,- € (geschlossener Carport auf Anfrage möglich)
Adresse
75038 Oberderdingen
Interessante Orte
Preis- und Lageinformationen
Preistrend für Bestandsimmobilien in Oberderdingen