Diese teilmodernisierte Doppelhaushälfte mit mit Nebengebäude und Garage befindet sich an einer verkehrsberuhigten Sackgasse im Ortszentrum von Augustfehn.
Gliederung der Räumlichkeiten:
Kellergeschoss:
Unterhalb der Küche befindet sich ein Kellerraum.
Erdgeschoss:
Wohnzimmer, Eingangsflur, Küche, Badezimmer und Hauswirtschaftsraum mit Nebeneingang
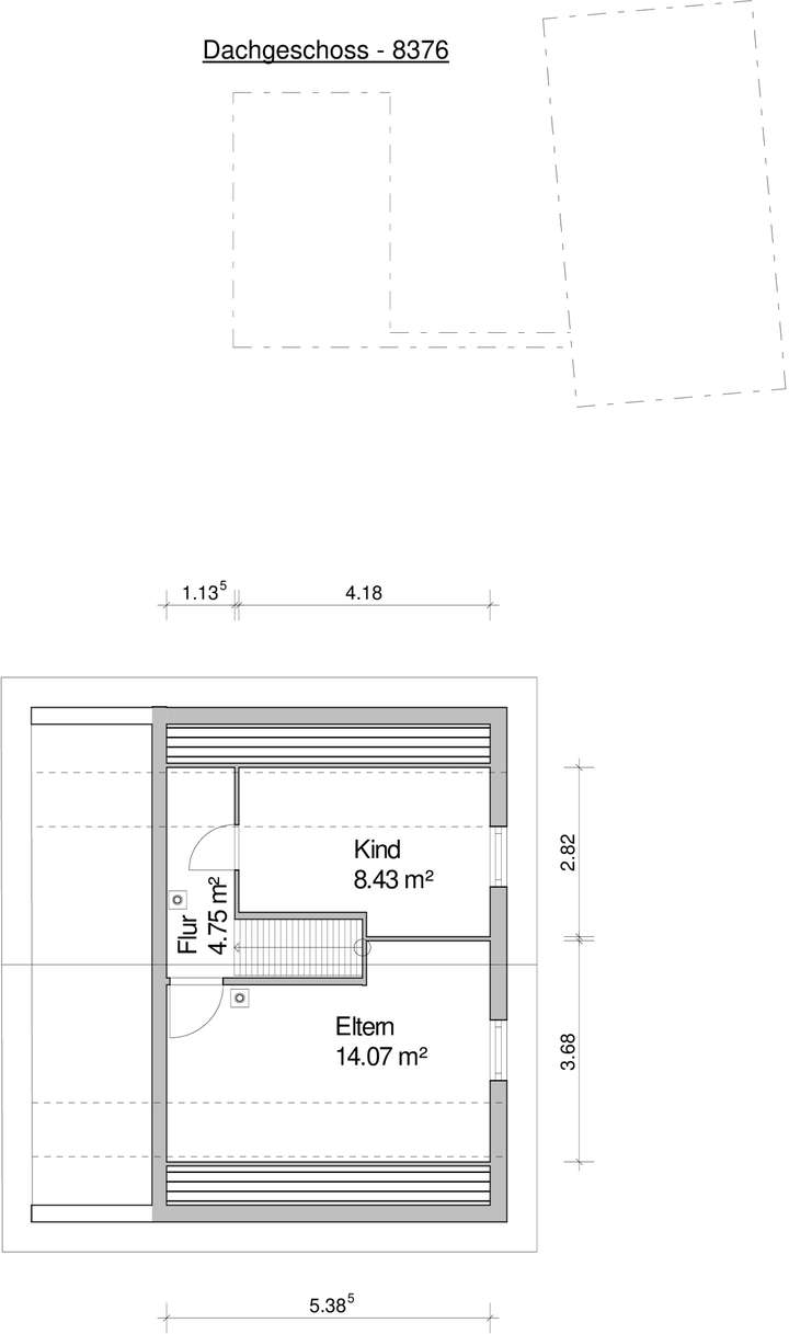
Dachgeschoss:
Im ausgebauten Dachgeschoss befinden sich zwei Schlafzimmer und Flur.
Spitzboden:
Der Spitzboden ist über eine Einschubtreppe zugänglich und dient als Abstellfläche.
Die Wohnfläche beträgt ca. 68 m²; die Nutzfläche ca. 24 m².
Die Doppelhaushälfte und das Nebengebäude (ursprünglich Waschküche und Hühnerstall) wurden im Jahre 1961 in solider Klinkerbauweise errichtet.
Das Haus verfügt über Kellergeschoss, Erdgeschoss und ein ausgebautes Dachgeschoss. Das Nebengebäude wird zu Hobbyzwecken genutzt. Weiter befindet sich eine Garage auf dem Grundstück.
Das Verkaufsobjekt verfügt über eine sehr gute Bausubstanz und befindet sich in einem gepflegten Gesamtzustand. Die Ausstattung ist in Teilen jedoch noch baujahrstypisch.
Im Jahre 2006 wurde Teilmodernisierungen vorgenommen, u.a.
- Einbau neuer Kunststofffenster mit Isolierverglasung und Außenrolläden,
- Einbau einer neuen Haustür und Nebeneingangstür,
- Modernisierung des Badezimmers,
- Verlegung neuer Fußbodenfliesen im Badezimmer, Hauswirtschaftsraum, Eingangsdiele und der Küche,
- Teilmodernisierung der ELT-Installation
Im Jahre 2016 wurde neue Brennwert-Therme eingebaut.
Das gesamte Haus ist seit dem 15.05.2015 auf unbestimmte Zeit vermietet
Im Falle des Eigenbedarfs beträgt die gesetzliche Kündigungsfrist beträgt neun Monate.
+++ Teilmodernisierte Doppelhaushälfte - gut vermietet - im Ortskern von Augustfehn! +++
26689 Apen
Die vollständige Adresse der Immobilie erhalten Sie vom Anbieter.
Auf Karte anzeigen
Die vollständige Adresse der Immobilie erhalten Sie vom Anbieter.
Finanzierungszertifikat
In nur zwei Minuten zu Ihrem persönlichen Finanzierungszertifkat.
Infos
| Haustyp | Doppelhaushaelfte |
|---|---|
| Wohnfläche ca. | 68 m2 |
| Nutzfläche | 24 m2 |
| Grundstücksfläche | 445 m2 |
| Bezugsfrei ab | nach Vereinbarung |
| Zimmer | 3 |
| Schlafzimmer | 2 |
| Badezimmer | 1 |
| Garage/Stellplatz | Garage |
| Anzahl Garage/Stellplatz | 1 |
Kosten
| Kaufpreis |
135.000 € |
|---|---|
| Provision |
Die Käuferprovision beträgt 3,57 % inkl. 19 % MwSt. vom beurkundeten Kaufpreis. |
Finanzierungsrechner:
Kaufpreis:
600.000 €
Eigenkapital:
600.000 €
Monatliche Rate
0 €
Effektiver Jahreszins
0 %
Sollzinsbindung
10 Jahre
Bausubstanz & Energieausweis
| Baujahr | 1961 |
|---|---|
| Letzte Sanierung | 2016 |
| Qualität der Austattung | Normal |
| Wesentliche Energieträger | Erdgas leicht |
| Energieausweis | liegt vor |
| Energieausweistyp | Bedarfsausweis |
| Energieverbrauchskennwert | 230,3 kWh/(m²*a) |
| Energieeffizienzklasse | G |
230,3
kWh/(m²*a)
Energieeffizienzklasse G
- A+
- A
- B
- C
- D
- E
- F
- G
- H
- 0
- 25
- 50
- 75
- 100
- 125
- 150
- 175
- 200
- 225
- >250
Beschreibung des Objekts
Lage
Sämtliche Versorgungseinrichtungen sind wie auch die medizinische Grundversorgung (Allgemeinmediziner, Zahnärzte, Apotheke), Kindergarten, Grundschule, Haupt- und Realschule am Ort und befinden sich in einem Umkreis von nur ca. 600 und sind bequem zu Fuß zu erreichen.
Auch der Bahnhof ist fußläufig zu erreichen.
Die Kreisstadt Westerstede ist ca. 12 km entfernt. Hier befinden sich u.a. die Ammerland-Klinik, Fachärzte, sämtliche Kreisbehörden und das Gymnasium als weiterführende Schule.
Augustfehn verfügt über sehr gute Verkehrsanbindungen. Die BAB 28 (Anschlussstelle Nr. 4) ist nur ca. 5 km entfernt. Weiter verfügt Augustfehn über einen Bahnhof an der Bahnstrecke Oldenburg - Leer. Von hier fahren Züge im stündlichen Wechsel in beide Richtungen.
Der bekannte Kurort Bad Zwischenahn ist in ca. 15 Auto- bzw. Bahnminuten zu erreichen, die Oberzentren Oldenburg und Bremen in ca. ½ bzw. 1 Auto- bzw. Bahnstunde.
Grundriss
Erdgeschoss
>
>
Dachgeschoss
>
>
Kellergescchoss
>
>
Adresse
26689 Apen
Interessante Orte
Preis- und Lageinformationen
Preistrend für Bestandsimmobilien in Apen