In traumhaft schöner Lage, in einer ruhigen Anliegerstraße befindet sich dieses 1920 erbaute und vollständig sanierte, großzügige Zweifamilienhaus.
Das Haus verfügt über insgesamt ca. 170m² Wohnfläche mit Balkon und und einen damit verbundenen wunderschönen Blick in den Garten.
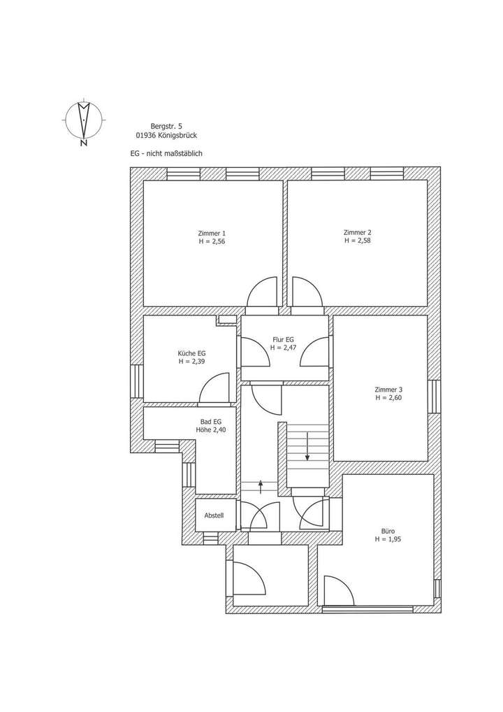
Der Eingangsbereich befindet sich auf der Erdgeschossebene mit Zugang zur Wohnung im Ober- und Dachgeschoss und zur Einliegerwohnung im Erdgeschoss.
Die Wohnung im Erdgeschoss besitzt 3 Zimmer und ist aktuell vermietet.
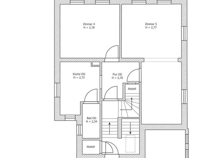
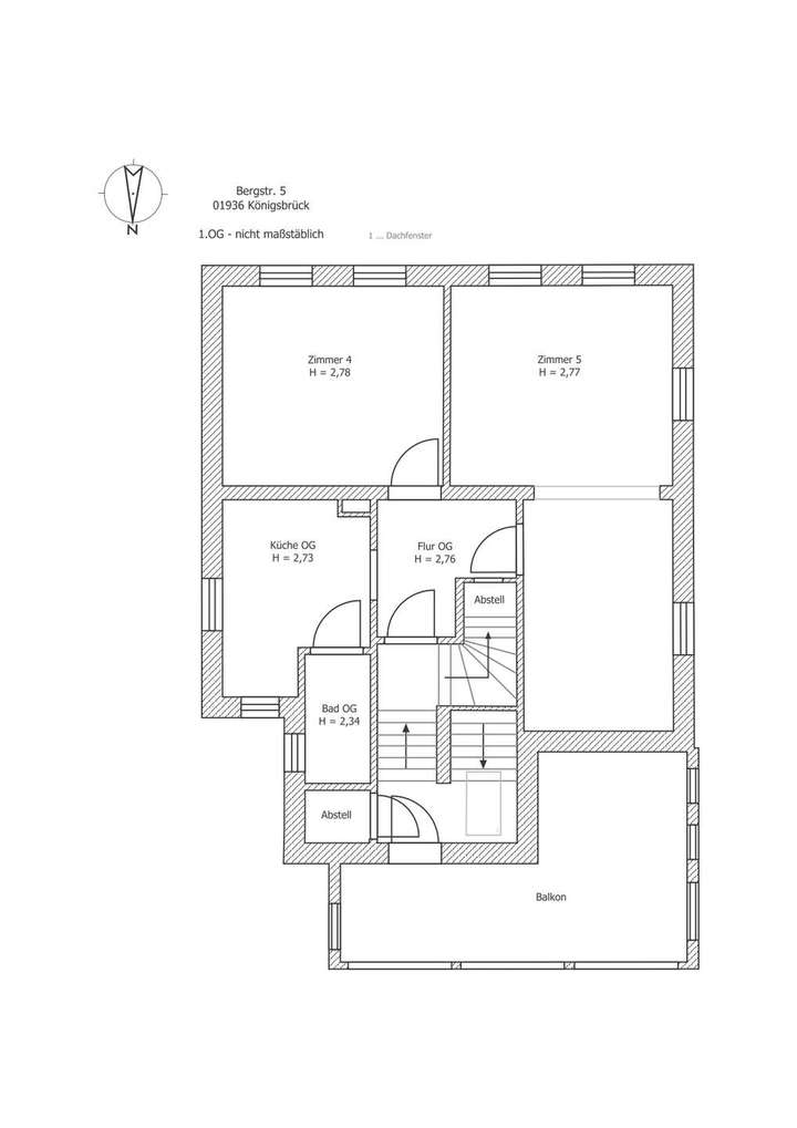
Über das Treppenhaus erfolgt der Zugang zur 5-Zimmer-Wohnung im Obergeschoss. Diese erstreckt sich außerdem über das Dachgeschoss und ist 2015 umfassend renoviert wurden.
Die Aufteilung dieser Wohnung ist praktisch und großzügig gestaltet. Beginnend im Obergeschoss finden Sie das Wohnzimmer, das Schlafzimmer, die Küche inkl. Einbauten und das Bad mit Fenster und Dusche. Auf der Zwischenetage gelangen Sie zum großzügigen Balkon inkl. Verglasung und Freifläche.
Hervorzuheben ist der charmante Stil, welcher sich durch die gesamte Wohnung zieht und somit für Wohlfühlatmosphäre sorgt.
Das Dachgeschoss verfügt über drei Kinderzimmer sowie ein Bad mit Fenster und Wanne. Außerdem befindet sich auf dieser Ebene ein kleiner Abstellraum für die Waschmaschine und einen Trockner.
Zum Gesamtanwesen gehört ein ca. 750 m² großes Grundstück mit liebevoll angelegtem Garten, ein großzügiges Nebengelass, eine Doppelgarage sowie mögliche Freiplätze.
Warten Sie nicht länger und vereinbaren Sie noch heute einen Besichtigungstermin!
Freistehendes Einfamilienhaus mit Einliegerwohnung!
01936 Königsbrück
Die vollständige Adresse der Immobilie erhalten Sie vom Anbieter.
Auf Karte anzeigen
Die vollständige Adresse der Immobilie erhalten Sie vom Anbieter.
Finanzierungszertifikat
In nur zwei Minuten zu Ihrem persönlichen Finanzierungszertifkat.
Infos
| Haustyp | Einfamilienhaus |
|---|---|
| Wohnfläche ca. | 156 m2 |
| Nutzfläche | 156 m2 |
| Grundstücksfläche | 750 m2 |
| Bezugsfrei ab | Dezember 2022 |
| Zimmer | 8 |
| Schlafzimmer | 5 |
| Badezimmer | 3 |
| Anzahl Garage/Stellplatz | 2 |
Kosten
| Kaufpreis |
315.000 € |
|---|---|
| Preis für Garage/Stellplatz | 0 € |
| Provision |
2,38% inkl. 19% MwSt. vom notariellen Kaufpreis |
Finanzierungsrechner:
Kaufpreis:
600.000 €
Eigenkapital:
600.000 €
Monatliche Rate
0 €
Effektiver Jahreszins
0 %
Sollzinsbindung
10 Jahre
Bausubstanz & Energieausweis
| Baujahr | 1933 |
|---|---|
| Letzte Sanierung | 2015 |
| Objektzustand | Modernisiert |
| Heizungsart | Zentralheizung |
| Wesentliche Energieträger | Öl |
| Energieausweis | liegt vor |
| Energieausweistyp | Bedarfsausweis |
| Energieverbrauchskennwert | 111,6 kWh/(m²*a) |
| Energieeffizienzklasse | D |
111,6
kWh/(m²*a)
Energieeffizienzklasse D
- A+
- A
- B
- C
- D
- E
- F
- G
- H
- 0
- 25
- 50
- 75
- 100
- 125
- 150
- 175
- 200
- 225
- >250
Beschreibung des Objekts
Ausstattung
- Einliegerwohnung
- Gewerberfläche im Anbau
- Balkon
- Einbauküche
- Abstellräume inkl. Waschmaschinenanschluss
- Doppelgarage und Stellplätze im Freien
- Nebengelass mit 3 Schuppen
- elektr. Hoftor
- Tageslichtbäder mit Badewanne und Dusche inkl. WMA-Anschluss
- Einbauküche
- Rolladen
- Laminat-, Teppich- und Fliesenboden
Lage
Königsbrück (obersorbisch Kinspork) ist eine Landstadt am westlichen Rand der Oberlausitz in Sachsen (Deutschland), knapp 25 km nördlich der Landeshauptstadt Dresden. Sie trägt sowohl den Beinamen „Tor zur Westlausitz“ als auch in neuer Zeit „Kamelienstadt an der Via Regia“ und ist Sitz der Verwaltungsgemeinschaft Königsbrück.
Durch Königsbrück fließt die Pulsnitz. Die umliegende Landschaft ist überwiegend bewaldetes Heideland, im Norden die Königsbrücker Heide und im Süden die Laußnitzer Heide, das zum Landschaftsschutzgebiet Westlausitz gehört. 6 km südöstlich erhebt sich der markante Keulenberg.
Der Bahnhof Königsbrück liegt an der Bahnstrecke Dresden-Klotzsche–Straßgräbchen-Bernsdorf und ist seit 2001 der nördliche Endpunkt des noch in Betrieb befindlichen Abschnitts. Stündlich verkehren die Regionalbahnen der Mitteldeutschen Regiobahn über Ottendorf-Okrilla bis zum Bahnhof Dresden-Neustadt. wofür diese circa 45 Minuten benötigen. Ein Triebwagen trägt den Namen „Stadt Königsbrück“. Mit dem Bus kann man nach Hoyerswerda, Kamenz, Pulsnitz und Röhrsdorf fahren.
Durch Königsbrück führen die Bundesstraße 97 nach Dresden bzw. nach Schenkendöbern und die B 98 Richtung Zeithain.
Die Bundesautobahn 4 kann man in circa 15 km Entfernung in Hermsdorf und die Bundesautobahn 13 in circa 13 km Entfernung in Thiendorf erreichen.
Geschäfte des täglichen Bedarfs sowie Schulen und Ärzte befinden sich in unmittelbarer Nähe.
Sonstige Angaben
Eine Besichtigung ist nach vorheriger Absprache möglich.
Wir bieten nicht nur eine kostenlose Hotline, sondern auch einen Service am Wochenende. Bei Interesse geben Sie bitte immer Ihre vollständigen Kontaktdaten an.
Die Objektbeschreibung beruht ganz oder zum Teil auf Angaben des Eigentümers. Für die Richtigkeit oder Vollständigkeit übernehmen wir keine Gewähr.
Sie haben auf Anhieb nichts gefunden oder suchen Sie etwas ganz bestimmtes?
Teilen Sie uns einfach mit, was Sie suchen oder wonach wir für Sie die Augen offen halten dürfen. Profitieren Sie von den Vorteilen einer professionellen Maklersuche. Der Suchauftrag ist unverbindlich.
Auf unser Homepage www.falcimmo.de unter der Rubrik Immobiliensuche halten wir für Sie zum einen den Onlinesuchauftrag bereit, haben aber auch viele andere
nützliche Informationen für Kaufinteressenten und Eigentümer.
Weitere Dokumente
Ihre FinanzierungslösungGrundriss
Grundriss EG
>
>
Grundriss OG
>
>
Grundriss DG
>
>
Adresse
01936 Königsbrück
Interessante Orte
Preis- und Lageinformationen
Preistrend für Bestandsimmobilien in Königsbrück