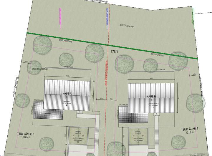
Dieses Grundstück bietet einen herrlichen, unverbaubaren Blick über die Mainauen und in Richtung Kulmbach. Mit einer idealen Größe von 1.318 m² ist es perfekt für den Bau eines Einfamilienhauses mit Garagen geeignet. Die Gesamtfläche des Grundstücks (2.646 m²) wird aufgeteilt in 2 Grundstücke mit 1.318m² und 1.328 m². Es wird eine Grundstückshälfte angeboten. Man kann zwischen der rechten oder linken Hälfte auch wählen.
Das Grundstück befindet sich in ruhiger Lage und ist von Einfamilienhäusern in der Nachbarschaft umgeben. Im Norden grenzt ein bewaldetes Grundstück an, das für zusätzlichen Schutz und Privatsphäre sorgt. Der weite Blick in die Umgebung macht das Grundstück besonders attraktiv.
Zudem sind Grundschule und Kindergarten fußläufig erreichbar, was es zu einer idealen Wahl für Familien macht.
Perfekter Blick über die Mainauen - Einfamilienhausgrundstück für Bebauung
95326 Kulmbach
Die vollständige Adresse der Immobilie erhalten Sie vom Anbieter.
Auf Karte anzeigen
Die vollständige Adresse der Immobilie erhalten Sie vom Anbieter.
Finanzierungszertifikat
In nur zwei Minuten zu Ihrem persönlichen Finanzierungszertifkat.
Infos
| Vermarktungsart | Kaufen |
|---|---|
| Grundstücksfläche | 1.318 m2 |
| Erschließung | Teilerschlossen |
| Empfohlene Nutzung | Einfamilienhaus |
| Grundflächenzahl (GRZ) | 0.35 |
| Geschossflächenzahl (GFZ) | 0.6 |
| Bebaubar nach | Bebauungsplan |
| Verfügbar ab | ab sofort |
Kosten
| Miete pro Jahr |
250.000 € |
|---|---|
| Provision |
3,57% |
Finanzierungsrechner:
Kaufpreis:
600.000 €
Eigenkapital:
600.000 €
Monatliche Rate
0 €
Effektiver Jahreszins
0 %
Sollzinsbindung
10 Jahre
Beschreibung des Objekts
Grundriss
mögliche Grundstücksplanung
>
>