Hier kommt ein Dreifamilienhaus in Ludwigsburg in den Verkauf. Das Wohnhaus hat aktuell 3 separat abgeschlossene und vermietete Wohnungen (EG, OG und DG) mit insgesamt 184 m² Wohnfläche. Der großzügige Garten im Hinterhof und die praktische Gartenhütte können vielseitig genutzt werden. Das Gebäude wurde bereits umfassend energetisch saniert, dazu zählen neue Fenster und Dämmung von Fassade, Keller und Dachboden.
Das derzeit nicht ausgebaute Dachgeschoss bietet viel Potenzial und eine große Grundfläche für eine weitere Wohnung. Hier könnte neuer Wohnraum geschaffen werden. Damit hätten Sie 4 (vermietbare) Wohnungen im Haus. Die Wohnungen sind aktuell nicht aufgeteilt.
Die Wohnungen sind zurzeit vermietet und teilen sich wie folgt auf:
EG 3-Zimmer-Wohnung ca. 65m² mit Terrasse
OG 3-Zimmer-Wohnung ca. 63m² mit Balkon
DG 3-Zimmer-Wohnung ca. 62m²
Ausbau Dachboden mit möglicher Erweiterung zu einer 2-Zimmer-Wohnung
Die großzügige Hoffläche mit Garten und einer praktischen Gartenhütte für Fahrräder. Der Garten mit Zwetschgenbaum kann gemeinschaftlich genutzt werden und spendet im Sommer kühlen Schatten.
Die Kaltmieteinnahmen belaufen sich auf 25.032 Euro pro Jahr.
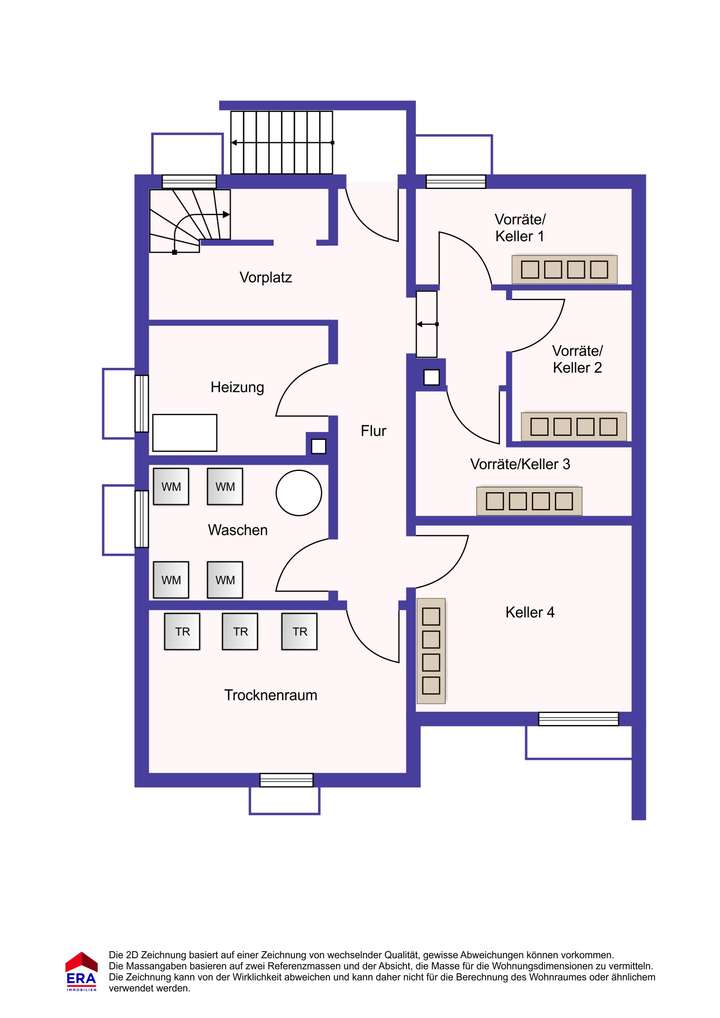
Im Keller gibt es aktuell 5 getrennte Kellerräume, sowie eine Waschküche mit Waschmaschinen und einen Trockenraum. Das Haus wird über eine Gaszentralheizung beheizt.
Im und am Haus wurden in den letzten Jahren diverse Modernisierungen durchgeführt:
2021 Brennerplatte der Heizung erneuert
2007 Erneuerung Sanitär Bad+WC DG
2005 Dämmung Dachboden mit 15cm Styropor
2005 Dämmung der Fassade
2005 Erneuerung der Heizung durch eine effiziente Gas-Brennwert-Heizung
2005 Erneuerung Bad+WC, Heizkörper, Steigleitungen im EG+OG
2005 Einbau Sprechanlage und Türöffner, div. Außensteckdosen
2005 Hofeingang neu gepflastert
2005 Kellerdecke mit 8cm Styropor gedämmt
2004 neue Fenster im ganzen Haus
2004 Erneuerung Elektrik EG+OG
*Reserv.* MFH mit 3 Whg plus Ausbaupotential, mit Garten, zentrale Wohnlage!
71638 Ludwigsburg
Die vollständige Adresse der Immobilie erhalten Sie vom Anbieter.
Auf Karte anzeigen
Die vollständige Adresse der Immobilie erhalten Sie vom Anbieter.
Finanzierungszertifikat
In nur zwei Minuten zu Ihrem persönlichen Finanzierungszertifkat.
Infos
| Haustyp | Mehrfamilienhaus |
|---|---|
| Etagenzahl | 3 |
| Wohnfläche ca. | 184 m2 |
| Grundstücksfläche | 285 m2 |
| Bezugsfrei ab | nach Vereinbarung |
| Zimmer | 9 |
| Schlafzimmer | 3 |
| Badezimmer | 3 |
Kosten
| Kaufpreis |
719.000 € |
|---|---|
| Provision |
3,57 |
| Mieteinnahmen | 2.086 € |
Finanzierungsrechner:
Kaufpreis:
600.000 €
Eigenkapital:
600.000 €
Monatliche Rate
0 €
Effektiver Jahreszins
0 %
Sollzinsbindung
10 Jahre
Bausubstanz & Energieausweis
| Baujahr | 1955 |
|---|---|
| Letzte Sanierung | 2007 |
| Objektzustand | Modernisiert |
| Qualität der Austattung | Normal |
| Heizungsart | Zentralheizung |
| Wesentliche Energieträger | Gas |
| Energieausweis | liegt vor |
| Energieausweistyp | Bedarfsausweis |
| Energieverbrauchskennwert | 136,3 kWh/(m²*a) |
| Energieeffizienzklasse | E |
136,3
kWh/(m²*a)
Energieeffizienzklasse E
- A+
- A
- B
- C
- D
- E
- F
- G
- H
- 0
- 25
- 50
- 75
- 100
- 125
- 150
- 175
- 200
- 225
- >250
Beschreibung des Objekts
Ausstattung
3-Familienhaus:
- Teils modernisierte Wohnungen im Bereich Sanitär, Elektrik und Fenster
- EG 3-Zimmer-Wohnung ca. 65m² mit Terrasse und Garten
- OG 3-Zimmer-Wohnung ca. 63m² mit Balkon
- DG 3-Zimmer-Wohnung ca. 62m²
- Dachboden mit möglicher Erweiterung zu einer 2-Zimmer-Wohnung
- großzügige Hoffläche
- schöner Garten im Hinterhof
- Gartenhütte für Fahrräder
- 5 Abstellräume im Keller
- 1 Waschmaschinen- und Trockenraum
Folgende Modernisierungen wurden durchgeführt:
2021 Brennerplatte der Heizung erneuert
2007 Erneuerung Sanitär Bad+WC DG
2005 Dämmung Dachboden mit 15cm Styropor
2005 Dämmung der Fassade
2005 Erneuerung der Heizung durch eine effiziente Gas-Brennwert-Heizung
2005 Erneuerung Bad+WC, Heizkörper, Steigleitungen im EG+OG
2005 Einbau Sprechanlage und Türöffner, div. Außensteckdosen
2005 Hofeingang neu gepflastert
2005 Kellerdecke mit 8cm Styropor gedämmt
2004 neue Fenster im ganzen Haus
2004 Erneuerung Elektrik EG+OG
Lage
Dieses tolle Haus befindet sich in einem ruhigen und gefragten Wohngebiet von Ludwigsburg. In wenigen hundert Meter erreichen Sie bequem die Innenstadt von Ludwigsburg. Alle Einkaufsmöglichkeiten für den täglichen Bedarf sind in wenigen Minuten erreichbar, u.a. LIDL Kaufland, denns und die Innenstadt.
Auch für die gesundheitliche Versorgung sind Ärzte und Apotheken in unmittelbarer Umgebung, dazu gehört die Stern-Apotheke, aber auch diverse Ärzte.
In Ludwigsburg finden Sie alle allgemeinbildenden Schulen, sowie Kindergärten, Freizeiteinrichtungen, Parkanlagen, Spielplätze, etc. diese sind alle fußläufig zu erreichen. Nur ca. hundert Meter ist der Kindergarten Arche Noah entfernt. Viele Schulen sind auch fußläufig gelegen, wie die Grundschule Oststadtschule oder die Justinus-Kerner-Gemeinschaftsschule.
Die nächste Bushaltestelle ist schnell zu Fuß erreichbar! Die Linien 421, 421A, 433. Nach Stuttgart gelangen Sie in nur 15 Minuten mit der S-Bahn oder dem Zug. Mit der S4, S5 erreicht man den Stuttgarter Hauptbahnhof sowie alle weiteren Zweigverbindungen. Ludwigsburg ist ein beliebter Wohnort in der Region, welche für seine historische Altstadt mit dem großen Marktplatz und dem „Blühenden Barock“ mit seiner schönen Parkanlage und dem Schloss bekannt ist.
Sonstige Angaben
Vereinbaren Sie noch heute Ihren persönlichen Beratungs- und Besichtigungstermin mit unserem Büro, oder fordern Sie weitere Unterlagen an.
Es handelt sich um ein unverbindliches Angebot. Bitte wenden Sie sich an unser Büro.
Alle genannten Angaben zum Objekt beruhen auf den Angaben des/der Eigentümer/s, für deren Richtigkeit wir keine Gewähr übernehmen. Dies gilt ebenso für Vollständigkeit und Aktualität der gemachten Angaben. Dem Käufer ist bekannt, dass der Makler auch für den Verkäufer provisionspflichtig tätig sein darf.
Weitere Angebote finden Sie unter: www.kuni-immobilien.de
Grundriss
Keller
>
>
EG Grundriss
>
>
OG Grundriss
>
>
DG Grundriss
>
>
Adresse
71638 Ludwigsburg
Interessante Orte
Preis- und Lageinformationen
Preistrend für Bestandsimmobilien in Ludwigsburg