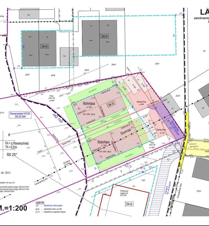
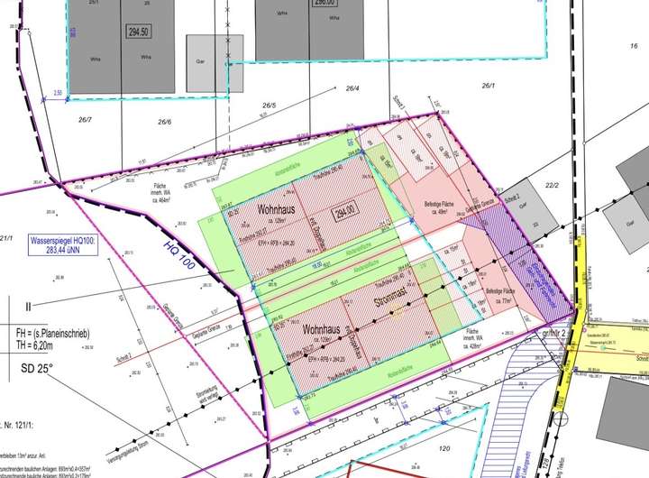
Zum Verkauf stehen zwei Baugrundstücke mit je einer Größe von 427m2 und 561m2 zzgl. ca. 50m2 gemeinschaftlicher Zufahrt.
Die Grundstücke befinden sich im Wohngebiet „Blinder Morgen“ in 71522 Backnang Waldrems und sind über die Kocherstraße anzufahren.
Beide Grundstücke sind teilerschlossen.
Die zulässigen Baueigenschaften können dem Bauplan entnommen werden. (Bauplan wird bei Interesse als Grafik und schriftlicher Form bereitgestellt)
2 Vollgeschosse
Traufhöhe 6,20 Meter
Satteldach 25 Grad
Jeweils eine Bauvoranfrage zum Errichten eines EFH mit je drei Garagen ist in Bearbeitung und sollte in den kommenden Wochen genehmigt sein. Die Errichtung eines Doppelhauses/ZFH solle durchaus auch möglich sein, müsste aber geprüft werden.
Grundstück 1: 427m2 - 286.090€
Grundstück 2: 561m2 - 375.870€
zzgl. gemeinschaftlicher Zufahrt 50m2 - 33.500€ (je 16.750€)
(670€/m2)
2 Bauplätze in Backnang/ Waldrems
71522 Backnang
Die vollständige Adresse der Immobilie erhalten Sie vom Anbieter.
Auf Karte anzeigen
Die vollständige Adresse der Immobilie erhalten Sie vom Anbieter.
Finanzierungszertifikat
In nur zwei Minuten zu Ihrem persönlichen Finanzierungszertifkat.
Infos
| Vermarktungsart | Kaufen |
|---|---|
| Grundstücksfläche | 427 m2 |
| Erschließung | Teilerschlossen |
| Bebaubar nach | Bebauungsplan |
| Verfügbar ab | 15.1.2026 |
Kosten
| Miete pro Jahr |
286.090 € |
|---|---|
| Provision | Nein |
Finanzierungsrechner:
Kaufpreis:
600.000 €
Eigenkapital:
600.000 €
Monatliche Rate
0 €
Effektiver Jahreszins
0 %
Sollzinsbindung
10 Jahre
Beschreibung des Objekts
Lage
Grundstück am Ortsrand. Fischbachweg/Kocherstraße
Grundriss
Hausansicht
>
>
a86cb89716254fe18f9c43f399657a
>
>
IMG_3288
>
>
IMG_3346
>
>