DIES IST EIN VORAB EXPOSÉ OHNE JEGLICHE PRÜFUNG UND RECHTLICHER SICHERHEIT!!!!
Sie finden hier ein repräsentatives Anwesen am Rande von Wiehl im Oberbergischen Kreis. Diese architektonische Villa im Stile des Bauhaus vereint einen luxuriösen Lebensstil mit hohem Komfort.
**Beschreibung des Anwesens:**
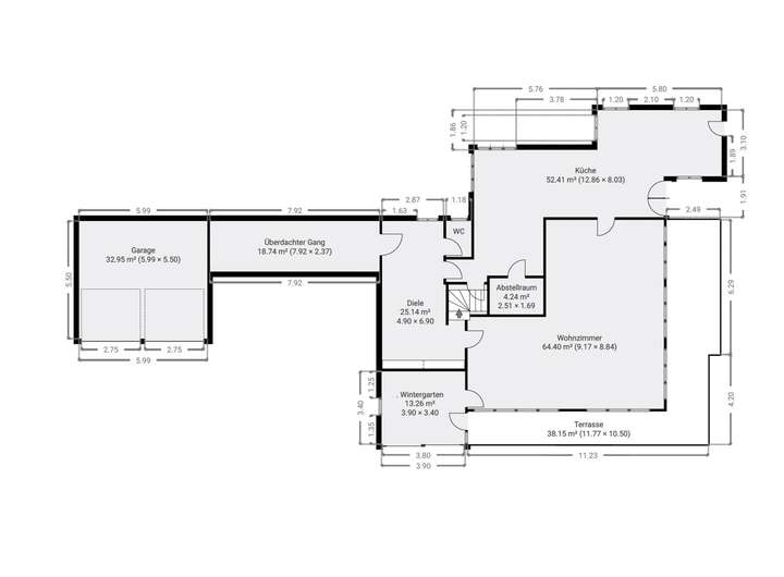
- **Großzügige Räume:** Die Villa besticht durch ihre großen, lichtdurchfluteten Räume, die eine helle und freundliche Atmosphäre schaffen.
- **Kaminzimmer:** Ein herrschaftlicher Kamin im Kaminzimmer sorgt für gemütliche Abende.
- **Wintergarten und Terrasse:** Ein Wintergarten sowie eine sehr große Terrasse laden zum Entspannen ein.
- **Poolhalle und Sauna:** Die angrenzende Poolhalle und die Sauna bieten zusätzlichen Luxus und Entspannung.
- **Grundstück:** Das Anwesen ist eingefriedet und von einer traumhaften Grünanlage umgeben. Das gesamte Grundstück erstreckt sich über beeindruckende ca. 7.000 Quadratmeter.
- **Zufahrt:** Eine private Zufahrt unterstreicht den repräsentativen Charakter dieses Anwesens.
**Wohnbereiche:**
- **Schlafräume:** Die Villa verfügt über vier Schlafzimmer, ein Durchgangszimmer und ein großes Masterbad, die höchsten Wohnkomfort bieten.
- **Kellergeschoss:** Im Kellergeschoss besteht die Möglichkeit, einen Einliegerbereich zu kreieren, der zusätzlichen Wohnraum oder eine separate Wohnung für Gäste oder Personal bietet.
Diese Villa kombiniert architektonische Raffinesse mit großzügigem Platzangebot und hochwertigen Ausstattungsmerkmalen. Sie ist ideal für anspruchsvolle Bewohner, die ein Leben im Einklang mit der Natur und zugleich in stilvollem Ambiente suchen.
Traumhafte Industriellenvilla in Wiehl
51674 Wiehl
Die vollständige Adresse der Immobilie erhalten Sie vom Anbieter.
Auf Karte anzeigen
Die vollständige Adresse der Immobilie erhalten Sie vom Anbieter.
Finanzierungszertifikat
In nur zwei Minuten zu Ihrem persönlichen Finanzierungszertifkat.
Infos
| Haustyp | Villa |
|---|---|
| Etagenzahl | 2 |
| Wohnfläche ca. | 270 m2 |
| Nutzfläche | 276 m2 |
| Grundstücksfläche | 7.624 m2 |
| Zimmer | 7 |
| Schlafzimmer | 4 |
| Badezimmer | 2 |
| Garage/Stellplatz | Garage |
| Anzahl Garage/Stellplatz | 2 |
Kosten
| Kaufpreis |
798.000 € |
|---|---|
| Provision |
Käuferprovision beträgt 3,57 % (inkl. MwSt.) des beurkundeten Kaufpreises |
Finanzierungsrechner:
Kaufpreis:
600.000 €
Eigenkapital:
600.000 €
Monatliche Rate
0 €
Effektiver Jahreszins
0 %
Sollzinsbindung
10 Jahre
Bausubstanz & Energieausweis
| Baujahr | 1956 |
|---|---|
| Bauphase | Haus fertig gestellt |
| Objektzustand | Modernisiert |
| Qualität der Austattung | Luxus |
| Heizungsart | Zentralheizung |
| Wesentliche Energieträger | Öl |
| Energieausweis | laut Gesetz nicht erforderlich |
Beschreibung des Objekts
Ausstattung
private Zufahrt
Fenster 1998
hochwertige Schieferböden und Eichen Parkett
herrschaftlicher Kamin
2 Bäder, eins davon im Schwimmbad und eins nachrüstbar
angrenzende Schwimmhalle mit Sauna mit Möglichkeit des Umbaus zur Wohnfläche
2 Garagen
Eselstall / Gartenhaus
alter Baumbestand
Leider existiert noch keine Wohnflächenberechnung, das wird jedoch gerade vom Architekten durchgeführt und nachgereicht, hier handelt es sich lediglich um eine ca. Angabe
Lage
Die Villa in Mühlen präsentiert sich als traumhaftes Anwesen am Waldesrand, unweit des Zentrums von Bielstein im oberbergischen Kreis. Diese exquisite Residenz vereint das Beste aus beiden Welten: Sie liegt idyllisch eingebettet inmitten von Wäldern und unberührter Natur, was ein Gefühl von Ruhe und Abgeschiedenheit vermittelt. Gleichzeitig profitieren die Bewohner von der Nähe zu Bielstein, das eine hervorragende Infrastruktur und diverse Annehmlichkeiten bietet.
Die umgebenden Wälder und grünen Landschaften bieten zahlreiche Möglichkeiten für Erholung und Freizeitaktivitäten in der Natur, Wanderwege und Naturschutzgebiete laden zu ausgedehnten Spaziergängen, Joggingrunden und Fahrradtouren ein.
Das Anwesen selbst beeindruckt durch seine architektonische Eleganz und die großzügigen Räumlichkeiten, die keine Wünsche offenlassen. Ob als repräsentativer Wohnsitz oder als exklusives Feriendomizil – die Villa bietet einen unvergleichlichen Lebensstandard in einer der schönsten Lagen des Oberbergischen Kreises.
Ein Energieausweis lag zum Zeitpunkt der Anzeigenschaltung nicht vor!
Sonstige Angaben
GELDWÄSCHE: Als Immobilienmaklerunternehmen ist die von Poll Immobilien GmbH nach § 2 Abs. 1 Nr. 14 und § 11 Abs. 1, 2 Geldwäschegesetz (GwG) dazu verpflichtet, bei der Begründung einer Geschäftsbeziehung die Identität des Vertragspartners festzustellen und zu überprüfen, bzw. sobald ein ernsthaftes Interesse an der Durchführung des Immobilienkaufvertrages besteht. Hierzu ist es erforderlich, dass wir nach § 11 Abs. 4 GwG die relevanten Daten Ihres Personalausweises festhalten (wenn Sie als natürliche Person handeln) – beispielsweise mittels einer Kopie. Bei einer juristischen Person benötigen wir eine Kopie des Handelsregisterauszugs, aus welchem der wirtschaftlich Berechtigte hervorgeht. Das Geldwäschegesetz sieht vor, dass der Makler die Kopien bzw. Unterlagen fünf Jahre aufbewahren muss. Als unser Vertragspartner haben Sie auch eine Mitwirkungspflicht nach § 11 Abs. 6 GwG.
HAFTUNG: Wir weisen darauf hin, dass die von uns weitergegebenen Objektinformationen, Unterlagen, Pläne etc. vom Verkäufer bzw. Vermieter stammen. Eine Haftung für die Richtigkeit oder Vollständigkeit der Angaben übernehmen wir daher nicht. Es obliegt daher unseren Kunden, die darin enthaltenen Objektinformationen und Angaben auf ihre Richtigkeit hin zu überprüfen. Alle Immobilienangebote sind freibleibend und vorbehaltlich Irrtümer, Zwischenverkauf- und Vermietung oder sonstiger Zwischenverwertung.
UNSER SERVICE FÜR SIE ALS EIGENTÜMER:
Planen Sie den Verkauf oder die Vermietung Ihrer Immobilie, so ist es für Sie wichtig, deren Marktwert zu kennen. Lassen Sie kostenfrei und unverbindlich den aktuellen Wert Ihrer Immobilie professionell durch einen unserer Immobilienspezialisten einschätzen. Unser bundesweites und internationales Netzwerk ermöglicht es uns, Verkäufer bzw. Vermieter und Interessenten bestmöglich zusammenzuführen.
Adresse
51674 Wiehl
Interessante Orte
Preis- und Lageinformationen
Preistrend für Bestandsimmobilien in Wiehl