Dieses moderne Haus begeistert durch seine geräumigen Zimmer und einer großen Dachterrasse.
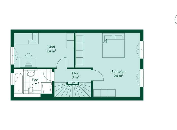
Diese Doppelhaushälfte bietet Ihnen auf vier Etagen maximales Wohnvergnügen. Im Souterrain erwartet Sie ein großzügiger Eingangsbereich mit direktem Zugang zur In-House Garage, in der Sie Ihr Auto sicher und wettergeschützt parken. Ein großer Kellerraum rundet dieses Geschoss ab. Ein großer und offener Wohnbereich mit angrenzender Küche im Erdgeschoss sorgt für ausreichend Platz, um sich zu entfalten. Die angrenzende Terrasse ist ideal für entspannte Abende im Freien. Eine Treppe höher genießen Sie zwei helle und freundliche Zimmer. Ihr Badezimmer wird zum Wohlfühlort – mit Tageslicht, einer Badewanne zum Entspannen und einer ebenerdigen Dusche für den frischen Start in den Tag. Homeoffice, Gästezimmer oder kreativer Raum – das ausgebaute Studio mit umlaufender Dachterrasse bietet Ihnen vielfältige Nutzungsmöglichkeiten.
Sie brauchen ein weiteres Schlafzimmer im Obergeschoss? Durch geschickte Raumteilung und flexible Lösungen machen wir es für Sie möglich. Wählen Sie die Bodenbeläge für Ihr Haus aus unserem Angebot an verschiedenen Materialien, Farben und Designs. Sie wünschen pflegeleichten Designboden oder lieber stilvolles Parkett? Natürlich bieten wir auch Malerarbeiten für Ihr Haus an. Gerne beraten wir Sie und unterbreiten Ihnen ein Angebot.
Doppelhaushälfte mit Keller, inkl. Grundstück
45529 Hattingen
Die vollständige Adresse der Immobilie erhalten Sie vom Anbieter.
Auf Karte anzeigen
Die vollständige Adresse der Immobilie erhalten Sie vom Anbieter.
Finanzierungszertifikat
In nur zwei Minuten zu Ihrem persönlichen Finanzierungszertifkat.
Infos
| Haustyp | Doppelhaushaelfte |
|---|---|
| Wohnfläche ca. | 145 m2 |
| Nutzfläche | 35,19 m2 |
| Grundstücksfläche | 273 m2 |
| Bezugsfrei ab | Juni 2026 |
| Zimmer | 4 |
| Schlafzimmer | 2 |
| Badezimmer | 1 |
| Garage/Stellplatz | Garage |
| Anzahl Garage/Stellplatz | 2 |
Kosten
| Kaufpreis |
649.900 € |
|---|---|
| Provision | Nein |
Finanzierungsrechner:
Kaufpreis:
600.000 €
Eigenkapital:
600.000 €
Monatliche Rate
0 €
Effektiver Jahreszins
0 %
Sollzinsbindung
10 Jahre
Bausubstanz & Energieausweis
| Baujahr | 2025 |
|---|---|
| Bauphase | Haus im Bau |
| Objektzustand | Erstbezug |
| Qualität der Austattung | Gehoben |
| Heizungsart | Fußbodenheizung |
| Wesentliche Energieträger | expose.parameter.energySourcesEnev2014.HEAT_SUPPLY |
Beschreibung des Objekts
Ausstattung
- Massivhaus
- Effizienzhaus 55-Standard
- Keller
- inklusive erschlossenem Grundstück von 273 m²
- gepflasterte Terrasse zum Garten
- Dachterrasse
- heller Wohnbereich mit offener Küche
- Gäste-WC mit Fenster
- Tageslichtbad
- bodengleiche Dusche
- Badewanne
- Handtuchheizkörper
- elektrische Rollläden
- Fußbodenheizung
- Isolierglas-Fenster
- ausgebautes Dachstudio
- großer Kellerraum mit Fenster und Waschmaschinenanschluss
- In-House Garage
- Außenstellplatz
- Spielstraße ohne Durchgangsverkehr
- Sitzmöglichkeiten im Quartier
Lage
Wenige Minuten laufen Sie zum Ruhr-Ufer und dem Leinpfad, einem beliebten Spazier- und Radweg entlang der Ruhr. Die hübsche Hattinger Altstadt liegt nur 2 km entfernt. Zum nächsten Discounter sind es nur 450 Meter und zum Landschaftspark Henrichshütte radeln Sie etwa 10 Minuten.
Sonstige Angaben
*Unsere Sparaktion für kurze Zeit:
Wir schenken wir Ihnen den Ausbau eines zusätzlichen Zimmers im Obergeschoss. Durch clevere Raumteilung entsteht so ein weiteres Zimmer – ideal für Ihren Nachwuchs, für Gäste oder als Arbeitszimmer. Unser Angebot gilt bei notariellem Kauf im Aktionszeitraum vom 20.10.2025 bis 31.12.2025.
Weitere Dokumente
Energieausweis_DHH_001-Winz...Adresse
45529 Hattingen
Interessante Orte
Preis- und Lageinformationen
Preistrend für Bestandsimmobilien in Hattingen