Das zum Verkauf stehende Grundstück mit einer Fläche von etwa 17.200 m² besteht aus drei Parzellen und befindet sich in einer ortsnahen Lage mit einem beeindruckenden Weitblick. Gelegen in einem ruhigen Finca-Gebiet, bietet das Anwesen die perfekte Kombination aus naturnaher Abgeschiedenheit und guter Anbindung zur malerischen Stadt Artà, die in nur etwa zwei Autominuten zu erreichen ist.
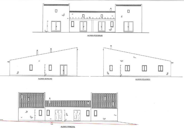
Die Baugenehmigung für ein eingeschossiges Einfamilienhaus mit Pool ist bereits vorhanden, sodass zeitnah mit den Bauarbeiten begonnen werden kann. Das geplante Bauprojekt umfasst einen modernen Bungalow mit drei Schlafzimmern, jeweils mit Bad en Suite, einem großzügigen Wohn- und Essbereich mit offener Küche sowie einer Tiefgarage mit Platz für zwei Autos. Das Haus vereint modernes Design mit praktischem Komfort und fügt sich harmonisch in die umgebende Landschaft ein.
Dieses Grundstück mit Baugenehmigung ist die ideale Wahl für all diejenigen, die Ihre eigene Finca auf Mallorca erstellen möchten und die Möglichkeit eines sofortigen Baubeginns schätzen.
Der Verkäufer beantragt die Bohrung eines Brunnens; Strom über Photovoltaikanlage oder Beantragung eines öffentlichen Anschlusses.
Ländliches Baugrundstück mit Baugenehmigung - inklusive Pool - in ruhiger Lage nahe Artà
07570 Artà
Die vollständige Adresse der Immobilie erhalten Sie vom Anbieter.
Auf Karte anzeigen
Die vollständige Adresse der Immobilie erhalten Sie vom Anbieter.
Finanzierungszertifikat
In nur zwei Minuten zu Ihrem persönlichen Finanzierungszertifkat.
Infos
| Vermarktungsart | Kaufen |
|---|---|
| Grundstücksfläche | 17.200 m2 |
| Empfohlene Nutzung | Einfamilienhaus |
| Bebaubar nach | Bebauungsplan |
| Verfügbar ab | Sofort |
Kosten
| Miete pro Jahr |
379.000 € |
|---|---|
| Provision | Nein |
Finanzierungsrechner:
Kaufpreis:
600.000 €
Eigenkapital:
600.000 €
Monatliche Rate
0 €
Effektiver Jahreszins
0 %
Sollzinsbindung
10 Jahre
Beschreibung des Objekts
Lage
Das Grundstück befindet sich in unmittelbarer Nähe zur malerischen Stadt Artà, einem charmanten Ort im Nordosten Mallorcas, der für seine authentische Atmosphäre und lebendige Infrastruktur bekannt ist. Artà bietet das ganze Jahr über eine hervorragende Infrastruktur, die vor allem von den zahlreichen Einheimischen getragen wird. Die Stadt ist berühmt für ihre historischen Gebäude, gemütlichen Cafés und den wöchentlichen Markt, der eine Vielzahl lokaler Produkte anbietet. In der näheren Umgebung liegen die beiden einladenden Orte Capdepera und Son Servera. Capdepera ist bekannt für seine beeindruckende mittelalterliche Burg und das lebhafte Zentrum. Son Servera wiederum bietet ein ruhiges und entspanntes Ambiente mit gepflegten Plätzen und einer ansprechenden Auswahl an traditionellen und modernen Annehmlichkeiten. Die Region im Nordosten Mallorcas ist zudem für ihre traumhaften Buchten mit kristallklarem Wasser berühmt. Diese zahlreichen Badestrände laden zu erholsamen Tagen am Meer und vielfältigen Wassersportaktivitäten ein. Der Flughafen von Palma de Mallorca ist etwa eine Autostunde entfernt, was eine bequeme Anreise ermöglicht.
Sonstige Angaben
AGB & Haftungsklausel:
Bitte haben Sie Verständnis, dass Sie die exakte Adresse erst bei einer Besichtigung erfahren.
Das Objekt kann nach Absprache besichtigt werden:
Tel.: +34 971 566 178
Mob: +34 682 755 801 (auch WhatsApp)
E-Mail: contact@ccc-real-estate.com
Büro-Öffnungszeiten:
Montag - Donnerstag: 10:00 - 18:30 Uhr
Freitag: 10:00 - 17:00 Uhr
Termine außerhalb der Bürozeiten gerne nach Vereinbarung.
Weitere interessante Angebote unter www.ccc-real-estate.com
Alle Angaben basieren ausschließlich auf Informationen, die uns vom Eigentümer/Bauträger zur Verfügung gestellt wurden. Canaima Concept & Consulting, S.L. (CCC REAL ESTATE) übernimmt keine Gewähr für die Vollständigkeit, Richtigkeit und Aktualität dieser Angaben. Irrtum und Zwischenverkauf vorbehalten.
Die beim Kauf einer Immobilie in Spanien anfallenden Kauferwerbsnebenkosten (Grunderwerbssteuer / ggf. MwSt, Notargebühren, Abwicklungshonorar und Grundbuchkosten) sind vom Käufer zu tragen. Die Maklercourtage geht zu Lasten des Verkäufers.
© Canaima Concept & Consulting, S.L.
Grundriss
Grundriss
>
>