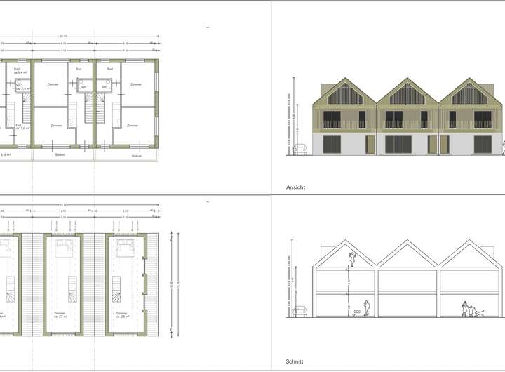
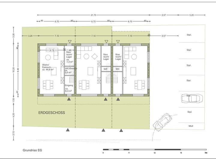
Dieses sonnige Grundstück mit 704 m² liegt in einer der begehrtesten Wohnlagen von Gilching. Die Parzelle ist voll erschlossen, bereits vermessen. Das Grundstück bietet völlige Flexibilität in Bezug auf die Bebauung. Genehmigt ist die Bebauung mit einem 3-Spänner - jederzeit auch DH/EFH möglich. (Altbestand zum Abriss)
Das Grundstück wird bis Mai im Bieterverfahrung angeboten und steht für den sofortigen Verkauf zur Verfügung.
Kontaktieren Sie uns gerne für weitere Details.
Das Grundstück überzeugt durch seine ruhige und dennoch zentrale Lage, die hervorragende Infrastruktur sowie die Nähe zu München und dem Fünfseenland.
Eckdaten & Bebaubarkeit
* EFZ/DH/ 3-Spänner
* Bebauung gemäß § 34 BauGB: Das Vorhaben fügt sich harmonisch in die umliegende Bebauung ein
Lagebeschreibung
Das Grundstück liegt in einer ruhigen, familienfreundlichen Straße im alten Dorfkern von Gilching, nur 25 km westlich von München. Die Umgebung ist geprägt von Einfamilienhäusern, Doppelhäusern und Bauernhöfen. Einkaufsmöglichkeiten, Schulen und Freizeitangebote sind in wenigen Minuten erreichbar, und Natur sowie Seen befinden sich direkt vor der Haustür.
Die Hauptstraße ist in wenigen Gehminuten erreichbar, wobei das Grundstück ruhig und ohne Verkehrslärm liegt.
Besichtigung & Hinweis
Das Grundstück ist frei zugänglich und kann eigenständig besichtigt werden. Die genaue Adresse und Lage entnehmen Sie bitte der Anzeige.
Nach § 7 UWG sind unaufgeforderte Kontaktaufnahmen durch Makler ohne ausdrückliche Einwilligung des Empfängers untersagt.
Finanzierungszertifikat
In nur zwei Minuten zu Ihrem persönlichen Finanzierungszertifkat.
Infos
| Vermarktungsart | Kaufen |
|---|---|
| Grundstücksfläche | 704 m2 |
| Erschließung | Erschlossen |
| Bebaubar nach | wie Nachbarbebauung |
| Verfügbar ab | 22.1.2026 |
Kosten
| Miete pro Jahr |
0 € |
|---|---|
| Provision | Nein |
Finanzierungsrechner:
Kaufpreis:
600.000 €
Eigenkapital:
600.000 €
Monatliche Rate
0 €
Effektiver Jahreszins
0 %
Sollzinsbindung
10 Jahre
Beschreibung des Objekts
Lage
Zentrale Lage:
* 25 km westlich von München, mit hervorragender Anbindung an die S8 (Bahnhof Gilching-Argelsried) – Fahrzeit nach München ca. 30 Minuten.
* Ruhige, kleine Einliegerstraße mit nahezu keinem Durchgangsverkehr.
Familienfreundlich:
* Kindergärten, Grundschulen und weiterführende Schulen in direkter Nähe.
* Ideal für Familien oder Paare, die Ruhe und Sicherheit suchen.
Einkauf & Versorgung:
* Supermärkte (Edeka, Lidl) sowie Bäckereien, Apotheken und Drogerien bequem erreichbar.
Freizeit & Natur:
* Renaturierter Baggersee Gilching nur wenige Minuten entfernt.
* Rad- und Wanderwege, Starnberger See und Wörthsee in unmittelbarer Nähe.
* Vielfältige Outdoor-Aktivitäten in der abwechslungsreichen Landschaft des Fünfseenlands.
Kulturelles Umfeld:
* Alter Dorfkern mit Kirche St. Vitus und Gasthof Widmann.
Idyllische Lage mit hohem Wohnwert und hervorragender Infrastruktur.
Fazit:
Am Anger 3 in Gilching profitieren Sie von der perfekten Kombination aus idyllischer Ruhe, guter Infrastruktur und Nähe zu München, ideal für die Verwirklichung Ihres Traumhauses.