Dieses Angebot richtet sich an Bauherren/Investoren,
die eine fertige Planung realisieren möchten.
Angeboten wird ein 1.276 m² großes Grundstück.
In Planung ist ein Neubau im Bünder Ortsteil Holsen.
Eine komplette Baugenehmigung incl. Schall- und
Brandschutzkonzept liegt vor.
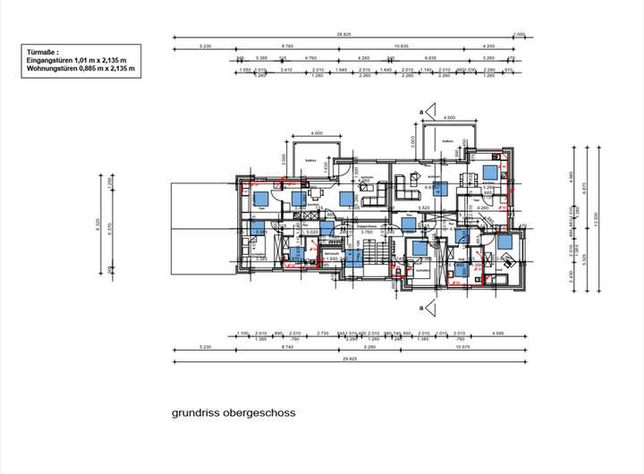
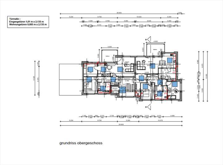
Das geplante Haus mit 6 Wohnparteien unterteilt sich wie folgt:
- Erdgeschoss und 1. Obergeschoss, Wohnung links: 79,11 m²
- Erdgeschoss und 1. Obergeschoss, Wohnung rechts: 114,20 m²
- Dachgeschoss, Wohnung links: 71,90 m²
- Dachgeschoss, Wohnung rechts: 99,76 m²
Wohnfläche gesamt: 558,28 m²
(Alle angegebenen Maße sind ca.-Maße)
Das Haus soll als KfW-Effizienzhaus 55 errichtet werden.
Es wird über einen Aufzug verfügen. Die beiden unteren
Wohnungen haben jeweils eine Terrasse, die oberen
einen Balkon.
Auf dem Grundstück sind laut Bauplanung 9 Stellplätze für
Kraftfahrzeuge und 6 Stellplätze für Fahrräder geplant.
In der Bauplanung vorgesehen ist ein kleiner Kinderspielplatz.
Die Käuferprovision beträgt 3,57 % vom Kaufpreis.
Bauherren/Investoren gesucht - Grundstück ist Bauträger frei !
32257 Bünde
Die vollständige Adresse der Immobilie erhalten Sie vom Anbieter.
Auf Karte anzeigen
Die vollständige Adresse der Immobilie erhalten Sie vom Anbieter.
Finanzierungszertifikat
In nur zwei Minuten zu Ihrem persönlichen Finanzierungszertifkat.
Infos
| Haustyp | Mehrfamilienhaus |
|---|---|
| Wohnfläche ca. | 558 m2 |
| Grundstücksfläche | 1.276 m2 |
| Zimmer | 15 |
| Garage/Stellplatz | Außenstellplatz |
Kosten
| Kaufpreis |
275.000 € |
|---|
Finanzierungsrechner:
Kaufpreis:
600.000 €
Eigenkapital:
600.000 €
Monatliche Rate
0 €
Effektiver Jahreszins
0 %
Sollzinsbindung
10 Jahre
Bausubstanz & Energieausweis
| Baujahr | unbekannt |
|---|---|
| Heizungsart | Fußbodenheizung |
| Energieausweis | liegt vor |
| Energieausweistyp | Bedarfsausweis |
| Energieverbrauchskennwert | 55,0 kWh/(m²*a) |
| Energieeffizienzklasse | B |
55,0
kWh/(m²*a)
Energieeffizienzklasse B
- A+
- A
- B
- C
- D
- E
- F
- G
- H
- 0
- 25
- 50
- 75
- 100
- 125
- 150
- 175
- 200
- 225
- >250
Beschreibung des Objekts
Ausstattung
- Bauweise: außen massiv - Porenbetonstein, Dämmung,
Verblendmauerwerk, innere Trennwände aus Kalksandstein
- Dämmung: Dach, Dachschrägen, Gauben mit Mineralfaserdämmung
- Dach: Tondachpfannen engobiert (diffusionsoffen), anthrazit-grau oder schwarz
- Heizung: vollautomatische Luftwärmepumpe, überwiegend Fußbodenheizung
- Fenster/Fenstertüren: Kunststoff, isolierverglast, Drei-Scheiben-Wärmefunktionsglas
- Fensterrahmen: Kunststoff, innen weiß, außen anthrazit
- Fensterbänke: innen/außen Naturstein, Badezimmer und Gäste-WC gefliest
- Rollläden: aus Kunststoff, elektrischer Antrieb
- Haustür: wärmedämmendes, einbruchhemmendes Sicherheitsglas
mit Mehrfachtresorverriegelung und Sicherheitszylinderschloss. Griff aus Edelstahl
- Innentüren: CPL-beschichtete Zimmertüren, verschiedene Dekore zur Auswahl
- Treppen: Stahlbeton, verfliest
- Geländer: Edelstahl, senkrechte Füllstäbe, Rundhandlauf
- Balkongeländer: mit Füllung aus Trespa-Platten oder Verglasung
- Sprechanlage: Videosprechanlage
- TV-Anschluss: über SAT-Anlage
- Internet: Schaltung über Patch-Paneel
Lage
Bünde-Holsen
Dieses attraktive Sechs-Parteien-Haus soll im Bünder Ortsteil Holsen stehen.
Bündes nordwestlicher Ortsteil mit seinen 3500 Einwohnern bietet besonders Familien
ein hervorragendes Lebensumfeld.
Bis zur Stadtmitte Bünde beträgt die Entfernung ca. 3 km
Entfernung zur nächsten Autobahn: A 30 - 2 km, A 2 - 15 km
Nächster Bahnhof: Bünde - 3 km, Herford - 10 km
Sonstige Angaben
Ansprechpartner:
Cornelius Mackenstedt,
Telefon 0162-318 2021
Thomas Landau, Frank Tippelt
0521/923 780
E-Mail info@dit-owl.de
Internet www.dit-owl.de
Grundriss
Grundriss EG
>
>
Grundriss OG
>
>
Grundriss DG
>
>
Grundriss Erdgeschoss
>
>
Grundriss Obergeschoss
>
>
Grundriss Dachgeschoss
>
>
Adresse
32257 Bünde
Interessante Orte
Preis- und Lageinformationen
Preistrend für Bestandsimmobilien in Bünde