Dieses vielseitige 4-Familienhaus im Herzen von Vreden bietet nicht nur eine hervorragende Investitionsmöglichkeit, sondern auch viel Platz für individuelle Wohnträume. Mit einer Wohnfläche von ca. 309 m² und einem großzügigen Grundstück von ca. 1.310 m² überzeugt das Haus durch seine flexible Nutzung – ob als Eigenheim für eine große Familie, Mehrgenerationenhaus oder als Kapitalanlage mit soliden Mieteinnahmen von ca. € 36.000 pro Jahr.
Das Haus besticht durch seine hochwertige Bauweise, die in zwei Bauphasen (1985 und 1995) realisiert wurde. Von 2020 bis 2022 wurden umfassende Modernisierungen vorgenommen, um die Immobilie auf den neuesten Stand zu bringen. Dazu zählen neue Bäder, modernisierte Heizsysteme, elegante Fliesen und Laminatböden, die den Wohnräumen einen modernen und zugleich gemütlichen Charakter verleihen.
Mit drei Wohnungen und einer möglichen Einliegerwohnung im Untergeschoss bietet das Haus genügend Raum für flexible Wohnkonzepte. Große Fenster sorgen für lichtdurchflutete Räume und die beiden Terrassen sowie der Balkon laden zum Entspannen mit Blick auf den gepflegten Garten ein. Ob als privater Rückzugsort oder geselliger Treffpunkt für Familie und Freunde – dieses Haus erfüllt Ihre Wohnträume!
Vielfältige Wohn- und Investment-Chance: 4-Familienhaus im idyllischen Vreden
48691 Vreden
Die vollständige Adresse der Immobilie erhalten Sie vom Anbieter.
Auf Karte anzeigen
Die vollständige Adresse der Immobilie erhalten Sie vom Anbieter.
Finanzierungszertifikat
In nur zwei Minuten zu Ihrem persönlichen Finanzierungszertifkat.
Infos
| Haustyp | Mehrfamilienhaus |
|---|---|
| Etagenzahl | 2 |
| Wohnfläche ca. | 309 m2 |
| Grundstücksfläche | 1.310 m2 |
| Zimmer | 10 |
| Schlafzimmer | 6 |
| Badezimmer | 4 |
| Garage/Stellplatz | Garage |
| Anzahl Garage/Stellplatz | 1 |
Kosten
| Kaufpreis |
600.000 € |
|---|---|
| Provision |
3,57 % inkl. MwSt. |
Finanzierungsrechner:
Kaufpreis:
600.000 €
Eigenkapital:
600.000 €
Monatliche Rate
0 €
Effektiver Jahreszins
0 %
Sollzinsbindung
10 Jahre
Bausubstanz & Energieausweis
| Baujahr | 1984 |
|---|---|
| Objektzustand | Vollständig Renoviert |
| Qualität der Austattung | Normal |
| Heizungsart | Fußbodenheizung |
| Wesentliche Energieträger | Gas |
| Energieausweis | liegt vor |
| Energieausweistyp | Bedarfsausweis |
| Energieverbrauchskennwert | 100,1 kWh/(m²*a) |
| Energieeffizienzklasse | D |
100,1
kWh/(m²*a)
Energieeffizienzklasse D
- A+
- A
- B
- C
- D
- E
- F
- G
- H
- 0
- 25
- 50
- 75
- 100
- 125
- 150
- 175
- 200
- 225
- >250
Beschreibung des Objekts
Ausstattung
- Massivbauweise
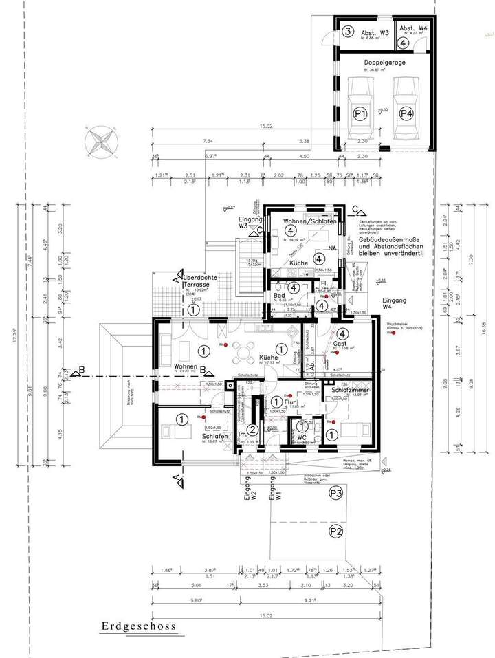
- Wohnung im EG: 3 Zimmer, Küche, Bad, kleiner Keller mit Abstellraum - ca. 86,95 m²
- Wohnung im EG: 1 Zimmer, Abstellraum, Küche, Bad - ca. 49,38 m²
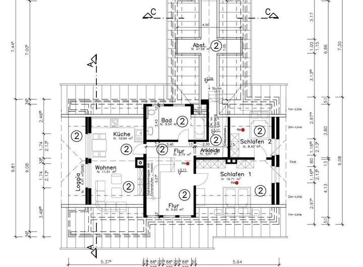
- Wohnung im DG: 3 Zimmer, Abstellraum, Ankleide, Küche, Bad - ca. 98,76 m²
- Wohnung im KG: 2 Zimmer, Küche, Bad - ca. 74,15 m²
- 1 Wohnung mit Balkon
- 2 Wohnungen mit Terrasse
- 2 Wohnungen mit Einbauküche
- OG Wohnung mit Dusche und Wanne
- KG, EG (groß) Wohnung mit Wanne
- EG (klein) Wohnung mit Dusche
- alle Bäder mit Fenster und Badezimmermöbel
- Bodenbeläge: Fliesen, Laminat, teilweise Vinylboden
- es wurde bereits Glasfaserkabel im Haus verlegt
- Abstellräume
- Garten
Lage
Das 4-Familienhaus befindet sich im malerischen Vreden, nahe der niederländischen Grenze. Die zentrale Lage bietet den idealen Mix aus ländlicher Idylle und städtischer Infrastruktur. Die ruhige, gepflegte Nachbarschaft, kombiniert mit der Nähe zu wichtigen Einrichtungen wie Supermärkten, Restaurants, Schulen und medizinischer Versorgung, macht diese Immobilie besonders attraktiv für Familien und Berufspendler.
Zudem bietet Vreden eine exzellente Verkehrsanbindung an die niederländischen Städte, was die Lage für Berufspendler in beiden Ländern äußerst vorteilhaft macht. Für Naturliebhaber eröffnen sich zahlreiche Freizeitmöglichkeiten in der Umgebung – von idyllischen Radwegen bis zu erholsamen Wanderpfaden.
Sonstige Angaben
Für Kapitalanleger bietet dieses Objekt eine lukrative und langfristige Investitionsmöglichkeit. Die solide Bauweise, kombiniert mit den umfassenden Renovierungen, sichert einen stabilen Mietfluss von ca. € 36.000 pro Jahr. Dank der ausgezeichneten Lage in Vreden, einer charmanten Stadt an der niederländischen Grenze, bleibt das Potenzial für nachhaltige Wertsteigerung bestehen.
Wir sind der allein beauftragte Makler und freuen uns auf Sie und Ihre Anfrage.
Wir vermitteln - mit Sicherheit.
Grundriss
Erdgeschoss
>
>
Dachgeschoss
>
>
Kellergeschoss
>
>
Adresse
48691 Vreden
Interessante Orte
Preis- und Lageinformationen
Preistrend für Bestandsimmobilien in Vreden