Dieser großzügige Bungalow, ideal gelegen im Herzen von Hörnum auf der Insel Sylt, bietet Ihnen auf ca. 128 m² Wohnfläche reichlich Platz für Ihre individuellen Wohnträume. Die Immobilie erstreckt sich über zwei Ebenen (Erdgeschoss und Untergeschoss) und verfügt über insgesamt 5 Zimmer.
Im Erdgeschoss erwartet Sie ein großzügiger Flur mit Gäste-WC. Weiterhin finden Sie auf dieser Ebene eine Küche, ein Badezimmer, ein geräumiges Schlafzimmer sowie ein Wohnzimmer. Ein zusätzlicher Raum bietet Ihnen vielseitige Nutzungsmöglichkeiten, sei es als Arbeitszimmer, Hobbyraum oder weiterer Schlafraum.
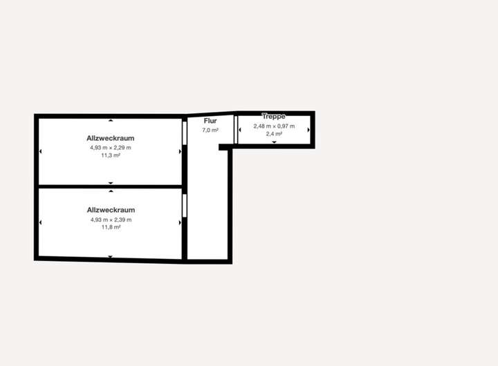
Das Untergeschoss beherbergt zwei weitere Zimmer, die ebenfalls vielfältig genutzt werden können.
Die Immobilie befindet sich in einem stark renovierungsbedürftigen Zustand und bietet daher besonders für Handwerker oder kreative Köpfe die perfekte Gelegenheit, ihr Traumobjekt nach eigenen Vorstellungen zu gestalten. Die zentrale Lage in Hörnum ermöglicht Ihnen kurze Wege zu den örtlichen Annehmlichkeiten und den traumhaften Stränden der Insel.
Der Bungalow ist als Anbau an ein separat stehendes Wohnhaus gestaltet, dieses wird derzeit als Personalhaus genutzt.
Bungalow für Handwerker und kreative Köpfe
25997 Hörnum (Sylt)
Die vollständige Adresse der Immobilie erhalten Sie vom Anbieter.
Auf Karte anzeigen
Die vollständige Adresse der Immobilie erhalten Sie vom Anbieter.
Finanzierungszertifikat
In nur zwei Minuten zu Ihrem persönlichen Finanzierungszertifkat.
Infos
| Haustyp | Bungalow |
|---|---|
| Wohnfläche ca. | 128 m2 |
| Grundstücksfläche | 423 m2 |
| Zimmer | 5 |
| Schlafzimmer | 1 |
| Badezimmer | 1 |
Kosten
| Kaufpreis |
495.000 € |
|---|---|
| Provision |
3,57% inkl. MwSt. |
Finanzierungsrechner:
Kaufpreis:
600.000 €
Eigenkapital:
600.000 €
Monatliche Rate
0 €
Effektiver Jahreszins
0 %
Sollzinsbindung
10 Jahre
Bausubstanz & Energieausweis
| Objektzustand | Renovierungsbedürftig |
|---|---|
| Heizungsart | Zentralheizung |
| Wesentliche Energieträger | Gas |
Beschreibung des Objekts
Lage
Hörnum ist ein Ort auf der sonnigen und von allen Seiten vom Meer umgebenen Südseite der Insel Sylt und bietet eine Bestlage. Der weiße Sandstrand, das Ortszentrum und das gemütliche Strandrestaurant "Kap-Horn" sind alle in wenigen Gehminuten erreichbar. Die langen Sandstrände laden zu ausgiebigen Strandspaziergängen ein und bieten die Möglichkeit, die Naturgewalten zu erleben. Der Brandungsstrand auf der Westseite eignet sich hervorragend zum Baden für Groß und Klein, während der Oststrand aufgrund seiner seichten Wasserverhältnisse bei Familien mit Kleinkindern beliebt ist.
Der Hörnumer Hafen wird von Krabbenkuttern, Muschelfischern, Ausflugsschiffen, Sportbooten und Jachten frequentiert und gelegentlich suchen auch "Großsegler" Schutz vor dem "Blanken Hans", wie die Nordsee liebevoll genannt wird. Der neue 18-Loch-Linkscourse-Golfplatz "Budersand" wurde 2008 auf dem ehemaligen Gelände der Pidder-Lüng-Kaserne eröffnet, unweit des Hafens. Das Restaurant "Strönholt", das sich in der ehemaligen Radarstation auf der Düne befindet, bietet einen atemberaubenden Blick auf den Golfplatz, das Wattenmeer, den Hafen, die Nachbarinseln und die Nordsee.
Eine weitere Attraktion ist eine Wanderung am Flutsaum um die "Hörnum-Odde", die in den letzten Jahren durch die zahlreichen Sturmfluten dramatische Sandverluste zu beklagen hatte. Hörnum hat in den letzten Jahren durch seine verbesserte Infrastruktur einen deutlichen Imagewandel erfahren und wird bei Gästen und Syltern aufgrund seiner besonderen Natur immer beliebter. Natürlich spiegelt sich diese Entwicklung auch in den Preisen wider.
Sonstige Angaben
Die ausgeschriebene Wohn- und Nutzfläche ist nicht auf eine genormte Berechnung laut WoFlV oder II. BV zurückzuführen. Es handelt sich vielmehr um eine Berechnung nach dem sogenannten "Sylter Maß". Dieses gibt alle im Objekt enthaltenen Flächen wieder, gemessen an den Fußleisten (Erd- & Dachgeschoss, Spitzboden, sowie Souterrain).
Alle Angaben sind ohne Gewähr und stammen vom Eigentümer. Sie wurden nicht durch die Oltmann & Bengsch GmbH & Co. KG geprüft.
Vorsorglich weisen wir auf die Bestimmungen der Landesbauordnung Schleswig-Holstein hin betreffend des dauernden Wohnen in Spitzböden und Kellerräumen.
Die Maklercourtage beträgt 3,57 % inkl. der gesetzlichen Mehrwertsteuer. Sie ist verdient und fällig mit Abschluss eines notariellen Kaufvertrages und vom Käufer zu zahlen an die Oltmann & Bengsch GmbH & Co. KG. Der Immobilienmakler hat einen provisionspflichtigen Maklervertrag in gleicher Höhe mit dem Verkäufer abgeschlossen.
Grundriss
Erdgeschoss
>
>
Untergeschoss
>
>
Adresse
25997 Hörnum (Sylt)
Interessante Orte
Preis- und Lageinformationen
Preistrend für Bestandsimmobilien in Hörnum (Sylt)