Echte Pfälzer (und solche die es werden wollen) packen mit an
Ausbauhaus (Außen fertig inkl. Putz)
Bodenplatte mit Frostschürze mit Sockeldämmung
*Inkl. Fenster und Haustür
*Inkl. Bauantrag und Statik
Das Material für die Dämmung und das Verkleiden der Innenwandseiten wird von uns geliefert.
In einem 1-Tägigen Workshop lernen Sie von Fachleuten wie man das richtig macht.
Die elektrischen Anlagen werden Komplett von uns Installiert.
Die Lüftungsanlage, die Fußbodenheizung sowie die Lüftungsanlage und die Sanitärgrundinstallation liefern wir als betreuten Bausatz. Fachunternehmerleistungen sind enthalten.
Sie montieren Selbst unter Anleitung.
Der Innenausbau wird in Eigenregie ausgeführt.
Ein Komplettpaket (Finish-Paket) mit allen Ausbaumaterialien (Innenfensterbänke, Innentüren, Bauobjekte, Fliesen, Bodenbeläge und vieles mehr.) die zur Bezugsfertigstellung benötigt werden sind im Preis als Paket enthalten.
Sie bauen nur in Eigenleistung alles selbst ein.
Brauchen Sie bei dem ein oder anderen Gewerk Hilfe, sprechen Sie uns an.
Doppelhaushälfte als Technikfertiges Ausbauhaus
76829 Landau in der Pfalz
Die vollständige Adresse der Immobilie erhalten Sie vom Anbieter.
Auf Karte anzeigen
Die vollständige Adresse der Immobilie erhalten Sie vom Anbieter.
Finanzierungszertifikat
In nur zwei Minuten zu Ihrem persönlichen Finanzierungszertifkat.
Infos
| Haustyp | Doppelhaushaelfte |
|---|---|
| Etagenzahl | 3 |
| Wohnfläche ca. | 149 m2 |
| Grundstücksfläche | 224 m2 |
| Zimmer | 5 |
| Schlafzimmer | 3 |
| Badezimmer | 2 |
Kosten
| Kaufpreis |
471.499 € |
|---|---|
| Provision | Nein |
Finanzierungsrechner:
Kaufpreis:
600.000 €
Eigenkapital:
600.000 €
Monatliche Rate
0 €
Effektiver Jahreszins
0 %
Sollzinsbindung
10 Jahre
Bausubstanz & Energieausweis
| Baujahr | 2025 |
|---|---|
| Bauphase | Haus in Planung (projektiert) |
| Objektzustand | Erstbezug |
| Heizungsart | Fernwärme |
Beschreibung des Objekts
Ausstattung
Da es sich um ein Ausbauhaus handelt, ist die Ausstattung, nach Wünschen des Bauherren frei wähl und gestaltbar.
Es ist ein Fernwärmeanschluss vorgesehen.
Die Gebäudehülle kann mit wenig Aufwand an die Anforderungen für KFW 40 KFN angepasst werden.
Fragen Sie an, solange es das Förderprogramm noch für den Neubau gibt!
Lage
Die Lage befindet sich im neu erschlossenen Baugebiet "Im Storchenring."
Sonstige Angaben
Das angebotene Haus ist nur ein Beispiel. Sie können alles bauen, was baurechtlich mit unserem Programm möglich ist. Es sind auch andere Dachformen möglich: Satteldach, Pultdach oder Flachdach.
Im Preis enthalten sind folgende Positionen:
*Bauplatz
*Bauantragsvermessung
*Ausbauhaus (außen fertig nach dem aktuellen Massa Bau und Leistungsbeschreibung 6-2024)
Die Erdarbeiten und Nebenkosten sind mit pauschal 25.000.- EUR geschätzt enthalten.
Gegen Aufpreis erhalten Sie auch eine PV Anlage mit Stromspeicher
Die Erwerbsnebenkosten
(Grunderwerbssteuer-Notarkosten etc.) sind nicht enthalten.
Außenanlagen und Hofgestaltung ist nicht enthalten.
Der Anschluss an die Fernwärme ist nicht enthalten
Alle Angaben sind ohne Gewähr!
Vereinbaren Sie einen persönlichen Beratungstermin.
Hinweis: Die Bilder können Aufpreispflichtiges Zubehör enthalten!
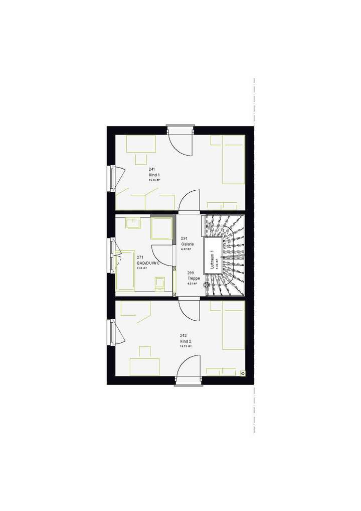
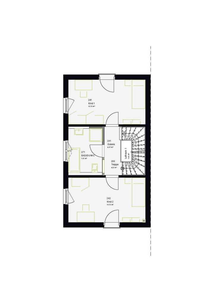
Grundriss
Erdgeschoß
>
>
Obergeschoß
>
>
Dachgeschoß
>
>
Optionales Kellergeschoß
>
>
Erdgeschoß
>
>
Obergeschoß
>
>
Dachgeschoß
>
>
Optionales Kellergeschoß
>
>
Adresse
76829 Landau in der Pfalz
Interessante Orte
Preis- und Lageinformationen
Preistrend für Bestandsimmobilien in Queichheim