Das im Jahr 1972 erbaute Einfamilienhaus bietet auf einer Wohnfläche von ca. 190 m² sowie einem Grundstück von ca. 1.562 m² ausreichend Platz für eine Familie. Das Haus verfügt über insgesamt 8 Zimmer, davon 4 Schlafzimmer und 2 Badezimmer. Zusätzlich gibt es 1 Balkon und 2 Terrassen, wovon eine überdacht ist und somit auch bei schlechtem Wetter genutzt werden kann.
Die Ausstattung des Hauses ist solide und wurde über die Jahre gut gepflegt. Die Gasheizung wurde erst kürzlich im Jahr 2021 erneuert, wodurch eine effiziente und moderne Heizungsart gewährleistet ist. Weiterhin besitzt das Haus einen Innen- und Außenkamin, der gerade in den kalten Wintermonaten für eine gemütliche Atmosphäre sorgt. Die Böden sind mit Laminat, Fliesen und Teppich ausgelegt.
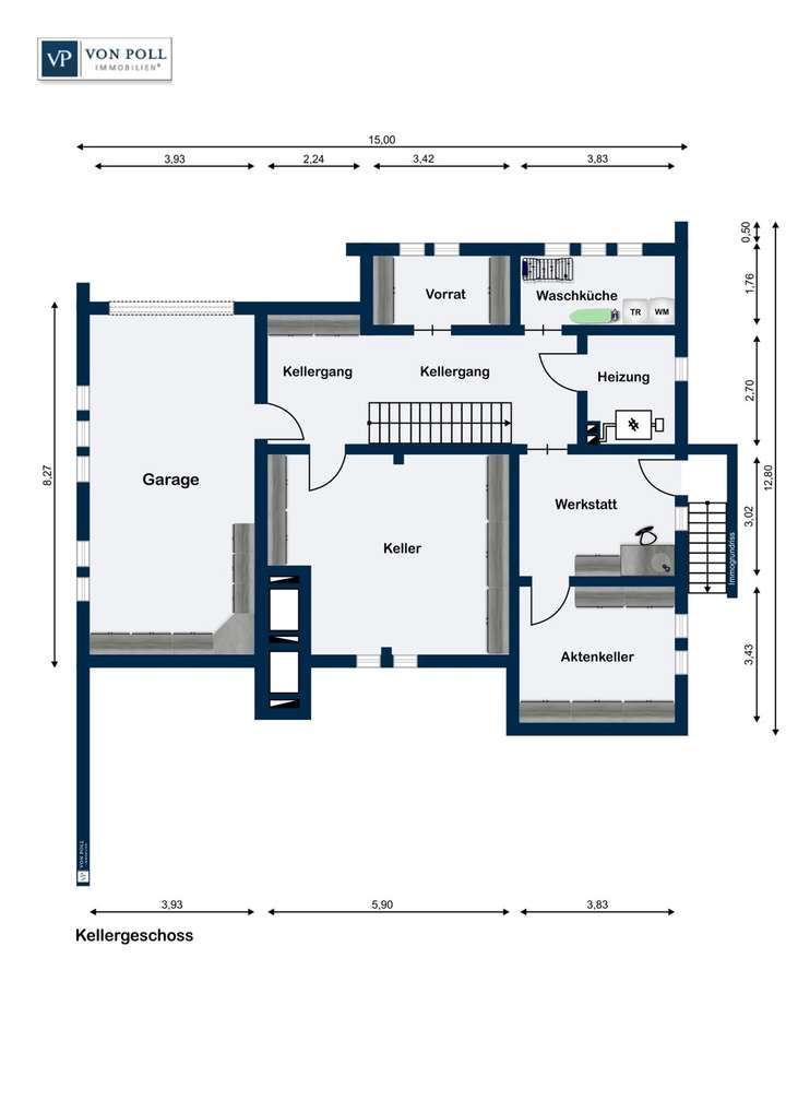
Zur weiteren Ausstattung gehört eine Einbauküche, die im Kaufpreis enthalten ist, sowie zwei Bäder und ein Gäste WC. Das Dach wurde vor kurzem gereinigt und neu beschichtet, was die Langlebigkeit des Hauses gewährleistet. Des Weiteren verfügt das Haus über einen teilweise beheizten Keller und über eine Garage, was zusätzlichen Stauraum und Komfort, aber auch Fläche bietet.
Die Lage des Hauses ist zentral und dennoch ruhig gelegen. Die Umgebung bietet alles, was das tägliche Leben erleichtert, wie Schulen, Einkaufsmöglichkeiten und öffentliche Verkehrsmittel. Die nachbarschaftliche Umgebung ist freundlich und familienorientiert, was das Leben in diesem Haus noch angenehmer macht.
Insgesamt präsentiert sich diese Immobilie als solides Einfamilienhaus mit großzügiger Wohnfläche, schönen Außenflächen und einer praktischen Ausstattung. Ideal für Familien, die viel Platz schätzen. Vereinbaren Sie noch heute einen Besichtigungstermin, um sich von den Vorzügen dieses Hauses zu überzeugen.
Familienoase mit vielen Möglichkeiten!
27308 Kirchlinteln
Die vollständige Adresse der Immobilie erhalten Sie vom Anbieter.
Auf Karte anzeigen
Die vollständige Adresse der Immobilie erhalten Sie vom Anbieter.
Finanzierungszertifikat
In nur zwei Minuten zu Ihrem persönlichen Finanzierungszertifkat.
Infos
| Haustyp | Einfamilienhaus |
|---|---|
| Wohnfläche ca. | 190 m2 |
| Grundstücksfläche | 1.562 m2 |
| Zimmer | 8 |
| Schlafzimmer | 4 |
| Badezimmer | 2 |
Kosten
| Kaufpreis |
495.000 € |
|---|---|
| Provision |
Käuferprovision beträgt 3,57 % (inkl. MwSt.) des beurkundeten Kaufpreises |
Finanzierungsrechner:
Kaufpreis:
600.000 €
Eigenkapital:
600.000 €
Monatliche Rate
0 €
Effektiver Jahreszins
0 %
Sollzinsbindung
10 Jahre
Bausubstanz & Energieausweis
| Baujahr | 1972 |
|---|---|
| Bauphase | Haus fertig gestellt |
| Qualität der Austattung | Normal |
| Heizungsart | Zentralheizung |
| Energieausweis | liegt vor |
| Energieausweistyp | Bedarfsausweis |
| Energieverbrauchskennwert | 137,3 kWh/(m²*a) |
| Energieeffizienzklasse | E |
137,3
kWh/(m²*a)
Energieeffizienzklasse E
- A+
- A
- B
- C
- D
- E
- F
- G
- H
- 0
- 25
- 50
- 75
- 100
- 125
- 150
- 175
- 200
- 225
- >250
Beschreibung des Objekts
Ausstattung
- Baujahr 1972
- Wohnfläche ca. 190 m²
- Grundstück ca. 1.562 m²
- voll unterkellert, beheizt
- Garage
- Balkon
- 2 Terrassen, eine davon überdacht
- Kamin innen und außen
- Gasheizung von 2021
- Laminat, Fliesen, Teppich
- EBK
- 2 Bäder
- Gäste WC
- Dach gereinigt und neu beschichtet
Lage
Hohenaverbergen ist wirklich ein charmanter und lebendiger Ort. Die abwechslungsreiche Landschaft mit dem Allertal, die Geest und die großen Waldbestände bieten viele Möglichkeiten zur Erholung in der Natur und für Outdoor-Aktivitäten.
Die Grundversorgung in diesem kleinen Ort ist durch Einrichtungen wie einem Supermarkt und einer Tankstelle absolut gegeben.
Selbst ein eigenes Gasthaus finden Sie in Hohenaverbergen, welches für Familienfeste oder zum sozialen Leben im Dorf beiträgt.
Mit fast 1.000 Einwohnern und den verschiedenen Aktivitäten der Freiwilligen Feuerwehr, des Heimatvereins, Ernteclubs und dem TSV Lohberg ist erkennbar, dass Gemeinschaft und Tradition eine sehr große Rolle spielen.
Trotz der ländlichen Idylle erreichen Sie Verden in nur wenigen Minuten. Auch die Autobahn Richtung, Bremen, Nordsee und Hannover ist nicht weit entfernt, und dieser Ort ist somit auch für Pendler eine absolut attraktive Ausgangssituation.
Sonstige Angaben
GELDWÄSCHE: Als Immobilienmaklerunternehmen ist die von Poll Immobilien GmbH nach § 2 Abs. 1 Nr. 14 und § 11 Abs. 1, 2 Geldwäschegesetz (GwG) dazu verpflichtet, bei der Begründung einer Geschäftsbeziehung die Identität des Vertragspartners festzustellen und zu überprüfen, bzw. sobald ein ernsthaftes Interesse an der Durchführung des Immobilienkaufvertrages besteht. Hierzu ist es erforderlich, dass wir nach § 11 Abs. 4 GwG die relevanten Daten Ihres Personalausweises festhalten (wenn Sie als natürliche Person handeln) – beispielsweise mittels einer Kopie. Bei einer juristischen Person benötigen wir eine Kopie des Handelsregisterauszugs, aus welchem der wirtschaftlich Berechtigte hervorgeht. Das Geldwäschegesetz sieht vor, dass der Makler die Kopien bzw. Unterlagen fünf Jahre aufbewahren muss. Als unser Vertragspartner haben Sie auch eine Mitwirkungspflicht nach § 11 Abs. 6 GwG.
HAFTUNG: Wir weisen darauf hin, dass die von uns weitergegebenen Objektinformationen, Unterlagen, Pläne etc. vom Verkäufer bzw. Vermieter stammen. Eine Haftung für die Richtigkeit oder Vollständigkeit der Angaben übernehmen wir daher nicht. Es obliegt daher unseren Kunden, die darin enthaltenen Objektinformationen und Angaben auf ihre Richtigkeit hin zu überprüfen. Alle Immobilienangebote sind freibleibend und vorbehaltlich Irrtümer, Zwischenverkauf- und Vermietung oder sonstiger Zwischenverwertung.
UNSER SERVICE FÜR SIE ALS EIGENTÜMER:
Planen Sie den Verkauf oder die Vermietung Ihrer Immobilie, so ist es für Sie wichtig, deren Marktwert zu kennen. Lassen Sie kostenfrei und unverbindlich den aktuellen Wert Ihrer Immobilie professionell durch einen unserer Immobilienspezialisten einschätzen. Unser bundesweites und internationales Netzwerk ermöglicht es uns, Verkäufer bzw. Vermieter und Interessenten bestmöglich zusammenzuführen.
Grundriss
Erdgeschoss
>
>
Dachgeschoss
>
>
Kellergeschoss
>
>
Adresse
27308 Kirchlinteln
Interessante Orte
Preis- und Lageinformationen
Preistrend für Bestandsimmobilien in Kirchlinteln