Diese schöne Doppelhaushälfte wird im wunderschönen Harlaching errichtet. Auf einem ca. 600 m² großen Grundstück ersellt der Bauherr ein Doppelhaus von dem eine Hälfte zum Verkauf steht. Die gesamte Nutzfläche der Doppelhaushälfte hat knapp 210m², womit genügen Platz für eine große Familie gegeben ist. Die gute und ruhige Lage macht aus dem Angebot eine einmalige Gelegenheit. Wir freuen uns auf Ihren Kontakt
KURZ VOR FERTIGSTELLUNG*Neubau-Doppelhaushälfte in sehr guter Lage*Nur noch eine Einheit verfügbar!*
Kastenseestr. 39,
81547 München
Auf Karte anzeigen
Finanzierungszertifikat
In nur zwei Minuten zu Ihrem persönlichen Finanzierungszertifkat.
Infos
| Haustyp | Doppelhaushaelfte |
|---|---|
| Etagenzahl | 4 |
| Wohnfläche ca. | 157 m2 |
| Nutzfläche | 50 m2 |
| Grundstücksfläche | 290 m2 |
| Bezugsfrei ab | Frühjahr 2025 |
| Zimmer | 5 |
| Schlafzimmer | 3 |
| Badezimmer | 2 |
| Garage/Stellplatz | Garage |
| Anzahl Garage/Stellplatz | 1 |
Kosten
| Kaufpreis |
1.950.000 € |
|---|---|
| Preis für Garage/Stellplatz | 30.000 € |
| Provision |
3,57% inkl. gesetzlicher MwSt. 3,57 % Käuferprovision inkl. MwSt. verdient und fällig mit Beurkundung des notariellen Kaufvertrages. Der Immobilienmakler hat einen provisionspflichtigen Maklervertrag mit dem Verkäufer in gleicher Höhe abgeschlossen. |
Finanzierungsrechner:
Kaufpreis:
600.000 €
Eigenkapital:
600.000 €
Monatliche Rate
0 €
Effektiver Jahreszins
0 %
Sollzinsbindung
10 Jahre
Bausubstanz & Energieausweis
| Baujahr | 2025 |
|---|---|
| Bauphase | Haus im Bau |
| Objektzustand | Erstbezug |
| Qualität der Austattung | Gehoben |
| Heizungsart | Wärmepumpe |
| Wesentliche Energieträger | Strom |
| Energieausweis | liegt zur Besichtigung vor |
Beschreibung des Objekts
Ausstattung
- Neubau Doppelhaushälfte
- 5 Zimmer
- 2 Bäder
- Gäste WC
- 3 Schlafzimmer
- ca. 210m² Wohn-/Nutzfläche
- ca. 300m² Grund je Haushälfte
- großzügiger Hobbyraum als Wohnraum ausgebaut
- Fliesen und Parkett (z.B. Landhausdielen etc.)
- hochwertigste Badarmaturen
- Fußbodenheizung
- Wärmepumpe
- 3 Scheiben Verglasung
- 1 Einzelgarage und 1 Stellplatz davor
Lage
Das Grundstück, auf dem diese schöne Doppelhaushälfte errichtet wird, liegt parallel zur Tegernseer Landstraße, in einer ruhigen und freundlichen Gegend.
Alle Annehmlichkeiten des täglichen Bedrafs befinden sich in unmittelbarer Nähe. Die öffentlichen Verkehrmittel sind in wenigen Gehminuten zu erreichen.
Kommen Sie auf uns zu und wir vereinbaren gerne eine Besichtigung.
Sonstige Angaben
Besichtigungen:
Sie können diese traumhafte Immobilie nach vorheriger Absprache jederzeit mit uns besichtigen.
Für weitergehende Information und ein erstes Kennenlernen laden wir Sie gerne in unsere Räumlichkeiten in der Hohenzollernstr. 31, 80801 München ein.
Das Team der BPL freut sich auf Sie.
Hinweise:
Die vorstehenden Informationen stammen vom Eigentümer. Die Fa. BPL Immobilien GmbH kann für deren Richtigkeit und Vollständigkeit keine Haftung übernehmen.
Unsere Informationen sind vertraulich und nur für den Empfänger bestimmt.
Dieses Exposé kann Ihnen nur eine vage Vorstellung von dem oben beschriebenen Wohnobjekt geben. Nutzen Sie deshalb die Möglichkeit das Objekt unverbindlich zu besichtigen.
Finanzierung:
Wir beraten Sie gerne kompetent und schnell.
Auf Wunsch stellen wir für Sie den Kontakt zu einem Baufinanzierungsspezialisten her.
Angebote bleiben unverbindlich.
Grundriss
Grundriss Erdgeschoss
>
>
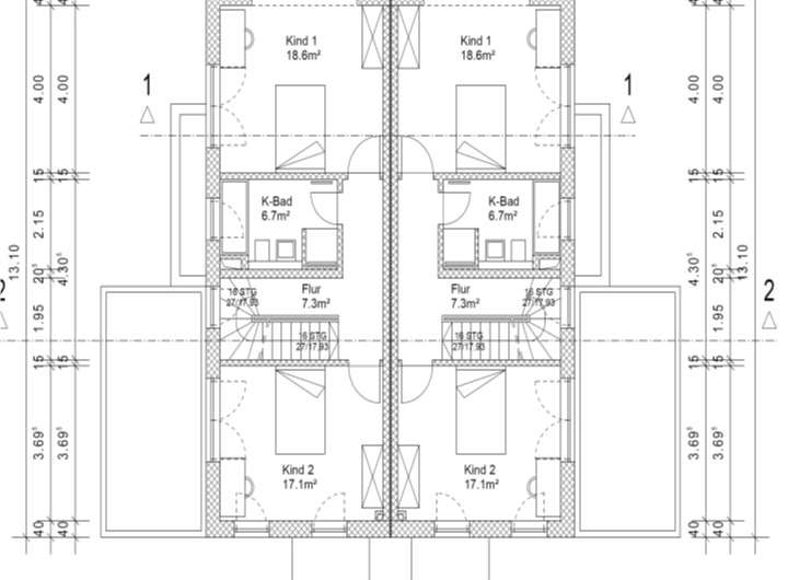
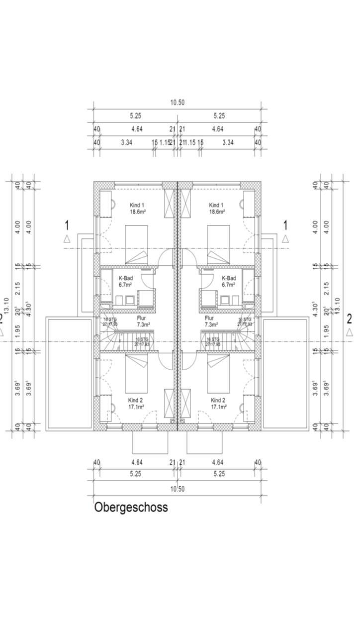
Grundriss Obergeschoss
>
>
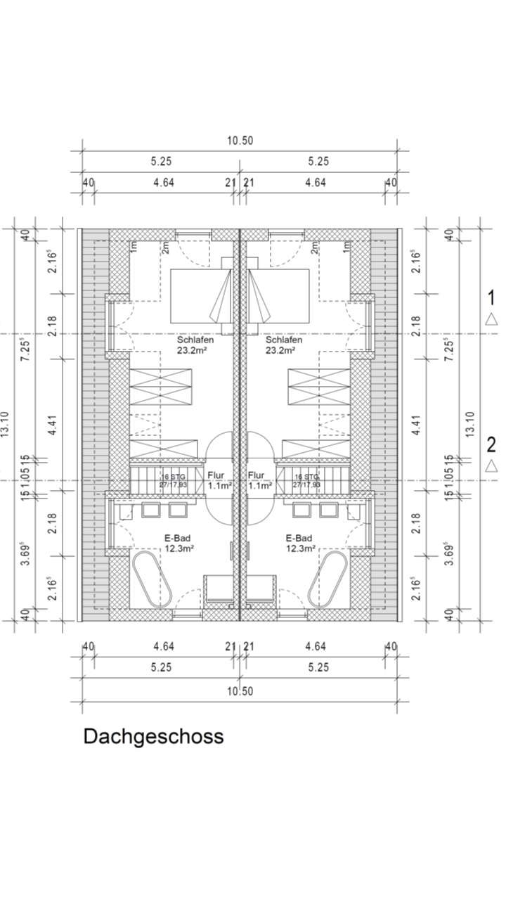
Grundriss Dachgeschoss
>
>
Grundriss Untergeschoss
>
>
Adresse
Kastenseestr. 39, 81547 München
Interessante Orte
Preis- und Lageinformationen
Preistrend für Bestandsimmobilien in Untergiesing