Sie erreichen das Anwesen über ein schmiedeeisernes, doppelflügeliges Eingangstor, das sich automatisch öffnen lässt. Bereits die Auffahrt verleiht der Villa eine herrschaftliche Anmutung. Diese exklusive Immobilie steht auf einem ca. 1.400 m² großen Eigenlandgrundstück, erweitert durch ein kleines Waldgrundstück von ca. 2.710 m², welches direkt seitlich der Villa verläuft und einen weiten Blick über Felder und Wiesen bietet. Ein ideales Anwesen für Familien mit besonderen Anforderungen an die Wohn- und Lebensqualität.
Die Gesamtwohnfläche von ca. 270 m² sowie die wohnlich ausgebaute Nutzfläche von ca. 145 m² bietet Platz für fünf Zimmer, drei Bäder, eine Garage mit genügend Fläche für drei Fahrzeuge, einen separaten Bereich für Gäste / Au-pair, einen Wellness- / Sportbereich mit Dampfsauna in dem Souterrain und zwei Terrassenebenen.
Mit großem Aufwand und viel Liebe zu Details wurde die Villa in den Jahren 2021/2022 im Wohnbereich unter Verwendung sehr hochwertiger Materialien und Ausstattung um- und ausgebaut.
Top Villa mit ca. 413 m² Wohn-/ Nutzfl.
21227 Bendestorf
Die vollständige Adresse der Immobilie erhalten Sie vom Anbieter.
Auf Karte anzeigen
Die vollständige Adresse der Immobilie erhalten Sie vom Anbieter.
Finanzierungszertifikat
In nur zwei Minuten zu Ihrem persönlichen Finanzierungszertifkat.
Infos
| Haustyp | Villa |
|---|---|
| Wohnfläche ca. | 270 m2 |
| Nutzfläche | 143,6 m2 |
| Grundstücksfläche | 4.110 m2 |
| Bezugsfrei ab | nach Vereinbarung |
| Zimmer | 11 |
| Schlafzimmer | 3 |
| Badezimmer | 3 |
| Garage/Stellplatz | Garage |
| Anzahl Garage/Stellplatz | 3 |
Kosten
| Kaufpreis |
2.890.000 € |
|---|---|
| Provision |
3,57 % inkl. MwSt. |
Finanzierungsrechner:
Kaufpreis:
600.000 €
Eigenkapital:
600.000 €
Monatliche Rate
0 €
Effektiver Jahreszins
0 %
Sollzinsbindung
10 Jahre
Bausubstanz & Energieausweis
| Baujahr | 2003 |
|---|---|
| Heizungsart | Zentralheizung |
| Wesentliche Energieträger | Gas |
| Energieausweis | liegt vor |
| Energieausweistyp | Verbrauchsausweis |
| Energieverbrauchskennwert | 74,2 kWh/(m²*a) |
| Energieeffizienzklasse | B |
74,2
kWh/(m²*a)
Energieeffizienzklasse B
- A+
- A
- B
- C
- D
- E
- F
- G
- H
- 0
- 25
- 50
- 75
- 100
- 125
- 150
- 175
- 200
- 225
- >250
Beschreibung des Objekts
Ausstattung
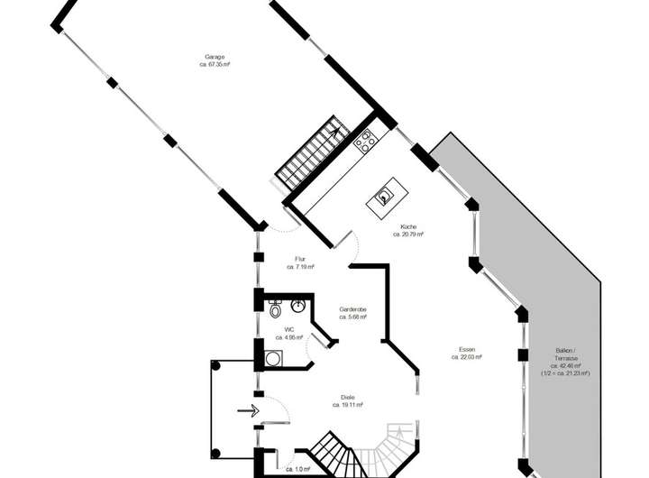
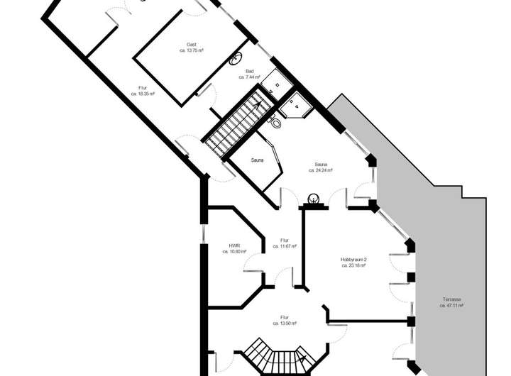
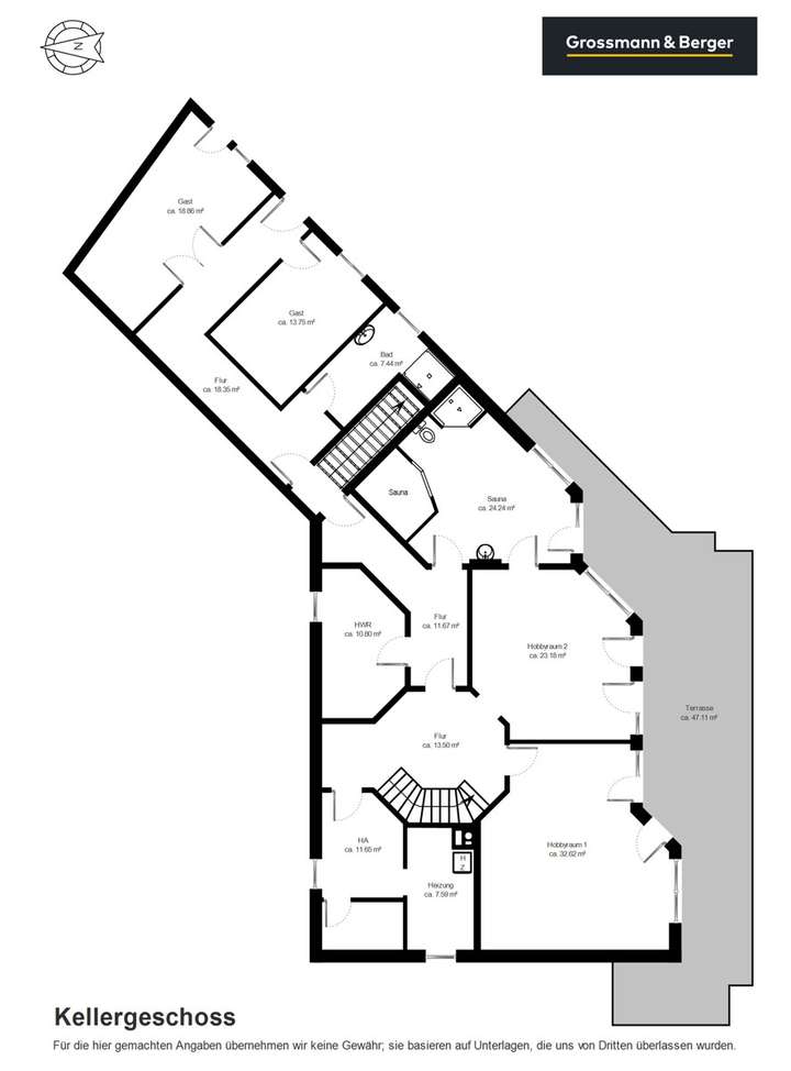
Die eindrucksvolle Eingangstür führt in das großzügige Entrée und bietet einen direkten Blick auf die Galerie des lichtdurchfluteten Obergeschosses sowie in den imposante Wohn-/Essbereich der Villa. Das Wohn- und Esszimmer besticht mit einem edlen Kamin und ist der zentrale Raum für die Familie und geht über in die große offene Wohnküche mit ihrem klaren Design, ausgestattet mit den hochwertigsten technischen Geräten. Über die bodentiefen Fenster gelangen Sie auf die großzügige Veranda und genießen dort den herrlichen Weitblick. Ein modernes Gäste-WC und eine versteckte Garderobe runden das Erdgeschoss ab. Selbstverständlich gelangen Sie über das Erdgeschoss in die großzügige Garage, wo mehrere Fahrzeuge Platz finden. Eine Treppe führt Sie auf die Galerie des Obergeschosses. Ein komfortables Masterschlafzimmer mit Blick in die Natur bietet ein exklusives Bad en Suite mit vielen hochwertigen Details. Zwei weitere Schlafzimmer und ein weiteres Duschbad stehen zudem zur Verfügung. Im Souterrainbereich befindet sich eine kleine Fitnessoase der Erholung. Für Gäste/Au-pair steht ein guter wohnlich ausgebauter Bereich mit zwei Zimmern sowie einem separaten Eingang zur Verfügung.
Lage
Willkommen in Bendestorf – Ihrem luxuriösen Rückzugsort, der Dorfleben und Naturverbundenheit perfekt vereint. Diese exquisite Immobilie besticht durch ihre erstklassige Lage in einem charmanten Luftkurort, ideal für all jene, die das Besondere schätzen – und besonders geeignet für Prominente, die Privatsphäre und Exklusivität suchen. Die hervorragende Anbindung an den öffentlichen Nahverkehr ist durch die nahegelegene Bushaltestelle Bendestorf Freibad gewährleistet. Einkaufsmöglichkeiten bietet ein Supermarkt in unmittelbarer Nähe, während Familien die Nähe zu Waldkindergarten und Grundschule zu schätzen wissen. Medizinische Versorgung ist durch das nahegelegene Krankenhaus Buchholz gesichert. Die Autobahnauffahrt zur A7 ermöglicht eine schnelle Verbindung nach Hamburg oder Hannover, und der Hamburg Airport ist ebenfalls gut erreichbar. Genießen und entdecken Sie die kulinarische Vielfalt in den umliegenden Orten Jesteburg, Hittfeld und Buchholz, die mit exzellenten Restaurants aufwarten. Bendestorf bietet Ihnen ein luxuriöses Dorfleben mit der perfekten Balance zwischen Ruhe und erstklassiger Erreichbarkeit – ein perfekter Ort für Prominente, die das Beste aus beiden Welten suchen.
Grundriss
Kellergeschoss
>
>
Erdgeschoss
>
>
Dachgeschoss
>
>
Spitzboden
>
>
Adresse
21227 Bendestorf
Interessante Orte
Preis- und Lageinformationen
Preistrend für Bestandsimmobilien in Bendestorf