Zum Verkauf steht ein attraktives Einfamilienhaus aus dem Baujahr 1987. Aktuell teilen sich die insgesamt 11 Zimmer auf vier separate, voll vermietete Wohneinheiten auf. Jede Wohnung verfügt über mind. ein Duschbad und eine Küche. Das großzügige Grundstück umfasst eine Fläche von ca. 780 m² und bietet ausreichend Platz für vielseitige Nutzungsmöglichkeiten. Die Gesamtwohnfläche nach Neuaufteilung beträgt ca. 312 m².
Das Haus befindet sich in einer ruhigen Wohngegend an einer Einbahnstraße, die eine hohe Wohnqualität und Privatsphäre garantiert. Zur Immobilie gehört eine geräumige Garage mit angrenzender Werkstatt oder zusätzlicher Lagerfläche sowie drei weiteren Außenstellplätzen. Ein Highlight ist die große Gemeinschaftsterrasse, die zusammen mit dem gepflegten Gartenbereich zum Entspannen und Verweilen einlädt. Ein zusätzlicher Abstellraum im hinteren Bereich des Hauses bietet praktischen Stauraum für Gartengeräte, Fahrräder oder andere Utensilien.
Diese Immobilie kombiniert eine ruhige und begehrte Lage mit einer guten Anbindung an das städtische Leben und eignet sich ideal als Kapitalanlage, da sie bereits vollständig vermietet ist und somit sofortige Mieteinnahmen generiert.
Attraktives Anlageobjekt! 4 Whg. auf 310m² in einem EFH, voll vermietet.
23743 Grömitz
Die vollständige Adresse der Immobilie erhalten Sie vom Anbieter.
Auf Karte anzeigen
Die vollständige Adresse der Immobilie erhalten Sie vom Anbieter.
Finanzierungszertifikat
In nur zwei Minuten zu Ihrem persönlichen Finanzierungszertifkat.
Infos
| Haustyp | Einfamilienhaus |
|---|---|
| Etagenzahl | 2 |
| Wohnfläche ca. | 310 m2 |
| Grundstücksfläche | 780 m2 |
| Bezugsfrei ab | nach Vereinbarung |
| Zimmer | 11 |
| Garage/Stellplatz | Garage |
| Anzahl Garage/Stellplatz | 1 |
Kosten
| Kaufpreis |
479.000 € |
|---|---|
| Provision |
3,57% inkl. MwSt. |
Finanzierungsrechner:
Kaufpreis:
600.000 €
Eigenkapital:
600.000 €
Monatliche Rate
0 €
Effektiver Jahreszins
0 %
Sollzinsbindung
10 Jahre
Bausubstanz & Energieausweis
| Baujahr | 1987 |
|---|---|
| Objektzustand | Gepflegt |
| Heizungsart | Zentralheizung |
| Wesentliche Energieträger | Gas |
| Energieausweis | liegt vor |
| Energieausweistyp | Bedarfsausweis |
| Energieverbrauchskennwert | 160,5 kWh/(m²*a) |
| Energieeffizienzklasse | F |
160,5
kWh/(m²*a)
Energieeffizienzklasse F
- A+
- A
- B
- C
- D
- E
- F
- G
- H
- 0
- 25
- 50
- 75
- 100
- 125
- 150
- 175
- 200
- 225
- >250
Beschreibung des Objekts
Ausstattung
Dieses beeindruckende Haus in leichter Hanglage besticht durch seine hochwertige Bauweise und Ausstattung. Errichtet auf einem stabilen Betonstreifenfundament und ausgeführt in moderner Holztafelbauweise, bietet das Gebäude solide und langlebige Strukturen. Der Keller verfügt über eine robuste Stahlbetondecke, die zusätzliche Stabilität und Sicherheit gewährleistet. Das stilvolle Walmdach fügt sich harmonisch in das Gesamtbild des Hauses ein und verleiht ihm eine elegante Optik.
Die Fenster des Hauses sind dreifach isolierverglast und bestehen aus einer hochwertigen Holz-Aluminium-Kombination, die sowohl hervorragende Wärmedämmung als auch eine ansprechende Ästhetik bietet. Die Gas-Zentralheizung sorgt für eine effiziente und gleichmäßige Wärmeverteilung in allen Wohnräumen, was den Komfort für die Bewohner maximiert.
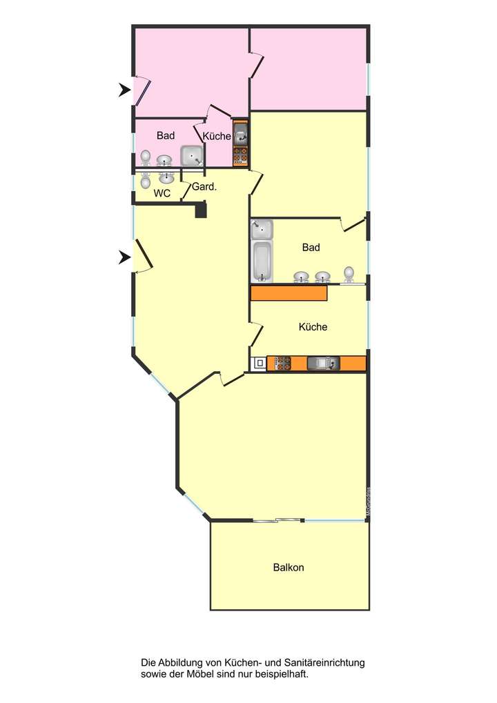
Aufteilung:
1. **Wohnung 1 (EG)**: 2 Zimmer, ca. 35 m²
2. **Wohnung 2 (KG)**: 3 Zimmer, ca. 67 m²
3. **Wohnung 3 (EG)**: 3 Zimmer, ca. 100 m² + Balkon
4. **Wohnung 4 (KG)**: 3 Zimmer, ca. 70 m² + Terrasse
Diese Immobilie bietet eine ausgezeichnete Investitionsmöglichkeit mit stabilen Einnahmen und einer hochwertigen Bauqualität, die sowohl den Bedürfnissen der Bewohner als auch den Erwartungen der Investoren gerecht wird.
Bitte haben Sie Verständnis, dass keine Innenbilder im Exposé enthalten sind. Aufgrund der Vermietung möchten wir die Privatsphäre der Mieter schützen.
Lage
Das Objekt liegt zentral und dennoch ruhig im Zentrum von Grömitz an einer schmalen Einbahnstraße. Einkaufsmöglichkeiten erreichen Sie fußläufig in wenigen Minuten. Der feinsandige Strand befindet sich nur circa einen Kilometer entfernt.
Grömitz ist schon seit 1813 Seebad und damit eines der ältesten an der Ostsee. Der über 8.000 Einwohner beherbergende Ort liegt im Herzen der Lübecker Bucht etwa 30 km nördlich von Timmendorfer Strand und ist leicht über die Autobahn A 1 zu erreichen. Nach St. Peter-Ording und Westerland ist das Ostseeheilbad an der Sonnenseite der drittwichtigste Ferienort in Schleswig Holstein. Grömitz, zweifache Preisträgerin im Bundeswettbewerb "Familienferien in Deutschland", lädt mit der wohl schönsten Kur- und Strandpromenade von über 3,5 km Länge und einem breiten, feinsandigen 8 km Sandstrand zum Verweilen ein. Der Yachthafen zählt neben dem von Heiligenhafen zu den größten gemeindebetriebenen Marinas. Grömitz verfügt über eine der längsten Seebrücken Deutschlands mit Schiffsverkehr, einen 27-Loch Golfplatz, einen Hundestrand, einen Behinderten-Badesteg und einen FKK-Bereich inmitten von Dünen. Mit dem Kurpark, vielen gemütlichen Kneipen, schicken Restaurants und Cafés, sowie der Fußgängerzone und dem Zoo Arche Noah erfüllt Grömitz alle Anforderungen an ein modernes Ostseebad und zieht deshalb ca. 400.000 Tagesbesucher mit jährlich 1,3 Millionen Übernachtungen nach Grömitz.
Sonstige Angaben
**Mietkonditionen**
Die Pauschalmiete für das gesamte Haus beträgt 3.656 € pro Monat, was jährliche Mieteinnahmen von 43.872 € ergibt. Die Miete teilt sich wie folgt auf die einzelnen Wohneinheiten auf:
1. **Wohnung 1 (EG)**: Warmmiete 550 € monatlich
2. **Wohnung 2 (KG)**: Warmmiete 1.050 € monatlich
3. **Wohnung 3 (EG)**: Warmmiete 1.000 € monatlich
4. **Wohnung 4 (KG)**: Warmmiete 1.056 € monatlich
Alle angegebenen Mietpreise verstehen sich als Warmmiete. Sämtliche Nebenkosten sind hier bereits in der Miete enthalten.
Über weitere Vermietungsmöglichkeiten oder eine andere Nutzung, beraten wir Sie gerne.
Weitere Informationen erhalten Sie gerne per Telefon, per Mail oder im Rahmen einer persönlichen Besichtigung.
Grundriss
Grundriss Erdgeschoss
>
>
Grundriss Keller
>
>
Adresse
23743 Grömitz
Interessante Orte
Preis- und Lageinformationen
Preistrend für Bestandsimmobilien in Grömitz