Das Beste aus zwei Welten gekonnt vereint
Individuelle Planungen, die zu den eigenen
Vorstellungen und dem vorhandenen Budget passen. Eine massive Bauweise, die über
Generationen hinweg Bestand hat. Höchster
Wohnkomfort in einem wohngesunden und
angenehmen Raumklima. Eine hochwertige
und moderne Ausstattung mit intelligenter
Haustechnik. Umfassender Service rund um
den Bau Ihres Traumhauses. Wer sich für ein
EINSTEINHAUS entscheidet, der profitiert
von zahlreichen Vorteilen – und das von der
ersten Beratung bis hin zur Fertigstellung
des Hauses und darüber hinaus.
Massives Einfamilienhaus in Fertigbauweise mit Keller von EinsteinHaus.
55583 Bad Münster am Stein-Ebernburg
Die vollständige Adresse der Immobilie erhalten Sie vom Anbieter.
Auf Karte anzeigen
Die vollständige Adresse der Immobilie erhalten Sie vom Anbieter.
Finanzierungszertifikat
In nur zwei Minuten zu Ihrem persönlichen Finanzierungszertifkat.
Infos
| Haustyp | Einfamilienhaus |
|---|---|
| Etagenzahl | 2 |
| Wohnfläche ca. | 170 m2 |
| Nutzfläche | 225 m2 |
| Grundstücksfläche | 440 m2 |
| Bezugsfrei ab | 2025 |
| Zimmer | 7 |
| Schlafzimmer | 3 |
| Badezimmer | 1 |
| Anzahl Garage/Stellplatz | 3 |
Kosten
| Kaufpreis |
587.900 € |
|---|---|
| Provision | Nein |
Finanzierungsrechner:
Kaufpreis:
600.000 €
Eigenkapital:
600.000 €
Monatliche Rate
0 €
Effektiver Jahreszins
0 %
Sollzinsbindung
10 Jahre
Bausubstanz & Energieausweis
| Bauphase | Haus in Planung (projektiert) |
|---|---|
| Qualität der Austattung | Gehoben |
| Heizungsart | Wärmepumpe |
| Wesentliche Energieträger | Strom |
Beschreibung des Objekts
Ausstattung
Das alles ist für Sie drin
Individuelle Architektenplanung inklusive Statik
Bodengutachten
Bodenplatte und Estrich
Lieferung und Montage
ESH-Klimawand
Betondecken
Dachstuhl mit Dacheindeckung und Entwässerung
Stahlbetontreppen
Haustür
Dreifach verglaste Fenster inkl. elektrischen Alurollläden
Elektroinstallation
Luft-Wasser-Wärmepumpe inkl. Fußbodenheizung
Sanitärobjekte und Armaturen
Bodenbeläge, Fliesen und Innentüren
Malerarbeiten und Tapeten
Bezugsfertige Hausübergabe inklusive Endreinigung
Lage
Das Grundstück befindet sich im ruhigen Wohngebiet in Ebernburg mit Blick auf den Rotenfels.
Bahnhof an der Bahnstrecke Saarbrücken-Mainz.
Schulen und Kindergarten vor Ort.
Wohnen wo andere Meschen Urlaub und Kuren machen.
Sonstige Angaben
Das Angebotene Haus ist Einzugsfertig.
Grundrisse sind nach Ihren Wünschen änderbar.
Durch Eigenleistung wie Verlegung von Fußböden und Wandgestaltung verringert sich der Kaufpreis um ca.25.000€
Die Grunderwerbsteuer von 4500,00€ wird nur für das Grundstück fällig nicht wie in der Anzeige angegeben für den gesamten Projektpreis.
Weitere Dokumente
ESH_Baubeschreibung_012024_finESH_Imagebroschuere 01_2024_fi
ESH_Hauskatalog_082024_final
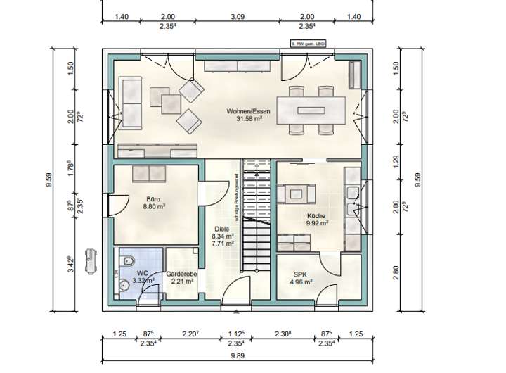
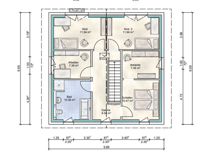
Grundriss
Screenshot 2024-07-18 092708
>
>
Screenshot 2024-07-18 092734
>
>
Screenshot 2024-07-18 092633
>
>
Screenshot 2024-07-18 092807
>
>
Adresse
55583 Bad Münster am Stein-Ebernburg
Interessante Orte
Preis- und Lageinformationen
Preistrend für Bestandsimmobilien in Bad Münster am Stein-Ebernburg