Im ländlichen Millingen befindet sich diese ehemalige Bauernkate. Ursprünglich in 1908 massiv gebaut, aber in 1980 und nochmals in 2011 modernisiert.
In 2011 sind einige Fenster erneuert, Wärmepumpe, Strom und Wasserleitungen neu, Wände rausgenommen, neue Bodenbeläge, Fußbodenheizung mit gedämmte Bodenplatte unten und oben eingebaut, neue Innentüren, neue Bäder und Küche, neue Decken, Dach gegen Holzwurm behandelt, usw.
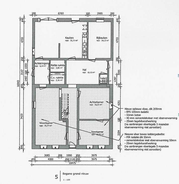
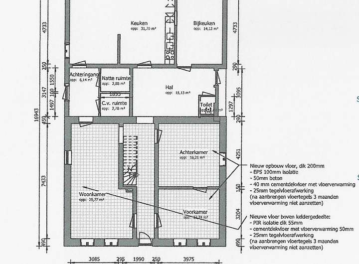
Aufteilung:
Flur mit schöne, originale Fliesen. Rechts sind zwei Schlaf-oder Hobbyzimmer. Links das Wohnzimmer. Die frei Zimmer haben Fußbodenheizung.
Zweiter Flur mit Zugang zur Hauswirtschaftsraum und große Küche mit Spülinsel und Zugang zur Terrasse/Garten.
Die Küche aus 2011 enthält. Smeg Dampfgarer, Backofen, Spülmaschine, Ceran, Abzugshaube, Kühlschrank, Cooker und Spülinsel.
Hinter der Küche sind noch einen Flur, Bad und kleiner Technikraum. Erdgeschoss komplett mit Fußbodenheizung.
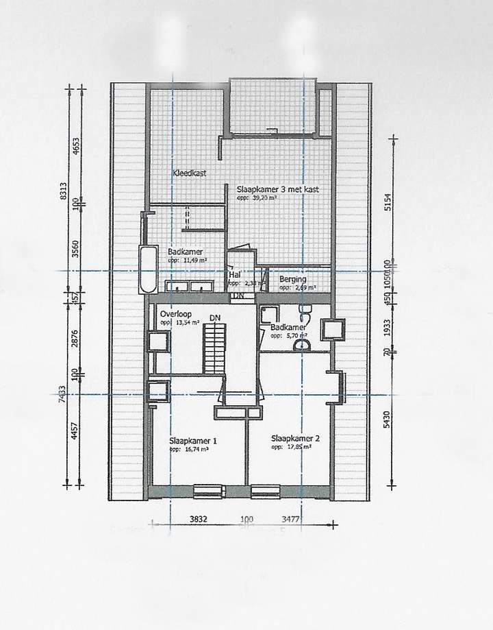
Obergeschoss:
Flur, Elternschlafzimmer mit Balkon und Ankleide.
Badezimmer mit ebenerdige Dusche, Badewanne, Wc und doppelter Waschtisch.
3 Kinderschlafzimmer und ein Kinderbad mit Waschtisch, WC und evtl. Platz für eine zweite Dusche.
Obergeschoss komplett mit Fußbodenheizung.
Dachboden über Ziehtreppe.
Keller: Unter dem Wohnzimmer befindet sich einen Keller. Hier ist auch die Wärmepumpe untergebracht. (Hydro-Cube)
Außen:
Großer Garten mit Obstbäume, Rasen, Zaun, Garage (ca 15x3M), Nebengebäude (Tiny-House) momentan als Scheune genutzt.
Holzgartenhaus und gemauerte Hunde-Scheune ganz hinten.
3-kammer Biokläranlage (3x Jährlich gewartet (a 90eu), 1x in 5 Jahre entleeren.
Gas zum kochen: Flaschen 33eu/M.
Strom allgemein und Wärmepumpe: 450eu/M.
Ländliche Alleinlage: Modernisierte Kate mit Nebengebäuden.
Bruchstraße 21,
46459 Rees
Auf Karte anzeigen
Finanzierungszertifikat
In nur zwei Minuten zu Ihrem persönlichen Finanzierungszertifkat.
Infos
| Haustyp | Einfamilienhaus |
|---|---|
| Etagenzahl | 3 |
| Wohnfläche ca. | 300 m2 |
| Nutzfläche | 100 m2 |
| Grundstücksfläche | 2.330 m2 |
| Zimmer | 6 |
| Schlafzimmer | 5 |
| Badezimmer | 3 |
| Garage/Stellplatz | Garage |
| Anzahl Garage/Stellplatz | 1 |
Kosten
| Kaufpreis |
659.000 € |
|---|---|
| Provision |
1,8 % vom Käufer und vom Verkäufer, je |
Finanzierungsrechner:
Kaufpreis:
600.000 €
Eigenkapital:
600.000 €
Monatliche Rate
0 €
Effektiver Jahreszins
0 %
Sollzinsbindung
10 Jahre
Bausubstanz & Energieausweis
| Baujahr | 1908 |
|---|---|
| Letzte Sanierung | 2012 |
| Bauphase | Haus fertig gestellt |
| Objektzustand | Modernisiert |
| Qualität der Austattung | Normal |
| Heizungsart | Fußbodenheizung |
| Wesentliche Energieträger | Erdwärme |
Beschreibung des Objekts
Grundriss
EG nw
>
>
OG nw
>
>
Adresse
Bruchstraße 21, 46459 Rees
Interessante Orte
Preis- und Lageinformationen
Preistrend für Bestandsimmobilien in Rees