Dieses einzigartige Baugrundstück, direkt am attraktiven Baugebiet „Zum Burghof“ bietet den Neubau von 2 Mehrfamilienhäusern mit Tiefgarage. Die Parzelle erstreckt sich über ca. 2.124m² und präsentiert sich als perfekte Basis für zukünftige Wohnträume. Ein Top Investitionsmöglichkeit!
Dieses einzigartige Grundstück wird inklusive Vorbescheid vom 15.05.2024 angeboten:
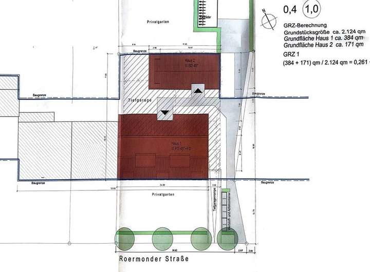
Haus 1
- Neubau eines Mehrfamilienhauses
- Kellergeschoss = 203,76qm
- Erdgeschoss = 384qm
- 1. Obergeschoss = 384qm
- Dachgeschoss = 24mx16m = 384qm + 24mx16mx0,5 = 332,52qm
- Spitzboden = 204,24qm
Haus 2
- Neubau eines Mehrfamilienhauses
- Kellergeschoss = 171qm
- Erdgeschoss = 171qm
- 1. Obergeschoss = 171qm
- Dachgeschoss = 16,02mx9m= 144,18qm + 16,02mx11,71mx0,5 = 144,18qm
Tiefgarage mit 17 Stellplätzen
Alle vorgenommenen Planungen sind im Kaufpreis inbegriffen.
Für weiterführende Unterlagen und detaillierte Informationen stellen wir Ihnen gerne zur Verfügung. Nutzen Sie diese einmalige Gelegenheit, um Ihr Bauvorhaben zu realisieren!
Waldniel - Zwei projektierte Mehrfamilienhäuser inklusive Tiefgarage
41366 Schwalmtal
Die vollständige Adresse der Immobilie erhalten Sie vom Anbieter.
Auf Karte anzeigen
Die vollständige Adresse der Immobilie erhalten Sie vom Anbieter.
Finanzierungszertifikat
In nur zwei Minuten zu Ihrem persönlichen Finanzierungszertifkat.
Infos
| Vermarktungsart | Kaufen |
|---|---|
| Grundstücksfläche | 2.124 m2 |
| Erschließung | Erschlossen |
| Empfohlene Nutzung | Mehrfamilienhaus |
| Verfügbar ab | sofort |
Kosten
| Miete pro Jahr |
850.000 € |
|---|---|
| Provision |
4% |
Finanzierungsrechner:
Kaufpreis:
600.000 €
Eigenkapital:
600.000 €
Monatliche Rate
0 €
Effektiver Jahreszins
0 %
Sollzinsbindung
10 Jahre
Beschreibung des Objekts
Lage
Der Ortsteil Waldniel gehört zur Gemeinde Schwalmtal im Kreis Viersen und dem Regierungsbezirk Düsseldorf.
Die Gemeinde bietet neben einer guten Infrastruktur und einer grünen und ruhigen Lage, auch jegliche Geschäfte des täglichen Bedarfs, den Waldnieler Ortskern, Kindergärten sowie moderne Schulzentrum binnen weniger Minuten.
Die nahe gelegene A52 bietet 15 km östlich den Anschluss an die niederländische Grenze und 40 km westlich an Düsseldorf.
Sonstige Angaben
Die Käufer-Provision beträgt 4 % vom Kaufpreis zzgl. der gesetzlich gültigen MwSt. Die Provision ist verdient und fällig mit notarieller Beurkundung.
__________________________________________________________________
Alle Angaben und Daten wie Maße und Zustand des Objektes wurden uns vom jeweiligen Eigentümer/Verkäufer bekannt gegeben. Eine Haftung für die Gewähr und Richtigkeit wird jedoch nicht übernommen. Das Angebot ist freibleibend. Irrtum und Zwischenvermietung bleiben vorbehalten.