Ein herrlich gelegenes Grundstück am Fuße des Auerbacher Schlosses, dem sogenannten "Goldstaubviertel", mit genehmigtem Bauantrag für ein architektonisches Neubau-Highlight. Eine einzigartige Villa als Zweifamilienhaus oder auch als Zuhause für eine Familie gestaltbar, in wunderschöner Hanglage, eingereiht in der exklusiven Wohngegend Bensheim-Auerbach, kann hier entstehen. Die Planung sieht ein ganz besonderes, hoch modernes freistehendes Gebäude mit anspruchsvoller Architektur vor.
Die Highlights sind:
• ein einmalig zu erwerbendes Baugrundstück mit 288 m² Größe in gefragter Höhenlage von Bensheim-Auerbach
• genehmigter Bauantrag mit exklusiver Architektenplanung für ein freistehendes Zweifamilienhaus mit bis zu einer geplanten Wohnfläche von ca. 184 m² liegt vor
• alternativ auch als Neubauvilla für eine Familie gestaltbar
• Garage mit bis zu 4 Kfz-Stellplätzen
• optional erweiterbar um das südlich angrenzende Grundstück mit 639 m² Größe für kombiniert in Summe bis zu 5 Wohneinheiten
• provisionsfrei für den Käufer
Dieses 288 m² große Grundstück liegt am Fuße des Auerbacher Schlosses und reiht sich ein in eine architektonisch durch einerseits Neubauvillen und andererseits historischem Kulturdenkmal harmonisch miteinander vereinten Wohnviertel. Ein schönes Zusammenspiel von Villen nach Plänen von Heinrich Metzendorf, historischen Baudenkmalen entstanden um 1900 und hochwertig moderner freistehender Villenbauweise der Neuzeit. Eine exklusive Gelegenheit.
Der Reiz des Grundstückes liegt an der leichten Höhenlage am Schlossberg und dem erhöhten Zugang für ein Beletage Wohngefühl auch im Erdgeschoss. Durch das gestandene, teilweise mit üppigem Baumbestand bewachsene Wohngebiet, profitiert dieses Grundstück von Ruhe und visueller Distanz.
Das Grundstück steht leer, ohne Altbestand eines Gebäudes und wartet nur darauf entsprechend der Baugenehmigung und Architektenplanung zum Leben erweckt zu werden. Die Herstellung des Neubaus ist nicht inkludiert im Preis.
Das projektierte und genehmigte Neubauvorhaben zeichnet sich durch eine hoch moderne, anspruchsvolle Architektur aus.
Optional kann dieses Grundstück um das südlich, direkt angrenzende Grundstück mit 639 m² Fläche erweitert werden. Auch hier liegt eine Baugenehmigung vor, für ein exklusives Dreifamilienhaus.
GENEHMIGTE BEBAUUNG
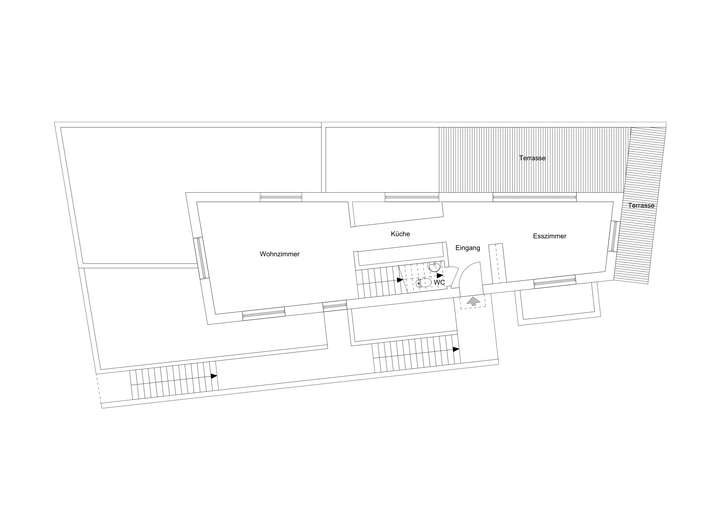
Das genehmigte Bauvorhaben sieht zwei Wohneinheiten vor. Die m² Angaben entsprechen der Genehmigungsplanung, Abweichungen zu einer Ausführungsplanung sind möglich:
Wohneinheit im Erdgeschoss:
Ca. 71 m² projektierte Wohnfläche verteilt auf einen großzügigen Wohn-Ess-Bereich mit zwei Terrassen, einer offenen Küche, Hauswirtschaftsraum, Bad und einem Schlafzimmer mit begehbarem Lichthof.
Wohneinheit im Ober- und Dachgeschoss:
Ca. 113 m² projektierte Wohnfläche verteilt auf zwei Ebenen mit schönen Außenplätzen. Auf der ersten Ebene Ankommen, Wohnen, Essen und Kochen mit Sonnenterassen über insgesamt 30 m² Größe. Auf der zweiten Ebene im Dachgeschoss befinden sich zwei Schlafzimmer, eines davon mit einem Nord-Balkon und das Bad.
Ergänzt wird das Raumangebot durch eine Garage mit 4 Kfz-Stellplätzen, Platz für Fahrräder, Technik und 2 Kellerräume.
Schlossberg Baugrundstück mit vorliegender Baugenehmigung, Architektenplanung für eine Neubauvilla
64625 Bensheim
Die vollständige Adresse der Immobilie erhalten Sie vom Anbieter.
Auf Karte anzeigen
Die vollständige Adresse der Immobilie erhalten Sie vom Anbieter.
Finanzierungszertifikat
In nur zwei Minuten zu Ihrem persönlichen Finanzierungszertifkat.
Infos
| Vermarktungsart | Kaufen |
|---|---|
| Grundstücksfläche | 288 m2 |
| Verfügbar ab | sofort |
Kosten
| Miete pro Jahr |
350.000 € |
|---|---|
| Provision | Nein |
Finanzierungsrechner:
Kaufpreis:
600.000 €
Eigenkapital:
600.000 €
Monatliche Rate
0 €
Effektiver Jahreszins
0 %
Sollzinsbindung
10 Jahre
Beschreibung des Objekts
Lage
Das Grundstück liegt in einem der beliebtesten und stilvollsten Wohnviertel der hessischen Bergstraße, umgeben von Kulturdenkmalen, im Luftkurort Bensheim-Auerbach. Ein Ort, bekannt für Weinanbau, ein kulturell ausgewogenes Angebot und eine attraktive aktive Umgebung. Ob Spaziergänge im Staatspark Fürstenlager, Wander- und Fahrradwege zum Auerbacher Schloss, in den Weinbergen oder im Ruhe spendenden Wald - all das bietet die direkte Umgebung und macht das Wohnerlebnis zu einem ganz Besonderen. Der Kern geprägt von Gässchen mit Fachwerkhäusern, hervorragender Gastronomie und urigen Plätzen.
Ein Steinwurf entfernt bietet die Umgebung über die Grenzen hinaus bekannte Schulen (Altes Kurfürstliches Gymnasium, Schillerschule), eine zum Verweilen und Kauf anregende Innenstadt, als auch ein vielfältig kulturelles Angebot vom städtischen Theater bis hin zum weitbekannten Winzerfest.
Richtung Norden liegt Darmstadt nur 20 Fahrminuten entfernt und unwesentlich weiter der Frankfurter Flughafen, östlich der Odenwald und Richtung Süden führt der Weg über Weinheim nach Heidelberg oder Mannheim.
Top angebunden durch das Autobahnnetz, die Bahnstrecke Frankfurt Main - Heidelberg oder auch Shuttleangebote an den Frankfurter Flughafen.
Sonstige Angaben
HINWEISE:
Alle Angaben sind ohne Gewähr und basieren ausschließlich auf Informationen, die uns von unserem Auftraggeber übermittelt wurden. Wir übernehmen keine Haftung für die Vollständigkeit, Richtigkeit und Aktualität dieser Angaben. Es obliegt dem Kunden die Angaben und Informationen zum Objekt auf Richtigkeit zu überprüfen. Eine Haftung für die inhaltliche Vollständigkeit und Richtigkeit der Angaben wird nur im Falle des Vorsatzes oder der groben Fahrlässigkeit übernommen. Irrtum und Zwischenverkauf vorbehalten. Die Grunderwerbsteuer, Notar- und Grundbuchkosten sind vom Käufer zu tragen. Auf Wunsch stehen wir Ihnen mit weiteren Informationen zum Objekt und zum Eigentümer gerne zur Verfügung. Die Besichtigung kann jederzeit nach Vereinbarung mit einem unserer Mitarbeiter/Beauftragten erfolgen.
Grundriss
Erdgeschoss
>
>
1. Obergeschoss
>
>
Dachgeschoss
>
>
Garage
>
>