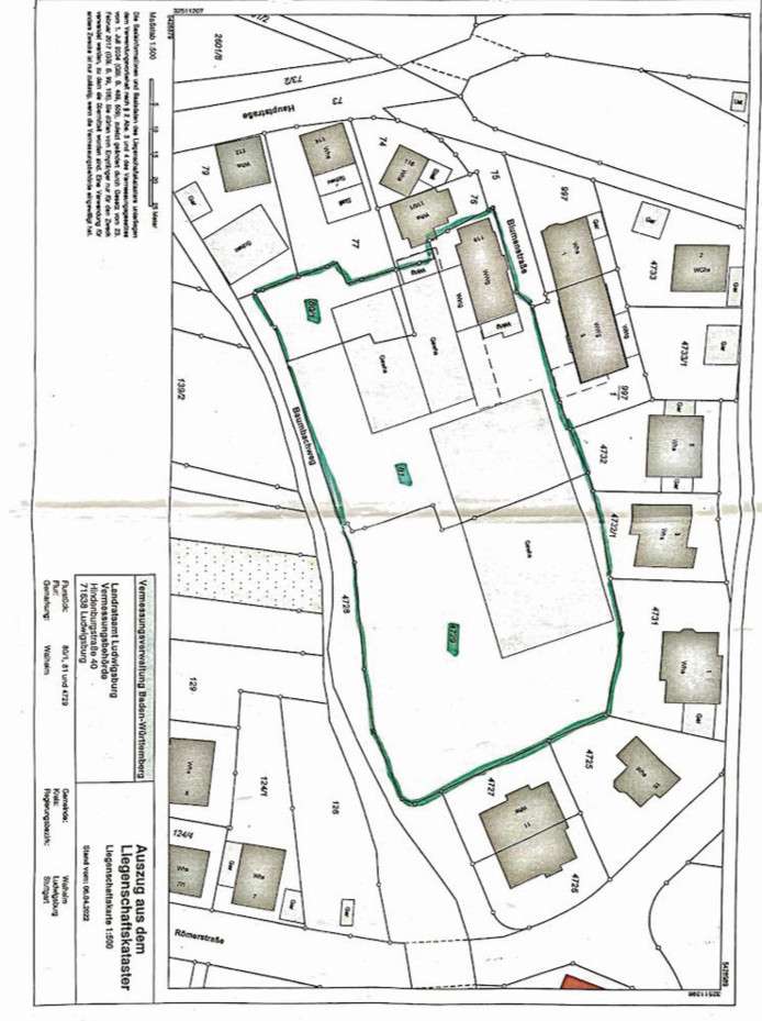
Diese durch uns zum Verkauf kommende Grundstücke zur Wohnbebauung mit einer Gesamtgrundstücksfläche von 4.971 m² befindet sich in sehr guter und ruhiger Südhang-Wohnlage in Walheim.
Grundstück 4729 mit 2.494 m²
Grundstück 81. mit 2.125 m²
Grundstück 80/1 mit 352 m²
Ein Teil des Verkaufsgrundstücks liegt im Geltungsbereich des Paragraph 34 Baugesetzbuch. Der andere Teil ist aktuell noch Gärtnereifläche. Die Gemeinde Walheim hat in einer Gemeinderatssitzung 2023 mehrheitlich einem Aufstellungsbeschluss zugestimmt, die Landwirtschaftsfläche in eine Wohnbaufläche umnutzen zu können.
Der Erwerber hat die Möglichkeit, seine Bebauungsvorstellungen im Rahmen eines qualifizierten Bebauungsplans oder eines vorhabenbezogenen Bebauungsplans in Abstimmung mit der Gemeinde Walheim zu relaiseieren.
Ein bereits abgestimmter Bebauungsentwurf eines renommierten Architekturbüros liegt der Gemeinde Weilheim bereits vor. Der Gebäudemix sah folgendermaßen aus:
24 Wohnungen mit einer Wohnfläche von 1812 m², sechs Reihenhäuser mit einer Wohnfläche von 804 m² und vier Doppelhaushälften mit einer Wohnfläche von 696 m². Dadurch würde sich eine Gesamtwohnfläche von 3312 m² ergeben.
Altbestand: Die Grundstücke werden in ihrem derzeitigen Zustand
verkauft. Die vorhanden Gebäude werden besenrein übergeben.
Großes Entwicklungsgrundstück zur Wohnbebauung direkt am Baumbach in Walheim
74399 Walheim
Die vollständige Adresse der Immobilie erhalten Sie vom Anbieter.
Auf Karte anzeigen
Die vollständige Adresse der Immobilie erhalten Sie vom Anbieter.
Finanzierungszertifikat
In nur zwei Minuten zu Ihrem persönlichen Finanzierungszertifkat.
Infos
| Vermarktungsart | Kaufen |
|---|---|
| Grundstücksfläche | 4.971 m2 |
| Erschließung | Teilerschlossen |
| Verfügbar ab | Sofort |
Kosten
| Miete pro Jahr |
1.950.000 € |
|---|---|
| Provision |
4,76% inlusive der gesetzlichen Mehrwertsteuer, zahlbar bei Vertragsabschluss |
Finanzierungsrechner:
Kaufpreis:
600.000 €
Eigenkapital:
600.000 €
Monatliche Rate
0 €
Effektiver Jahreszins
0 %
Sollzinsbindung
10 Jahre
Beschreibung des Objekts
Lage
Die Gemeinde Walheim liegt mit ihren knapp 3.000 Einwohnern im reizvollen Neckartal am Zusammenfluss von Neckar und Enz. Die Landschaft wird geprägt durch den Weinbau, insbesondere in den Steillagen oberhalb von Neckar und Enz sowie durch den Obstbau, der hier noch intensiv betrieben wird.
Walheim ist zwischen den Kreisstädten Ludwigsburg und Heilbronn verkehrsgünstig gelegen: Die Bundesstraße 27 berührt die Gemeinde und sorgt so für eine gute überörtliche Anbindung; die Autobahn A 81 ist in wenigen Minuten problemlos zu erreichen. Außerdem verfügt die Gemeinde über eine Haltestation der Deutschen Bahn AG entlang der Bahnstrecke Stuttgart - Heilbronn, so dass jedes Ziel in der Region schnell mit dem Zug zu erreichen ist. Die ungefähre Fahrzeit nach Stuttgart beträgt 35 Minuten und nach Heilbronn 30 Minuten.
Neben den traditionellen einheimischen Handwerks- und Gewerbebetrieben, die in großer Vielfalt und mit einem breiten Leistungsspektrum vorhanden sind, sind in der Gemeinde mehrere namhafte Betriebe mit zahlreichen Arbeitsplätzen ansässig.
Ein breites Angebot der örtlichen Vereine und Institutionen prägt das Zusammenleben in der Gemeinde, traditionelle Feste und zahlreiche kulturelle Veranstaltungen zeugen von
einem lebendigen Gemeinwesen. Moderne öffentliche Einrichtungen runden das Leistungsspektrum Walheims ab.
Weitere Informationen erhalten Sie auch unter www.walheim.de
Sonstige Angaben
Die Angaben in diesem Exposé beruhen auf uns erteilten Informationen. Eine Haftung für die Richtigkeit und Vollständigkeit können wir jedoch nicht übernehmen. Unser Nachweis- und/oder Vermittlungshonorar beträgt vom Käufer bei einem Kauf 4,76% des Kaufpreises, inklusive der gesetzlichen Mehrwertsteuer, fällig bei Vertragsabschluss.
Dieses Objekt wird in Kooperation mit Hörrmann Immobilienberatung GmbH vermarktet.
WICHTIG – Bitte beachten:
Bei Interesse an dieser Immobilie füllen Sie bitte das Kontaktformular vollständig aus. Bitte haben Sie Verständnis dafür, dass wir nur Anfragen bearbeiten können, bei denen die vollständige Adresse und Telefonnummer angegeben ist.
Seit mehr als 33 Jahren bin ich in der Immobilienbranche für meine Kunden erfolgreich tätig unter anderem als ehemaliger Prokurist eines großen Immobilienunternehmens.
Mit einer riesigen Markterfahrung im Bereich An-/und Verkauf von Immobilien, Renovierungs- und Sanierungsarbeiten sowie die Objektbewertung kann ich den Wert Ihrer Immobilie fach- und marktgerecht einschätzen.
Möchten Sie Ihre Immobilie verkaufen? Oder möchten Sie eine Immobilienbewertung?
Selbstverständlich bewerte ich auch Ihre Immobilie sehr gerne unverbindlich und kostenlos.
Grundriss
Auszug aus dem Liegenschaftska
>
>