Doppelgrundstück in wohltuender Umgebung in Bad Griesbach!
Sichern Sie sich Ihre Zukunft in ruhiger und familienfreundlicher Umgebung in Bad Griesbach. In dieser Gegend können Sie absolut entspannen und von Ihrem Arbeitsalltag in ruhiger Umgebung abschalten. Genießen Sie weitläufige Spaziergänge in die Natur und in die umliegenden Wälder, diese sich nur ca. 200 Meter vom Grundstück entfernt befinden.
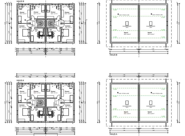
Das Grundstück hat eine Fläche von ca. 1.745m². Auf dem Grundstücken ist beispielsweise der Bau mit einem Einfamilienhaus, Zweifamilienhaus, Doppelhaus oder Mehrfamilienhaus denkbar. Eine Baugenehmigung für zwei Doppelhäuser, somit vier Doppelhaushälften ist vorhanden. Dies stellt allerdings nur ein Beispiel dar und Sie können das Grundstück nach Ihren Vorstellungen bebauen. Verschiedene Unterlagen, wie zum Beispiel eine Wohnflächenberechnung, Berechnung GRZ/GFZ und ein Geotechnischer Bericht sind bereits vorhanden.
Auf den Grundstücken herrscht kein Bauzwang, somit Sie auch erst in ferner Zukunft Ihre Träume auf dem Grundstück verwirklichen können. Die Grundstücke sind auch einzeln zu erwerben.
Übersicht
Nr. 1 mit ca. 908m²
Nr. 2 mit ca. 837m²
Doppelgrundstück in wohltuender Umgebung in Bad Griesbach!
94086 Bad Griesbach im Rottal
Die vollständige Adresse der Immobilie erhalten Sie vom Anbieter.
Auf Karte anzeigen
Die vollständige Adresse der Immobilie erhalten Sie vom Anbieter.
Finanzierungszertifikat
In nur zwei Minuten zu Ihrem persönlichen Finanzierungszertifkat.
Infos
| Vermarktungsart | Kaufen |
|---|---|
| Grundstücksfläche | 1.745 m2 |
Kosten
| Miete pro Jahr |
369.000 € |
|---|---|
| Provision | Nein |
Finanzierungsrechner:
Kaufpreis:
600.000 €
Eigenkapital:
600.000 €
Monatliche Rate
0 €
Effektiver Jahreszins
0 %
Sollzinsbindung
10 Jahre