Östlich von München entsteht die GRÜNE MITTE KIRCHHEIM. Das neue Wohnquartier wird in attraktiver Lage zwischen Kirchheim und Heimstetten entwickelt – direkt am Gelände der Landesgartenschau 2024. Eine charmante Umgebung, die mit einer großzügig und offen gestalteten Parkanlage zu beeindrucken vermag.
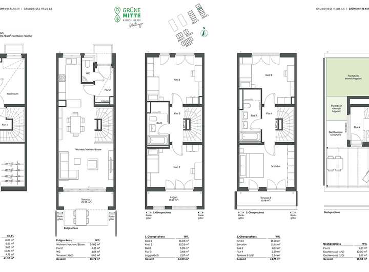
5-Zi.-RMH, real geteilt, mit 2 Terrassen, Loggia und großzügiger Dachterrasse in Süd-West-Ausrichtun
Schmetterlingstr. 6a,6b,8a,8b,,
85551 Kirchheim bei München
Auf Karte anzeigen
Finanzierungszertifikat
In nur zwei Minuten zu Ihrem persönlichen Finanzierungszertifkat.
Infos
| Haustyp | Reihenmittelhaus |
|---|---|
| Etagenzahl | 5 |
| Wohnfläche ca. | 155 m2 |
| Nutzfläche | 229,78 m2 |
| Grundstücksfläche | 133 m2 |
| Zimmer | 5 |
Kosten
| Kaufpreis |
1.320.000 € |
|---|---|
| Provision | Nein |
Finanzierungsrechner:
Kaufpreis:
600.000 €
Eigenkapital:
600.000 €
Monatliche Rate
0 €
Effektiver Jahreszins
0 %
Sollzinsbindung
10 Jahre
Bausubstanz & Energieausweis
| Objektzustand | Erstbezug |
|---|
Beschreibung des Objekts
Ausstattung
Die Eckdaten der Häuser in „GRÜNE MITTE KIRCHHEIM – Westanger“
- Reihenhäuser mit 4 bis 6 Zimmern und ein Doppelhaus mit je 5 Zimmern
- Ca. 114 m² bis ca. 187 m² Wohnfläche
- Mit Terrasse und je nach Haustyp zusätzlich mit Balkon, Loggia oder Dachterrasse
- Vielfältige Grundrisse
- Moderne Architektur
- Tiefgarage mit Einzelstellplätzen und direkten Zugängen zu den einzelnen Häusern
- Energieeffizienzklasse A
- KfW-Effizienzhaus 55, Anforderungen nach Gebäudeenergiegesetz 2020
- Pumpen-Warmwasserheizungsanlage mit Anschluss an das Fernwärmenetz
- Dezentrales Be- und Entlüftungssystem mit Wärmerückgewinnung
- GRÜNE MITTE KIRCHHEIM wurde von der Deutschen Gesellschaft für Nachhaltiges Bauen (DGNB) geprüft und mit dem DGNB Zertifikat in Gold ausgezeichnet
- Ausstattungsdetails:
- Parkett in allen Wohnräumen
- Fußbodenheizung
- Elektrische Raffstores
- Handtuchheizkörper in Bad und Duschbad
- Gehobene Standardausstattung mit Wahlmöglichkeiten, z. B.
- Parkettboden
- Waschtisch / WC von Laufen
- Fliesen (Boden und Wand) von Villeroy & Boch
- Armaturen von Hansgrohe
Angaben des vorläufigen Energieausweis für Wohngebäude gemäß den §§ 79 ff. Gebäudeenergiegesetz (GEG) vom 08.08.2020:
- Art des Energieausweis: Energiebedarfsausweis - Entwurf
- Endenergiebedarf: 45,5 kWh / (m²*a)
- Wesentliche Energieträger für Heizung und Warmwasser: Fernwärme AFK Geothermie
- Baujahr Gebäude, Wärmeerzeuger gem. Energieausweis: 2023
- Energieeffizienzklasse: A
Lage
STADT, LAND, PARK, GRÜNE MITTE
Das Münchner Umland ist heiß begehrt – und das nicht ohne Grund. Denn hier trifft eine moderne Infrastruktur mit sehr guter Anbindung an Autobahnen und den öffentlichen Nahverkehr auf eine traditionsreiche Landschaft, die viele Freizeit- und Erholungsmöglichkeiten in der Natur bietet. Insbesondere mit seiner Nähe zur lebendigen Großstadtmetropole und zum idyllischem Voralpenland zieht es all jene an, die das Beste aus beiden Welten suchen.
EIN UMFELD MIT VIELEN VORZÜGEN
Der Freizeitwert rund um GRÜNE MITTE KIRCHHEIM ist riesig. Hier profitieren Sie nicht nur von den außergewöhnlichen Erholungsflächen der Landesgartenschau, sondern auch von den vielfältigen Freizeiteinrichtungen, der Nähe zu den Bergen sowie den Angeboten der Landeshauptstadt selbst.
Ob Sie sich für Ihre Familie mehr Platz und Grün wünschen oder ob Sie Ihre Arbeit mit den vielen Freizeitmöglichkeiten rund um München und dem Alpenvorland verbinden möchten: GRÜNE MITTE KIRCHHEIM schafft den Spagat zwischen Urbanität und ländlichem Charme.
Sonstige Angaben
BERATUNG VOR ORT
Unsere Musterwohnung befindet sich in der Hauptstraße 45c in 85551 Kirchheim b. München.
Persönliche Beratung durch Ihre Verkaufsberater im Auftrag der DEMOS Wohnbau GmbH:
Freitag von 16:00 bis 19:00 Uhr
Samstag und Sonntag von 14:00 bis 18:00 Uhr
oder im Rahmen eines individuell vereinbarten Beratungstermins.
Sie erreichen Ihre Verkaufsberater jederzeit persönlich unter der Telefonnummer: 089 / 231 73 200.
Adresse
Schmetterlingstr. 6a,6b,8a,8b,, 85551 Kirchheim bei München
Interessante Orte
Preis- und Lageinformationen
Preistrend für Bestandsimmobilien in Kirchheim bei München