Attraktives Baugrundstück in Rendsburg – Ideal für ein Mehrfamilienhaus mit 5 Wohneinheiten
Sichern Sie sich diese einmalige Investitionsmöglichkeit im Herzen von Rendsburg! Auf einem 223 Quadratmeter großen Grundstück bietet sich die Chance, ein Mehrfamilienhaus realisieren. Hier können Investoren von einer idealen Lage und hervorragenden Entwicklungsmöglichkeiten profitieren.
Das Projekt könnte sich, basierend auf den bisherigen Voranfragen, möglicherweise über vier Geschosse erstrecken, wobei drei Vollgeschosse eine optimale Nutzung der Fläche darstellen könnten. Mit einer geplanten Wohnfläche von insgesamt ca. 325 Quadratmetern besteht die Option, ausreichend Raum zu schaffen, um 5 attraktive Mietwohnungen zu gestalten, die den Wohnraumbedarf der Region decken könnten.
Die Bebauung orientiert sich an der Nachbarschaftsbebauung und fügt sich nahtlos in die bestehende Straßenansicht ein, sodass die Immobilie harmonisch in das Stadtbild integriert wird. Dies ist besonders für Investoren interessant, die Wert auf nachhaltige und langfristige Vermietungsperspektiven legen.
Warum dieses Grundstück?
Ideale Lage in Rendsburg: Zentrale Lage in einer stark nachgefragten Wohngegend mit hervorragender Infrastruktur und Verkehrsanbindung.
Attraktives Investmentpotenzial: Perfekte Voraussetzungen für den Bau eines renditestarken Mehrfamilienhauses mit langfristiger Wertsteigerung.
Optimale Bebauung: 5 Wohneinheiten auf insgesamt 325 Quadratmetern bieten vielfältige Möglichkeiten zur flexiblen Gestaltung.
Nachhaltige Planung: Die Bebauung passt sich der Umgebung an, was Ihnen bei den Genehmigungen zugutekommt und das Projekt schnell vorantreibt.
Nutzen Sie diese Gelegenheit, um in ein Projekt zu investieren, das sowohl kurzfristige Renditen als auch langfristige Wertsteigerungspotenziale bietet. Kontaktieren Sie uns noch heute, um mehr Informationen zu erhalten und einen Besichtigungstermin zu vereinbaren!
Freies Baugrundstück für 5 Wohneinheiten in Toplage - nur 350m zur Ober-Eider
24768 Rendsburg
Die vollständige Adresse der Immobilie erhalten Sie vom Anbieter.
Auf Karte anzeigen
Die vollständige Adresse der Immobilie erhalten Sie vom Anbieter.
Finanzierungszertifikat
In nur zwei Minuten zu Ihrem persönlichen Finanzierungszertifkat.
Infos
| Vermarktungsart | Kaufen |
|---|---|
| Grundstücksfläche | 223 m2 |
| Erschließung | Erschlossen |
| Empfohlene Nutzung | Mehrfamilienhaus |
| Bebaubar nach | wie Nachbarbebauung |
Kosten
| Miete pro Jahr |
104.500 € |
|---|---|
| Provision |
3,57% inkl. gesetzl. MhwSt. |
Finanzierungsrechner:
Kaufpreis:
600.000 €
Eigenkapital:
600.000 €
Monatliche Rate
0 €
Effektiver Jahreszins
0 %
Sollzinsbindung
10 Jahre
Beschreibung des Objekts
Lage
Hervorragende Infrastruktur und Lebensqualität
Die Lage des Grundstücks überzeugt durch eine sehr gute Infrastruktur: Einkaufsmöglichkeiten, Restaurants, Ärzte und Schulen sind in unmittelbarer Nähe und zu Fuß oder mit dem Fahrrad leicht erreichbar. Der nahegelegene Stadtpark und die Uferpromenade am Nord-Ostsee-Kanal bieten Freizeitmöglichkeiten und Naherholung, was die Lebensqualität in diesem Stadtteil zusätzlich steigert.
Attraktiver Wohnstandort für alle Generationen
Die zentrale Lage und die ausgezeichnete Infrastruktur machen das Grundstück sowohl für junge Familien als auch für ältere Menschen attraktiv. Rendsburg bietet eine Vielzahl von Schulen und Kindergärten, während Senioren die ruhige Umgebung sowie die Nähe zu medizinischen Einrichtungen schätzen. Diese Mischung aus Bewohnern unterschiedlicher Generationen sorgt für eine stabile und diversifizierte Mieterstruktur, was für Kapitalanleger von besonderem Interesse ist.
Zukunftssicheres Investment in wachsender Region
Mit dem stetigen Ausbau der Region Rendsburg und der steigenden Nachfrage nach hochwertigem Wohnraum bietet dieses Grundstück die Möglichkeit, in einen sicheren und wachstumsstarken Markt zu investieren. Die Mikrolage innerhalb der Stadt ist ideal für den Bau eines Mehrfamilienhauses mit fünf Wohneinheiten, das eine hohe Rendite und langfristige Wertsteigerung verspricht.
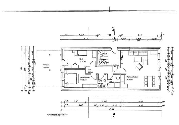
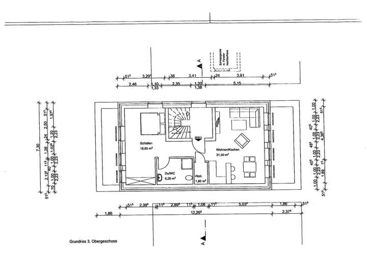
Grundriss
Grundriss Erdgeschoss
>
>
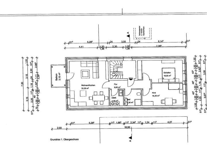
Grundriss 1. Obergeschoss
>
>
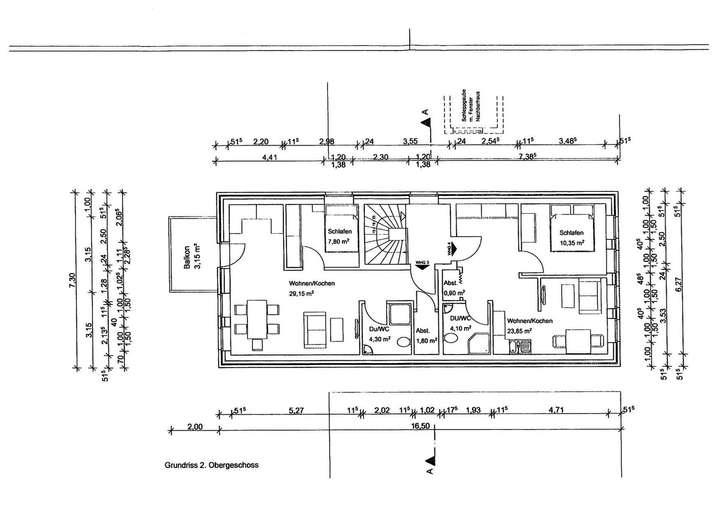
Grundriss 2. Obergeschoss
>
>
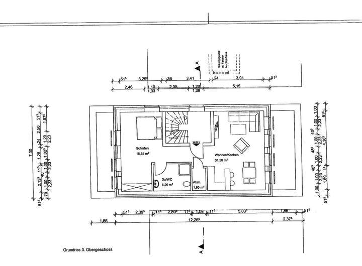
Grundriss 3. Obergeschoss
>
>