Dieses außergewöhnliche Anwesen überzeugt durch eine großzügige Raumaufteilung, eine hochwertige Ausstattung und einen liebevoll gestalteten, naturnahen Garten.
Dank der durchdachten Architektur lässt sich die Immobilie flexibel an Ihre individuellen Bedürfnisse anpassen – ob als großzügiges Einfamilienhaus wie bisher, als Mehrgenerationendomizil oder als Anlageobjekt mit bis zu fünf Wohneinheiten. Auch eine teilweise gewerbliche Nutzung ist denkbar.
Am Ende dieses Exposés stellen wir Ihnen eine ansprechende Beispielvariante mit drei separaten Wohneinheiten vor.
Doch zunächst geben wir Ihnen einen detaillierten Überblick über den aktuellen Bestand.
Dieses großzügige Wohnhaus wurde ursprünglich 1964 als Zweifamilienhaus mit einer Wohn- und Nutzfläche von ca. 200 m² errichtet. Im Jahr 1992 erfolgte eine Erweiterung, bei der zusätzliche 160 m² Wohnfläche geschaffen wurden. Im Rahmen dieser Baumaßnahmen erhielt der Anbau eine Gasheizung, die Isolierung des Altbaus wurde verbessert und das Dach wurde vollständig erneuert. Ein zusätzlicher Balkon im Dachgeschoss sorgt für noch mehr Freiraum.
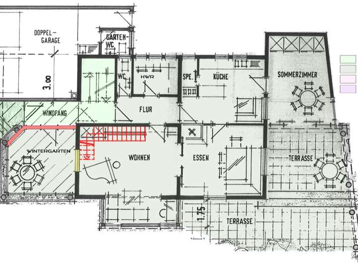
Das Erdgeschoss beeindruckt durch seine Großzügigkeit. Es umfasst ein großes Wohnzimmer mit Erker, ein Esszimmer mit edler Holzvertäfelung und Kachelofen sowie eine Küche mit direktem Zugang zur Terrasse. Zudem finden Sie hier einen Hauswirtschaftsraum und eine separate Toilette. Ein weiteres Zimmer im Eingangsbereich kann als Wintergarten oder Büro genutzt werden. Die Terrasse bietet einen überdachten Bereich, der als Sommerzimmer dient.
Das Obergeschoss ist in zwei Wohnbereiche unterteilt. Eine Einheit verfügt über zwei Zimmer plus Bad, die andere bietet drei Zimmer und ebenfalls ein eigenes Bad. In beiden Einheiten gibt es derzeit noch keine Küchen, ein Küchenanschluss ist in dem kleineren Apartmentbereich bereits vorhanden. Besonders hervorzuheben ist der überdachte Balkon, der von allen Zimmern der größeren Einheit zugänglich ist.
Im Dachgeschoss stehen drei Zimmer, ein Bad, ein Abstellraum sowie eine vorbereitete Küche zur Verfügung. Auch in diesem Geschoss gibt es einen großen, überdachten Balkon, der zusätzlichen Wohnkomfort bietet.
Das Haus ist voll unterkellert und bietet neben den üblichen Funktionsräumen ausreichend Abstellfläche. Der Garten liegt versteckt hinter dem Haus und bietet mit seinem alten Baumbestand, den Buntsandsteinen und den Rhododendren ein idyllisches Rückzugsgebiet.
Ausstattung:
Die Architektur des Hauses überzeugt durch die harmonische Kombination von Holz- und Putzelementen, die ihm eine zeitlose Eleganz verleihen. Im Inneren wurde Wert auf hochwertige Materialien gelegt: Wetterfeste Kupferverwahrungen am Dach und im Sockelbereich, Solnhofener Platten im Eingangsbereich und Wintergarten, Echtholzparkett, Fliesenböden und helle Wände mit Raufaser oder Putz schaffen eine harmonische Atmosphäre.
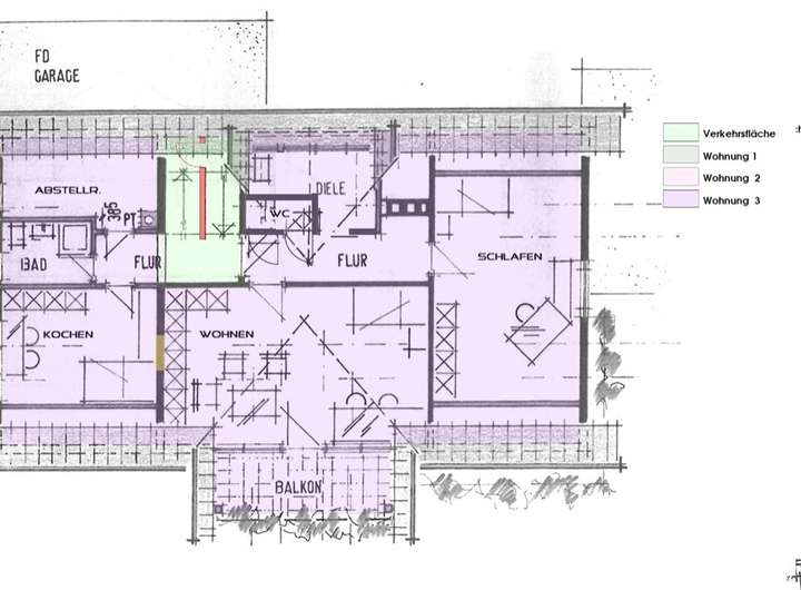
Auf Wunsch lässt sich das Haus mit überschaubarem Aufwand in ein attraktives 3-Parteienhaus umgestalten. Denkbar sind dabei eine weitläufige, zweigeschossige Hauptwohnung, die über eine innenliegende Treppe mit dem Obergeschoss verbunden ist. Diese Einheit eignet sich hervorragend für eine Familie mit mehreren Personen und bietet mit zwei Terrassen im Erdgeschoss, einem großen Balkon im Obergeschoss sowie dem angrenzenden Garten viel Freiraum und Lebensqualität – ideal für Familien mit Kindern.
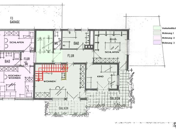
Zusätzlich stehen im ersten Obergeschoss ein separates Apartment mit Küche und Bad sowie im Dachgeschoss eine eigenständige 3-Zimmer-Wohnung zur Verfügung – perfekt zur Vermietung und als zusätzliche Einkommensquelle. Die Pläne für diese dreiteilige Nutzung finden Sie bei den Bildern des Exposés.
Weitere Planungsvarianten stellen wir Ihnen auf Wunsch gerne zur Verfügung. Die Umbaukosten für die reine Neuaufteilung ohne Innenausbau variieren je nach Ausführung zwischen € 22.000 bis zu ca. € 40.000.
Familienidyll mit Raum für Ideen – wandelbares Wohnen in bester Lage
72250 Freudenstadt
Die vollständige Adresse der Immobilie erhalten Sie vom Anbieter.
Auf Karte anzeigen
Die vollständige Adresse der Immobilie erhalten Sie vom Anbieter.
Finanzierungszertifikat
In nur zwei Minuten zu Ihrem persönlichen Finanzierungszertifkat.
Infos
| Haustyp | Sonstige |
|---|---|
| Etagenzahl | 3 |
| Wohnfläche ca. | 364 m2 |
| Grundstücksfläche | 727 m2 |
| Bezugsfrei ab | Bezugsfrei |
| Zimmer | 12 |
| Schlafzimmer | 6 |
| Badezimmer | 3 |
| Garage/Stellplatz | Garage |
| Anzahl Garage/Stellplatz | 5 |
Kosten
| Kaufpreis |
690.000 € |
|---|---|
| Provision |
3,57% inkl. MwSt. |
Finanzierungsrechner:
Kaufpreis:
600.000 €
Eigenkapital:
600.000 €
Monatliche Rate
0 €
Effektiver Jahreszins
0 %
Sollzinsbindung
10 Jahre
Bausubstanz & Energieausweis
| Baujahr | 1964 |
|---|---|
| Objektzustand | Gepflegt |
| Qualität der Austattung | Gehoben |
| Heizungsart | Zentralheizung |
| Wesentliche Energieträger | Gas |
| Energieausweis | liegt vor |
| Energieausweistyp | Bedarfsausweis |
| Energieverbrauchskennwert | 248,6 kWh/(m²*a) |
| Energieeffizienzklasse | G |
248,6
kWh/(m²*a)
Energieeffizienzklasse G
- A+
- A
- B
- C
- D
- E
- F
- G
- H
- 0
- 25
- 50
- 75
- 100
- 125
- 150
- 175
- 200
- 225
- >250
Beschreibung des Objekts
Ausstattung
Ausstattung der Wohnung:
-Parkett- und Fliesenböden
-Wände mit Raufaser oder Putz, hell gestrichen
-3 Tageslichtbäder mit Dusche und teilweise Badewanne
-2 Balkone und 1 Terrasse
-Großzügiger Garten mit altem Baumbestand
-Einbauküche inklusive
-Highspeed-Internet mit bis zu 1000 MBit/s möglich
-Laufend instand gehalten / kein Sanierungsstau
-Flexible Aufteilung in mehrere Einheiten möglich
Haus allgemein:
-Massivbauweise
-Außenwände massiv, mit Dämmung
-Große Doppelgarage
-3 PKW-Stellplätze
-Holz-Isolierglasfenster, teilweise mit hochwertiger Bleiverglasung
-Rollläden vorhanden; hauptsächlich elektrisch
-Niedertemperatur Gaszentralheizung (erfüllt die akt. Normen)
-zusätzliche Niedertemperatur Ölzentralheizung (erfüllt die akt. Normen)
-voll unterkellert
Lage:
-ruhige, familienfreundliche Lage
Lage
Entdecken Sie Ihr persönliches Zuhause in dieser ruhigen Wohnlage mitten im Herzen des begehrten Herrenfelds! Ein Teil dieser Straße ist sogar ein Privatweg der angrenzenden Hauseigentümer, was Ihnen ein Höchstmaß an Privatsphäre und Geborgenheit garantiert. Die Lebendigkeit des Marktplatzes mit seinen zahlreichen Einkaufsmöglichkeiten ist nur eine kurze Fahrradfahrt von 5 Minuten entfernt. Und in ein paar Minuten gelangen Sie zum Golfplatz oder dem schönen Teuchelwald, dessen weitläufige Rad- und Wanderwege Ihnen unvergleichliche Naturerlebnisse bescheren.
Freudenstadt begeistert mit einer außerordentlich hohen Wohnqualität und einer erstklassigen Infrastruktur, die etwa 24.000 Einwohnern ein erstklassiges Zuhause bietet. Die Region ist geprägt von zahlreichen Industrie- und Touristikunternehmen, die als Hauptarbeitgeber fungieren und somit eine Vielzahl von Möglichkeiten für Arbeit und Karriere bieten. Der größte Marktplatz Deutschlands ist ein beliebter Treffpunkt, der mit seiner abwechslungsreichen Auswahl an Geschäften und gastronomischen Einrichtungen zum Verweilen und Entdecken einlädt. Das ausgezeichnete Busnetz und die hervorragende S-Bahnanbindung machen Freudenstadt ebenso für Schüler, Senioren und Pendler gleichermaßen attraktiv.
Die Stadt Freudenstadt vereint auf harmonische Weise die Vorzüge einer lebendigen Stadt mit der Liebe zur unberührten Natur. Dies schafft eine wahrlich ideale Umgebung, in der Sie nicht nur leben, sondern auch arbeiten können.
Sonstige Angaben
Unser Service für Sie als Eigentümer: Wir bewerten gerne kostenfrei Ihre Immobilie zum aktuellen Marktwert, entwickeln eine individuelle Verkaufsstrategie und stehen Ihnen über den eigentlichen Verkauf Ihrer Immobilie bis zur erfolgreichen Schlüsselübergabe zur Verfügung. Kommen Sie einfach bei uns vorbei, rufen Sie uns an oder senden Sie uns eine E-Mail – wir freuen uns, Sie kennen zu lernen.
Grundriss
Untergeschoss
>
>
Erdgeschoss
>
>
Obergeschoss
>
>
Dachgeschoss
>
>
Adresse
72250 Freudenstadt
Interessante Orte
Preis- und Lageinformationen
Preistrend für Bestandsimmobilien in Freudenstadt