Bei dem Haus handelt es sich um ein OKAL-Haus aus dem Baujahr 1983.
Da die Grundstücksteilung auf Grund einer Umwandlung erst vor Kurzem erfolgte, können Änderungen wie z.B. Zufahrt, Garage, Carport oder Ähnliches vorgenommen werden.
Das Gundstück ist nunmehr Eigentum!!!
Seelze OT Harenberg - Haus zum Wohlfühlen mit vielen Optionen auf ca. 1.200 m² Grundstück
30926 Seelze
Die vollständige Adresse der Immobilie erhalten Sie vom Anbieter.
Auf Karte anzeigen
Die vollständige Adresse der Immobilie erhalten Sie vom Anbieter.
Finanzierungszertifikat
In nur zwei Minuten zu Ihrem persönlichen Finanzierungszertifkat.
Infos
| Haustyp | Doppelhaushaelfte |
|---|---|
| Etagenzahl | 2 |
| Wohnfläche ca. | 152 m2 |
| Nutzfläche | 80 m2 |
| Grundstücksfläche | 1.200 m2 |
| Bezugsfrei ab | nach Vereinbarung |
| Zimmer | 5 |
| Schlafzimmer | 4 |
| Badezimmer | 2 |
| Garage/Stellplatz | Garage |
| Anzahl Garage/Stellplatz | 1 |
Kosten
| Kaufpreis |
475.000 € |
|---|---|
| Provision |
2,86% inkl. MwSt Die Maklercourtage ist gem. gesetzl.Regelung vom 23.12.2020 je hälftig von Käufer und Verkäufer zu tragen. Die Maklercourtage beträgt bei UBA Immobilien-Service je 2,86% inkl. MwSt. vom Käufer und Verkäufer - mithin 5,72% inkl. MwSt. -. |
Finanzierungsrechner:
Kaufpreis:
600.000 €
Eigenkapital:
600.000 €
Monatliche Rate
0 €
Effektiver Jahreszins
0 %
Sollzinsbindung
10 Jahre
Bausubstanz & Energieausweis
| Baujahr | 1983 |
|---|---|
| Objektzustand | Gepflegt |
| Qualität der Austattung | Gehoben |
| Heizungsart | Zentralheizung |
| Wesentliche Energieträger | Gas |
| Energieausweis | liegt vor |
| Energieausweistyp | Verbrauchsausweis |
| Energieverbrauchskennwert | 80,6 kWh/(m²*a) |
| Energieeffizienzklasse | C |
80,6
kWh/(m²*a)
Energieeffizienzklasse C
- A+
- A
- B
- C
- D
- E
- F
- G
- H
- 0
- 25
- 50
- 75
- 100
- 125
- 150
- 175
- 200
- 225
- >250
Beschreibung des Objekts
Ausstattung
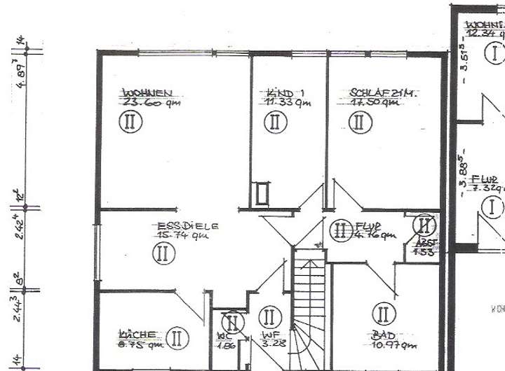
Die äußerst gepflegte Doppelhaushälfte, die in einer ruhigen Wohngegend gelegen ist, befindet sich in einem gewachsenen Viertel von Harenberg und ist als ansprechend und individuell zu bezeichnen. Die Thermofassade (Bereich im Erdgeschoss) ist verputzt. Die Immobilie ver-fügt über ein Satteldach (38 Grad Neigung), welches den Ausbau des oberen Geschosses ermöglichte.
Von der Diele im Erdgeschoß gelangt man in den großen, offenen Wohn-/Essbereich in der unteren Etage. Hier wurde Parkett – Eiche Massivholz verlegt. Die anderen Räume wurden mit Fliesen und Teppichboden ausgestattet.
Im Erdgeschoß sind weiterhin ein geräumiges Schlafzimmer, ein Kinderzimmer, ein großes
Tageslichtbad mit Dusche und Badewanne, welches vor 3 Jahren modernisiert wurde so-
wie der Küchenbereich, der mit einer Einbauküche ausgestattet ist und das ebenfalls neu gestaltete Tageslicht-Gäste-WC gelegen.
Vom Wohn-/Esszimmer gelangt man auf die wunderschöne Terrasse, die überdacht ist und von der man einen herrlichen Blick in den großen Garten hat.
Ein Kaminofen sorgt in der kalten Jahreszeit zusätzlich für Gemütlichkeit und wohlige Wärme.
Der gepflegte Garten ist südöstlich ausgerichtet und ansprechend angelegt.
Weiterhin ist auf dem Grundstück eine geräumige Massivholzgartenlaube mit Balkonkraftwerk gelegen.
Bei der Küche handelt es sich um eine Einbauküche, die im Kaufpreis bereits enthalten ist. Für eine gemütliche Frühstücksecke ist ebenfalls Platz vorhanden
Über eine Holztreppe gelangt man in den oberen Bereich des Hauses. Hier sind das Tages-lichtbad mit Dusche, ein weiteres Kinderzimmer sowie ein großer Wohnraum vorhanden.
Anschlüsse für eine eventuell zusätzlich einzubauende Küche sind oben ebenfalls gelegen.
Im Obergeschoß wurde Parkett – Eiche Massivholz sowie Vinyl-Klickboden verlegt.
Das Haus ist teilweise unterkellert (ca. 80 m²) und höher als üblich. Hier sind der Heizungsraum, weitere 3 Kellerräume, sowie ein direkter Ausgang zum Garten vorhanden.
An der Ostseite des Kellerbereiches entsteht bei Starkregen im Bereich der Kellerseitenaußentür Feuchtigkeit. Das gleiche im Bereich der Südseite an der Ecke im Bereich des nicht unterkellerten Teiles.
Die Ostseite wurde vor Jahren von außen durch einen Fachbetrieb isoliert. Auch auf der Südseite wurde der Bereich ebenfalls isoliert und abgedichtet. (Feuchtigkeit nur bei Starkregen)
Um eventuell weiterer Feuchtigkeit entgegenzuwirken, wird von den jetzigen Eigentümern auf Wunsch der Käufer noch eine Mauer-Entfeuchtungsanlage eingebaut.
Die Heizung ist eine Gaszentralheizung aus dem Jahr 2011. Ein Endenergieverbrauchsausweis mit einem kWh/(m².a) von 80,6 EEK C wurde am 18.07.2024 erstellt und liegt bei Besichti-gung zur Einsicht vor.
Bei den Fenstern handelt es sich um Kunststofffenster sowie um Holzfenster, die isolierverglast und bis auf das Gäste-WC mit Außenrollläden – elektrisch - ausgestattet sind.
Die 4 Velux-Fenster im Dachgeschoß verfügen über Verdunklungsrollos. Die beiden Velux-Fenster auf der Südseite haben außen noch eine Sonnenschutzmarkise.
In der derzeit vorhandenen Garage wurde eine Wallbox installiert.
Es handelt sich um eine Immobilie, die viele Gestaltungsmöglichkeiten bietet und die man sich auf alle Fälle vor Ort anschauen sollte!
Lage
Die Infrastruktur in Harenberg ist als gut zu bezeichnen. Die ländliche Ruhe in Harenberg ist sehr gut mit der unmittelbaren Nähe nach Hannover zu vereinbaren.
In dem vorhandenen Hofladen kann man viele regionale Produkte erwerben und soziale Kontakte mit der Dorfgemeinschaft pflegen.
Eine Grundschule sowie ein Kindergarten sind in Harenberg vorhanden. Eine weitere Grundschule befindet sich derzeit im Bau, in die der Kindergarten integriert werden soll.
Die weiterführenden Schulen sind in Seelze/Letter gelegen.
Ein kleiner SB Markt dient für Einkäufe des täglichen Bedarfs. Größere Einkäufe können in ca. 3 km Entfernung in Hannover-Ahlem oder Velber in Supermärkten vorgenommen werden. Hier gibt es NETTO, REWE, LIDL, Rossmann, EDEKA, ALDI, Ärzte, Apotheken usw.
Die Anbindung mit öffentlichen Verkehrsmitteln ist in Harenberg gegeben und ab dem Stadtteil Ahlem optimal. Harenberg sowie das Umland bieten ausreichende Erholungs- und
Freizeitmöglichkeiten, wo man Sport und Spaß aber auch Ruhe und Erholung pur finden kann.
Sonstige Angaben
Kontaktieren Sie uns bitte, damit wir Ihnen ein Exposé mit den entsprechenden Grundrisszeichnungen zusenden und einen Besichtigungstermin für Sie vereinbaren können. Alle Daten beruhen auf Angaben des Eigentümers bzw. der uns zur Verfügung gestellten Unterlagen, sodass eine Haftung hierfür unsererseits nicht erfolgen kann. Die Verwendbarkeit des Kaufgegenstandes ist grundsätzlich Angelegenheit des Käufers. Besichtigungen können nur mit UBA Immobilien-Service vorgenommen werden. Teilen Sie uns bitte auch Ihre Anschrift und Ihre Telefonnummer mit. Vielen Dank für Ihre Anfrage!
Grundriss
Grundriss, EG
>
>
Grundriss, DG
>
>
Grundriss, KG
>
>
Adresse
30926 Seelze
Interessante Orte
Preis- und Lageinformationen
Preistrend für Bestandsimmobilien in Seelze