– Zwischen Hundert Morgen und Starenweg
– Drei Mehrfamilienhäuser
– 27 Eigentumswohnungen
– 2 bis 4 Zimmer
– Ca. 61 m² bis 132 m² Wohnfläche
– Freiflächen mit Südwestausrichtung
– Besonderes Energiekonzept
Die drei Gebäude unseren neuen Projekts TRIO VERDE Edingen sind entsprechend ihrer Größe als Zweispänner bzw. Dreispänner mit Dachterrassen-Wohnungen geplant. Die Eingänge liegen jeweils an einem Quartiersweg.
Alle Häuser haben einen Aufzug. Eine öffentliche Durchfahrt durch das Gebiet besteht nicht, sie ist nur Servicefahrzeugen und der Feuerwehr vorbehalten. An beiden Zufahrten befinden sich Besucher-Stellplätze. In der Tiefgarage sind 30 großzügige PKW-Stellplätze sowie Fahrradstellplätze vorgesehen, diese sind über eine gesicherte und überdachte Rampe gemeinsam erschlossen.
Freuen Sie sich auf ein Wohn-Ensemble im Grünen, das modernes Wohnen und nachhaltige Architektur vereint.
Großzügige 4 Zimmer-ETW in stadtnaher Lage
Hundert Morgen 53,
68535 Edingen-Neckarhausen
Auf Karte anzeigen
Finanzierungszertifikat
In nur zwei Minuten zu Ihrem persönlichen Finanzierungszertifkat.
Infos
| Wohnungskategorie | Etagenwohnung |
|---|---|
| Etage | 1 von 3 |
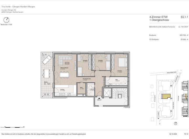
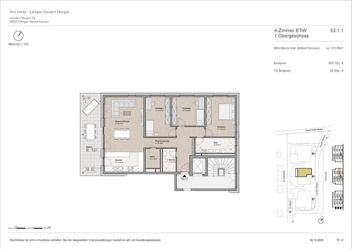
| Wohnfläche ca. | 131 m2 |
| Bezugsfrei ab | 2027 |
| Zimmer | 4 |
| Schlafzimmer | 3 |
| Badezimmer | 2 |
| Garage/Stellplatz | Tiefgarage |
| Anzahl Garage/Stellplatz | 1 |
Kosten
| Kaufpreis |
803.700 € |
|---|---|
| Preis für Garage/Stellplatz | 25.000 € |
| Provision | Nein |
Finanzierungsrechner:
Kaufpreis:
600.000 €
Eigenkapital:
600.000 €
Monatliche Rate
0 €
Effektiver Jahreszins
0 %
Sollzinsbindung
10 Jahre
Bausubstanz & Energieausweis
| Objektzustand | Erstbezug |
|---|---|
| Qualität der Austattung | Gehoben |
| Heizungsart | Fußbodenheizung |
| Wesentliche Energieträger | Solarheizung |
| Energieausweis | liegt zur Besichtigung vor |
Beschreibung des Objekts
Ausstattung
BAUWEISE UND AUSSTATTUNG
FÜR HOHE ANSPRÜCHE
Unsere hochwertige Bauweise, unter Verwendung sorgfältig ausgewählter
Materialien, sorgt auch in TRIO VERDE Edingen für hohen Wohnkomfort.
Hier einige Beispiele:
• Massive Bauweise mit hochwertigem Kalksandstein
• Aufzugsschächte mit erhöhter Wandstärke zur Reduzierung der Schallübertragung
• Wärmedämmverbundsystem
• Elektrisch betriebene Rollläden
• Separat für jeden Raum regulierbare Fußbodenheizung sowie Fußbodenkühlung
• Video-Sprechanlage
• Zeitloses Eichenparkett
• Komfortable Bäder mit bodengleich gefliestem Duschbereich,
Badewanne als Sonderwunsch optional möglich
• Hochwertige Sanitärobjekte, ausgesuchte Fliesen namhafter Hersteller
• Verriegelbare Fenster- und Fenstertürgriffe im EG
• Vorrüstung für elektrische Markisen in allen Wohnungen
• Barrierefreie Wohnungen (nach LBO BW)
• Tiefgarage mit 30 PKW-Stellplätzen
• Rollgittertor mit Fernbedienung
• E-Mobilität: Vorhalten einer Leitungsinfrastruktur nach Vorgabe des Gebäude-Elektomobilitäts-
infrastrukturgesetzes (GEIG)
• Das Gebäude erfüllt die Effizienzhaus-Stufe 40
• Klimafreundliches und nachhaltiges Wohngebäude mit QNG
Lage
Das Wohnprojekt TRIO VERDE Edingen wird auf einem ehemaligen Tennisplatz-
Areal realisiert. Die drei Gebäude entstehen in direkter Nachbarschaft zu den
Grünflächen des Pestalozzi-Sportgeländes, umgeben von Feldern und altem
Baumbestand. Die Zufahrt zur Tiefgarage erfolgt über die Straße Hundert
Morgen in einen Anliegerbereich. Eine Durchfahrt ist nicht möglich.
Der Ortsteil Edingen ist mit der OEG/Linie 5 optimal an das Verkehrsnetz der VRN angebunden. Dies ermöglicht es, die nahegelegenen Städte bequem in rund 15 Minuten zu erreichen.
Sonstige Angaben
Nachhaltig und effizient:
Effizienzhaus-Stufe 40
TRIO VERDE erreicht die Effizienzhaus-
Stufe 40 und erfüllt gleichzeitig
Anforderungen an die Nachhaltigkeit.
Die Kennzahl 40 gibt hierbei
an, dass maximal 40 % der Primärenergie
im Vergleich zu einem Referenzgebäude
(Standard nach dem
Gebäudeenergiegesetz) benötigt
wird. Gleichzeitig werden hohe
Anforderungen an die Nachhaltigkeit
nach NaWoh (Qualitätssiegel
Nachhaltiger Wohnungsbau) und
QNG (Qualitätssiegel Nachhaltiges
Gebäude) erfüllt. Die Planung und
Ausführung wird von einem beratenden
Büro für nachhaltiges Bauen
begleitet und erhält nach der Fertigstellung
eine entsprechende Zertifizierung.
Im Ergebnis entsteht ein
„Klimafreundliches Wohngebäude –
mit QNG“, sodass die Beantragung
eines KfW-Förderkredits möglich ist.
Sprechen Sie uns an. Unser Vertriebsteam freut sich auf Ihre Anfrage unter:
0621 8607-255
info@trio-verde.de
Grundriss
Etagenplan
>
>
Haus_53_TE12
>
>
Adresse
Hundert Morgen 53, 68535 Edingen-Neckarhausen
Interessante Orte
Preis- und Lageinformationen
Preistrend für Bestandsimmobilien in Edingen-Neckarhausen