Willkommen in Ihrem neuen Zuhause! Dieses projektierte Einfamilienhaus erstreckt sich über zwei Etagen und bietet eine großzügige Wohnfläche von ca. 151,02 m² auf einem Grundstück von ca. 585 m². Die Immobilie besticht durch ihre Energieeffizienzklasse A und mit einer Luftwasser Wärmepumpe sowie mit der dazugehörigen Fußbodenheizung .
Mit insgesamt fünf Zimmern, darunter zwei Schlafzimmer, zwei Büros, einem Badezimmer und einem Dusch-WC, bietet dieses Haus ausreichend Platz für die ganze Familie und für Gäste. Die moderne Gestaltung der Räumlichkeiten sorgt für ein helles und freundliches Ambiente. Im Erdgeschoss erwartet Sie eine offene Küche mit integrierten Essbereich sowie ein geräumiges Wohnzimmer, das direkt auf die Terrasse führt – perfekt für entspannte Abende im Freien. Zusätzlich bietet das Büro eine Möglichkeit für Homeoffice Tage oder Schlafgelegenheiten für Gäste.
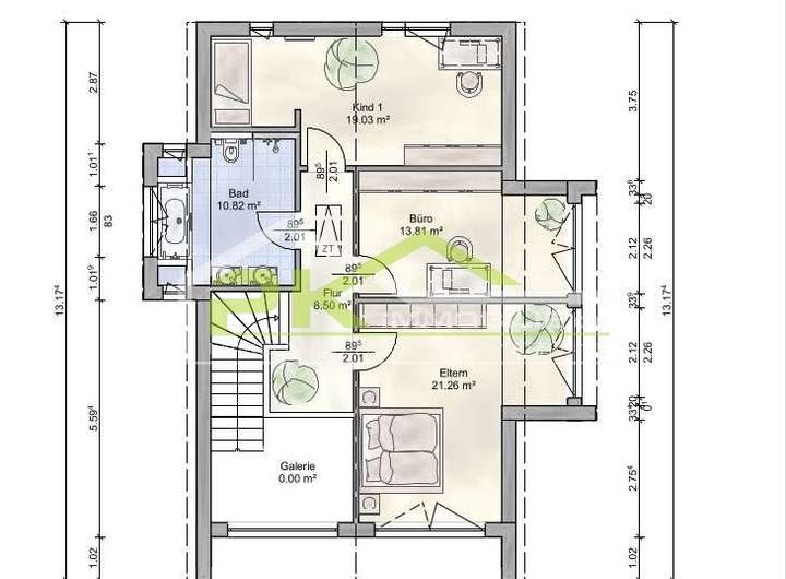
Das Obergeschoss beherbergt die Schlafzimmer, ein geräumiges Büro und das Badezimmer, die alle mit hochwertigen Materialien ausgestattet sind, um höchsten Wohnkomfort zu gewährleisten.
Die Immobilie befindet sich in einer ruhigen, aber dennoch zentrumsnahen Lage, ideal für Familien. Einkaufsmöglichkeiten, Schulen und öffentliche Verkehrsmittel sind bequem erreichbar. Das praktische Grundstück bietet viel Raum für Entfaltung und Erholung.
Dieses Einfamilienhaus ist das perfekte Zuhause für anspruchsvolle Interessenten, die Wert auf Qualität und eine gute Ausstattung legen. Das Einfamilienhaus wird mit einer Holzrahmenkonstruktion hergestellt.
Das Grundstück kann auf Wunsch vergrößert werden.
Lassen Sie sich diese Gelegenheit nicht entgehen!
Neubau Einfamilienhaus in Nentershausen (ww) - provisionsfrei
Koblenzer Straße 45,
56412 Nentershausen
Auf Karte anzeigen
Finanzierungszertifikat
In nur zwei Minuten zu Ihrem persönlichen Finanzierungszertifkat.
Infos
| Haustyp | Einfamilienhaus |
|---|---|
| Etagenzahl | 2 |
| Wohnfläche ca. | 151 m2 |
| Nutzfläche | 4,91 m2 |
| Grundstücksfläche | 585 m2 |
| Bezugsfrei ab | 2025 |
| Zimmer | 5 |
| Schlafzimmer | 3 |
| Badezimmer | 1 |
| Anzahl Garage/Stellplatz | 2 |
Kosten
| Kaufpreis |
613.300 € |
|---|---|
| Provision | Nein |
Finanzierungsrechner:
Kaufpreis:
600.000 €
Eigenkapital:
600.000 €
Monatliche Rate
0 €
Effektiver Jahreszins
0 %
Sollzinsbindung
10 Jahre
Bausubstanz & Energieausweis
| Qualität der Austattung | Normal |
|---|---|
| Heizungsart | Wärmepumpe |
| Wesentliche Energieträger | Strom |
| Energieausweis | laut Gesetz nicht erforderlich |
Beschreibung des Objekts
Ausstattung
Die Ausstattung der Immobilie kann auf Wunsch der Bau- und Leistungsbeschreibung des Hausherstellers entnommen werden.
Lage
Nentershausen liegt im Westerwaldkreis in Rheinland-Pfalz und ist Teil der Verbandsgemeinde Montabaur. Die Region zeichnet sich durch ihre zentrale Lage zwischen den Ballungsräumen Rhein-Main und Köln/Bonn aus, was sie zu einem attraktiven Wohnort für Pendler macht. Die Nähe zur A3 und die gute Anbindung an das Schienennetz über den ICE-Bahnhof Montabaur ermöglichen eine schnelle Erreichbarkeit von Städten wie Frankfurt am Main, Wiesbaden und Köln.
Rheinland-Pfalz ist bekannt für seine landschaftliche Schönheit, geprägt von Wäldern, Hügeln und Flusstälern. Diese Umgebung bietet zahlreiche Freizeitmöglichkeiten wie Wandern, Radfahren und andere Outdoor-Aktivitäten. Zudem profitiert die Region von einer stabilen Wirtschaft mit einem Mix aus mittelständischen Unternehmen und Handwerksbetrieben.
Die Ortsgemeinde Nentershausen selbst bietet eine ruhige und familienfreundliche Wohnumgebung. Der Ort verfügt über grundlegende Infrastrukturen wie Kindergärten, Schulen, Einkaufsmöglichkeiten sowie medizinische Versorgungseinrichtungen. Das soziale Leben wird durch ein reges Vereinsleben bereichert, das den Bewohnern zahlreiche Möglichkeiten zur Freizeitgestaltung und zum sozialen Austausch bietet.
Nentershausen besticht durch seinen dörflichen Charme und die enge Gemeinschaft der Einwohner. Die umliegende Natur lädt zu Spaziergängen und Erholung im Grünen ein. Trotz der ländlichen Idylle sind alle wichtigen Einrichtungen des täglichen Bedarfs gut erreichbar, was Nentershausen zu einem idealen Wohnort für Familien und Naturliebhaber macht.
Insgesamt bietet Nentershausen eine hohe Lebensqualität mit einer harmonischen Balance zwischen Ruhe, Naturverbundenheit und guter Anbindung an größere Städte.
Sonstige Angaben
Alle Angaben sind nach bestem Wissen und Gewissen gemacht. Der Makler haftet nicht für Irrtümer oder Schriftfehler. Dieses Exposé ist eine Vorinformation, als Rechtsgrundlage gilt allein der notariell abgeschlossene Kaufvertrag.
Das Gebäude enthält Sonderausstattungen gegenüber der Leistungsbeschreibung. Die Sonderausstattungen sind nicht im Preis inbegriffen.
Grundriss
Lageplan_Bergstraße_V2
>
>
Bergstraße_Grundriss Obergesch
>
>
Bergstraße_Schnitt_MA 152_S
>
>
Bergstraße_Grundriss Erdgescho
>
>
Adresse
Koblenzer Straße 45, 56412 Nentershausen
Interessante Orte
Preis- und Lageinformationen
Preistrend für Bestandsimmobilien in Nentershausen