Ein herrlich gelegenes Grundstück am Fuße des Auerbacher Schlosses, mit genehmigtem Bauantrag für ein exquisites Neubau Mehrfamilienhaus mit bis zu drei Wohneinheiten. Alternativ auch als Villa für eine Familie gestaltbar, in wunderschöner Hanglage, eingereiht in der exklusiven Wohngegend Bensheim-Auerbach. Die Planung sieht ein ganz besonderes, modernes freistehendes Gebäude mit ansprechender Architektur vor.
Die Highlights sind:
• ein einmalig zu erwerbendes Baugrundstück mit 638 m² Größe in gefragter Höhenlage von Bensheim-Auerbach
• genehmigter Bauantrag mit anspruchsvoller Architektenplanung für ein freistehendes Dreifamilienhaus mit bis zu einer geplanten Wohnfläche von ca. 425 m² liegt vor
• alternativ auch als Neubauvilla für eine Familie gestaltbar
• durchdachte Grundrissgestaltung für höchste Ansprüche mit Aufzug, zahlreichen Außenplätzen, einer barrierefreien und rollstuhlgeeigneten Wohnung im Erdgeschoss
• Tiefgarage mit bis zu fünf Kfz-Stellplätzen
• optional erweiterbar um das nördlich angrenzende Grundstück mit 288 m² Größe für kombiniert in Summe bis zu 5 Wohneinheiten
• provisionsfrei für den Käufer
Dieses 638 m² große Grundstück reiht sich ein in eine architektonisch durch einerseits Neubauvillen und andererseits historischen Kulturdenkmalen harmonisch miteinander vereinten Wohnviertel. Ein schönes Zusammenspiel von Villen nach Plänen von Heinrich Metzendorf, historischen Baudenkmalen entstanden um 1900 und hochwertig moderner freistehender Villenbauweise der Neuzeit.
Der Reiz des Grundstückes liegt unter anderem an der Höhenlage am Schlossberg und an den weitläufig geschnittenen Anwesen. Eingebettet in das gestandene, teilweise mit üppigem Baumbestand bewachsene Wohngebiet, profitiert dieses Grundstück von Ruhe und visueller Distanz.
Das Grundstück weist im Moment noch ein Bestandshaus aus, was dem genehmigten Neubau weichen wird. Verkauft wird ein bebautes Grundstück im Ist-Zustand mit Projektierung und Genehmigung für ein exklusives Neubauvorhaben. Abriss und Neubau sind nicht inkludiert im Preis.
Das projektierte und genehmigte Neubauvorhaben zeichnet sich durch eine hoch moderne, anspruchsvolle Architektur aus.
Optional kann dieses Grundstück um das nördlich, direkt angrenzende Grundstück mit 288 m² Fläche erweitert werden. Auch hier liegt eine Baugenehmigung vor, für ein exklusives Zweifamilienhaus.
GENEHMIGTE BEBAUUNG
Das genehmigte Bauvorhaben sieht drei Wohneinheiten vor. Die m² Angaben entsprechen der Genehmigungsplanung, Abweichungen zu einer Ausführungsplanung sind möglich:
Wohneinheit im Erdgeschoss:
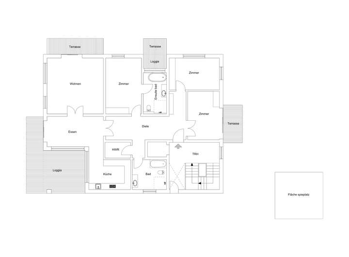
Eine ideal geschnittene, ca. 157 m² große Etagenwohnung mit 3 in die ruhigen Gärten ausgerichteten Schlafzimmern, wovon eines der Schlafbereiche als Masterbereich mit Bad Ensuite und Zugang zur eigenen Loggia mit Terrasse gestaltet ist. Der großzügige Koch-Ess-Wohnbereich, ebenfalls mit Zugang zu einer Loggia und anschließender Süd-Terrasse, beeindruckt in gleicher weise. Insgesamt bietet diese Wohnung mit 4 Terrassen in unterschiedliche Himmelsrichtungen und 2 großen Bädern mit jeweils der Option auf eine Badewannen, ein erlebnisreiches Wohnambiente. Diese Ebene ist rollstuhlgeeignet.
Wohneinheit im 1. Obergeschoss:
Diese ca. 150 m² große Wohneinheit ist vergleichbar mit dem Grundriss der Wohnung im Erdgeschoss, weist lediglich mit ihren zwei Loggien und einem Balkon Unterschiede in den Außenbereichen auf.
Wohneinheit im Dachgeschoss:
In der obersten Ebene verteilt sich die Wohnfläche auf ca. 118 m² mit 2 Schlafzimmern, 2 Bädern, wovon das Master Bad Ensuite mit Badewanne und Dusche gestaltbar wäre der Größe nach und einem großzügigen, offenen Wohn-Koch-Essbereich. 3 Balkone erfüllen auch in dieser Wohneinheit höchste Ansprüche.
Ergänzt wird das Raumangebot durch eine Tiefgarage mit 5 Kfz-Stellplätzen, Raum für Fahrräder, Technik, 3 getrennte Kellerräume und ein Treppenhaus mit Aufzug.
Schlossberg Baugrundstück mit Baugenehmigung, Architektenplanung für ein Dreifamilienhaus
64625 Bensheim
Die vollständige Adresse der Immobilie erhalten Sie vom Anbieter.
Auf Karte anzeigen
Die vollständige Adresse der Immobilie erhalten Sie vom Anbieter.
Finanzierungszertifikat
In nur zwei Minuten zu Ihrem persönlichen Finanzierungszertifkat.
Infos
| Vermarktungsart | Kaufen |
|---|---|
| Grundstücksfläche | 638 m2 |
| Empfohlene Nutzung | Mehrfamilienhaus |
| Verfügbar ab | sofort |
Kosten
| Miete pro Jahr |
1.095.000 € |
|---|---|
| Provision | Nein |
Finanzierungsrechner:
Kaufpreis:
600.000 €
Eigenkapital:
600.000 €
Monatliche Rate
0 €
Effektiver Jahreszins
0 %
Sollzinsbindung
10 Jahre
Beschreibung des Objekts
Lage
Das Grundstück liegt in einem der beliebtesten und stilvollsten Wohnviertel der hessischen Bergstraße, umgeben von Kulturdenkmalen, im Luftkurort Bensheim-Auerbach. Ein Ort, bekannt für Weinanbau, ein kulturell ausgewogenes Angebot und eine attraktive aktive Umgebung. Ob Spaziergänge im Staatspark Fürstenlager, Wander- und Fahrradwege zum Auerbacher Schloss, in den Weinbergen oder im Ruhe spendenden Wald - all das bietet die direkte Umgebung und macht das Wohnerlebnis zu einem ganz Besonderen. Der Kern geprägt von Gässchen mit Fachwerkhäusern, hervorragender Gastronomie und urigen Plätzen.
Ein Steinwurf entfernt bietet die Umgebung über die Grenzen hinaus bekannte Schulen (Altes Kurfürstliches Gymnasium, Schillerschule), eine zum Verweilen und Kauf anregende Innenstadt, als auch ein vielfältig kulturelles Angebot vom städtischen Theater bis hin zum weitbekannten Winzerfest.
Richtung Norden liegt Darmstadt nur 20 Fahrminuten entfernt und unwesentlich weiter der Frankfurter Flughafen, östlich der Odenwald und Richtung Süden führt der Weg über Weinheim nach Heidelberg oder Mannheim.
Top angebunden durch das Autobahnnetz, die Bahnstrecke Frankfurt Main - Heidelberg oder auch Shuttleangebote an den Frankfurter Flughafen.
Sonstige Angaben
HINWEISE:
Alle Angaben sind ohne Gewähr und basieren ausschließlich auf Informationen, die uns von unserem Auftraggeber übermittelt wurden. Wir übernehmen keine Haftung für die Vollständigkeit, Richtigkeit und Aktualität dieser Angaben. Es obliegt dem Kunden die Angaben und Informationen zum Objekt auf Richtigkeit zu überprüfen. Eine Haftung für die inhaltliche Vollständigkeit und Richtigkeit der Angaben wird nur im Falle des Vorsatzes oder der groben Fahrlässigkeit übernommen. Irrtum und Zwischenverkauf vorbehalten. Die Grunderwerbsteuer, Notar- und Grundbuchkosten sind vom Käufer zu tragen. Auf Wunsch stehen wir Ihnen mit weiteren Informationen zum Objekt und zum Eigentümer gerne zur Verfügung. Die Besichtigung kann jederzeit nach Vereinbarung mit einem unserer Mitarbeiter/Beauftragten erfolgen.
Grundriss
Erdgeschoss
>
>
1. Obergeschoss
>
>
Dachgeschoss
>
>
Tiefgarage
>
>